
Рубрикатор
1. Концепция 2. Основоположники идеалов 3. Виды ордеров 4. Дорический ордер 5. Ионический ордер 6. Коринфский ордер 7. Кариатиды 8. Заключение 9. Библиография 10. Источники изображений
Концепция
Архитектура Древней Греции имеет огромное значение до сих пор.
Архитектура Древней Греции поражает масштабностью, устойчивостью, долговечностью, величием форм и удивительной гармонией пропорций. Мне стало интересно, как древнегреческие архитекторы, не располагая современными инструментами, создавали сооружения, воспринимаемые как живые.
Почему ордерная система так важна?
Ордерная система, которая используется и в наши дни как основополагающий принцип построения зданий, сложилась в архаический период из стоечно-балочных конструкций. В то время началось развитие естественных наук, интереса людей к космосу и собственному телу, что привело к формированию двух ключевых принципов в архитектуре: антропоморфизма и тектоники. Антропоморфи́зм — от др.-греч. ἄνθρωπος — человек, μορφή — вид, образ, форма[1] Текто́ника — от др.-греч. τεκτονική — строение, построение[6].
Антропоморфизм в архитектуре античности — выражение антропоцентрической философии.
Антропоцентри́зм — от др.-греч. ἄνθρωπος — человек и лат. centrum — центр[2]. Храм — отражение идеального человеского тела. Философия Протагора, «Канон» Поликлета и трактат «Десять книг об архитектуре» Витрувия — основы пропорций и гармонии архитектуры Древней Греции. Соблюдая пропорции и масштаб, греки создали великолепные здания, которые выглядят устойчиво, надёжно и при этом изящно. Точность, выверенность и следование идеалу позволили храмам дойти до наших дней в значительной сохранности.
При постройке храмов важно учитывать не только математические пропорции, но и зрительное восприятие.
Архитекторы сочетали строгие математические расчёты с вниманием к визуальному восприятию храма: лёгкие изгибы колонн, наклон стен и изгиб стилобата компенсировали оптические иллюзии, делая формы идеальными и гармоничными.
Как я выбирала структуру для проекта?
Структура исследования выстроена от идеи к её материальному воплощению: мы знакомимся с основоположниками идеалов архитектуры Древней Греции, анализируем систему ордеров как универсальный язык, рассматриваем визуальное строение каждого ордера и завершаем исследование уникальным храмом с кариатидами. Такой путь позволяет читателю логично пройти от абстрактного идеала к его зримой, каменной форме.
Самым сложным в исследовании считается выбор источников.
Я опираюсь на трактат Витрувия, труды Протагора, «Канон» Поликлета, а также на научные статьи и печатные издания. Они не только помогли мне взглянуть на архитектуру с практической точки зрения, но и глубже понять мировоззрение людей Древней Греции.
Основоположники идеалов
Философы, скульпторы, архитекторы внесли значимый вклад в создание антропоцентричной архитектуры.


Хосе де Рибера «Протагор», Италия, XVII в. Сальватор Роза «Демокрит и Протагор», Италия, XVII в.
«Человек — мера всех вещей»
Известное изречение древнегреческого философа Протагора подчеркивает роль человека в определении истины.


Поликлет «Дорифор», V в. до н. э. Поликлет «Гермес», V в. до н. э.
«Канон» Поликлета — система пропорций идеального человеческого тела послужила началом математических принципов в искусстве Древней Греции.

Трактат «Десять книг об архитектуре» Витрувия, I в. н. э. –– систематизация древнегреческих принципов, описание связи пропорций между ордерами и человеческим телом.
Виды ордеров
Существует три основных ордера: дорический, ионический и коринфский. Каждый из них — целостная система пропорций, несущих и несомых частей, основанная на таких принципах, как антропоморфизм и тектоника.
Схема конструкции ордеров Дорический ордер Ионический ордер Коринфийский ордер
Каждый ордер уникален. Он состоит из одних частей (основание, колонна, антаблемент), но декоративные элементы, пропорции различны, что привлекает внимание.
Дорический ордер
Появился в архаичный период (VII–VI вв. до н. э.)
Дорический ордер отличается широким стволом и простотой исполнения. Считается, что он олицетворяет мужчину.


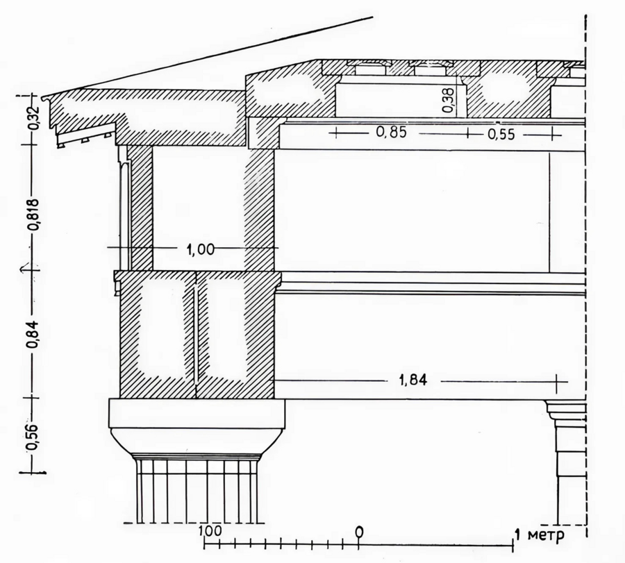
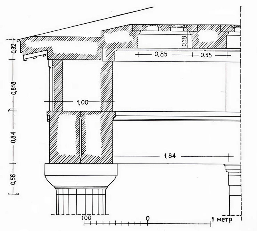
Схема конструкции дорического ордера
Капитель и антаблемент выполнены без излишеств, на это есть несколько причин: подчеркивание схожести дорического ордера с воином — идеалом древнегреческого человека, выполнение резного декора могло ослабить прочность всей конструкции.
Иктин и Калликрат, Парфенон, V в. до н. э.
Только у дорического ордера нет базы, что показывает его тесную связь с землей.
Храм Афины Афайи на острове Эгина. Реконструкция
Колонны олицетворяют мощь, мужество, непоколебимость и сдержанность.
Развалины храма Посейдона на мысе Сунион, V в. до н. э.
Каннелюры дорического ордера похожи на напряженные мышцы человека, который несет тяжелый груз.
Ионический ордер
Возник в середине VI века до н. э. в Ионии и распространился в Древней Греции в V веке до н. э.
У ионического ордера более тонкий ствол, чем у дорического, что показывает его схожесть с женщиной.
Схема конструкции ионического ордера
В капители ионического ордера появляются волюты, похожие на прическу прекрасной дамы.
Пифей, храм Афины Полиады в Приене, IV в. до н. э.
Ионический ордер олицетворяет изящество, утонченность и привлекательность.
Калликрат, храм Ники Аптерос, V в. до н. э.
Базу колонны можно сравнить с обувью или пальцами человека.
Коринфский ордер
Сформировался в позднюю классику (V–IV вв. до н. э.), но широкое применение получил в эпоху эллинизма и Рима.
Коринфский ещё более вытянутый и стройный ордер, чем ионический. Его можно сравнить с молодой девушкой.


Схема конструкции коринфского ордера
В капители используются листья аканта, являющиеся символами жизни и возрождения.
Писистрат, Коссутий, храм Зевса Олимпийского в Афинах, VI–II вв. до н. э.
Капитель коринфского ордера напоминает прическу изящной девушки или корону принцессы.
Иктин, храм Аполлона в Бассах, V в. до н. э.
В Древней Греции коринфский ордер не получил широкого распространения, поэтому в храме Аполлона в Басах стоит только одна колонна.
Кариатиды
Скульптурные женские фигуры, заменяющие колонны.
Эрехтейон — уникальный древнегреческий храм, не имеющий аналогов.
Филокл, Эрехтейон, V в. до н. э.
Антропоморфизм достигает своей наивысшей точки, воплощаясь в колоннах в образах женщин. Капители же выполнены в форме корзин.
Филокл, Эрехтейон, V в. до н. э.
Женщины стоят прямо, при этом выделяется согнутое колено, что создает ощущение непринужденности.
Заключение
Философия, математика и эстетика соединились в древнегреческой архитектуре, чтобы создать вечный идеал формы.
Список источников
Антропоморфизм // Сайт Википедия [Электронный ресурс] URL: https://ru.wikipedia.org/wiki/%D0%90%D0%BD%D1%82%D1%80%D0%BE%D0%BF%D0%BE%D0%BC%D0%BE%D1%80%D1%84%D0%B8%D0%B7%D0%BC (дата обращения 21.11.2025).
Антропоцентризм // Сайт Википедия [Электронный ресурс] URL: https://ru.wikipedia.org/wiki/%D0%90%D0%BD%D1%82%D1%80%D0%BE%D0%BF%D0%BE%D1%86%D0%B5%D0%BD%D1%82%D1%80%D0%B8%D0%B7%D0%BC (дата обращения 21.11.2025).
История античной архитектуры // Сайт Totalarch [Электронный ресурс] URL: https://antique.totalarch.com/vitruvius (дата обращения 21.11.2025).
Канон Поликлета // Сайт Электронная библиотека Одинцовского благочиния [Электронный ресурс] URL: http://www.odinblago.ru/filosofiya/losev/aflosev__istoriya_antichn/4_kanon_polikleta/ (дата обращения 21.11.2025).
Михайловский И. Б. Теория классических архитектурных форм — 3-е изд., посмертное — М.: Издательство Академии Архитектуры СССР, 1944. — 271 с.
Тектоника // Сайт Википедия [Электронный ресурс] URL: https://ru.wikipedia.org/wiki/%D0%A2%D0%B5%D0%BA%D1%82%D0%BE%D0%BD%D0%B8%D0%BA%D0%B0_(%D0%B8%D1%81%D0%BA%D1%83%D1%81%D1%81%D1%82%D0%B2%D0%BE) (дата обращения 21.11.2025).
Темникова О. А. Образ человека в архитектуре: философско-антропологический аспект // Сайт КиберЛенинка [Электронный ресурс] URL: https://cyberleninka.ru/article/n/obraz-cheloveka-v-arhitekture-filosofsko-antropologicheskiy-aspekt/viewer (дата обращения 21.11.2025).
https://tournavigator.pro/%D1%84%D0%BE%D1%82%D0%BE/other/1008/1018/1459786029.jpg (дата обращения 22.11.2025)
https://i.bigenc.ru/resizer/resize?sign=D82PMIYls9Jqy56fl7B9Bw&filename=vault/14d0c96f1e02d21295fc2c8a7dd0f642.webp&width=1024 (дата обращения 22.11.2025)
https://hermitagemuseum.org/api/files/fshow?needlePath=%2Fapi%2Fspf%2FP3jjNFapKkK6a3WhXoU9KZ73AfGfjy-_FaYu2Tfs7l3zcp8OT9ORfNDj50mI_EdQ.jpg%3Fw%3D1600%26h%3D1600 (дата обращения 22.11.2025)
https://telegra.ph/file/ae3bec85afde79e0ebd38.png (дата обращения 22.11.2025)
https://upload.wikimedia.org/wikipedia/commons/thumb/6/62/Marble_statue_of_Hermes_MET_DT248368.jpg/2560px-Marble_statue_of_Hermes_MET_DT248368.jpg (дата обращения 22.11.2025)
https://upload.wikimedia.org/wikipedia/commons/8/8a/%D0%92%D0%B8%D1%82%D1%80%D1%83%D0%B2%D0%B8%D0%B9.10%D0%BA%D0%BD%D0%B8%D0%B3_%D0%BE%D0%B1_%D0%90%D1%80%D1%85%D0%B8%D1%82%D0%B5%D0%BA%D1%82%D1%83%D1%80%D0%B5.jpg (дата обращения 22.11.2025)
https://viimiracula.ru/wp-content/uploads/66796ebb0890c99b0f5c859d086a1cce.jpg (дата обращения 22.11.2025)
https://files.mediiia.ru/postimages/16362/5ee0f3d364f24dfda2d4a12322fd5803/427169a83d4f4ba6b14133bb7391f58f900x811.png (дата обращения 22.11.2025)
https://upload.wikimedia.org/wikipedia/commons/9/94/RomanDoricOrderEngraving.jpg (дата обращения 22.11.2025)
https://i.bigenc.ru/resizer/resize?sign=PmaxFzeYG00dUqBbud8pVQ&filename=vault/9e4f4554ce475c49a5c3e6d4a01a5926.webp&width=3840 (дата обращения 22.11.2025)
https://upload.wikimedia.org/wikipedia/commons/thumb/8/8a/Model_temple_of_Aphaia_Glyptothek_Munich.jpg/2560px-Model_temple_of_Aphaia_Glyptothek_Munich.jpg (дата обращения 22.11.2025)
https://xn----stb8d.xn--p1ai/wp-content/uploads/11-6.jpg (дата обращения 22.11.2025)
https://ic.pics.livejournal.com/archistorik/72633956/985489/985489_900.jpg (дата обращения 22.11.2025)
https://cdn.kulturenvanteri.com/wp-content/uploads/2021/01/IMG_7148-scaled.jpg (дата обращения 22.11.2025)
https://www.facade-project.ru/images/cms/data/drevnegrecheskaya_arhitektura/3-3-barokko.jpg (дата обращения 22.11.2025)
https://studfile.net/html/2706/193/html_sh7YAIEsAC.6dmt/htmlconvd-4bDqiV_html_4da9df840d62183a.jpg (дата обращения 22.11.2025)
https://studfile.net/html/2706/468/html_WNxG0pY9hE.GiQ0/img-UZY8Df.jpg (дата обращения 22.11.2025)
https://upload.wikimedia.org/wikipedia/commons/thumb/0/00/Temple_of_Olympian_Zeus_-Olympieion.jpg/2560px-Temple_of_Olympian_Zeus-_Olympieion.jpg (дата обращения 22.11.2025)
https://upload.wikimedia.org/wikipedia/commons/1/1c/Bassae.jpg (дата обращения 22.11.2025)
https://upload.wikimedia.org/wikipedia/commons/thumb/7/73/Athen_Erechtheion_BW_2017-10-09_13-58-34.jpg/2560px-Athen_Erechtheion_BW_2017-10-09_13-58-34.jpg (дата обращения 22.11.2025)