
Данный проект — это альбом чертежей, созданный в рамках курса «Archicad для дизайнера среды: От концепции к BIM-проекту». В процессе работы были освоены и применены на практике ключевые инструменты и принципы BIM-моделирования для разработки проекта частного дома.
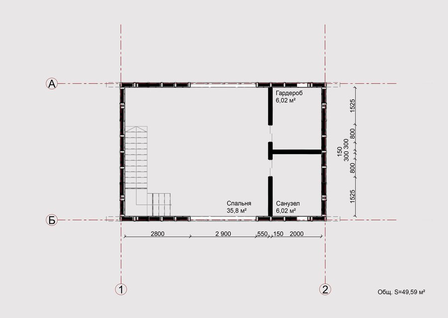
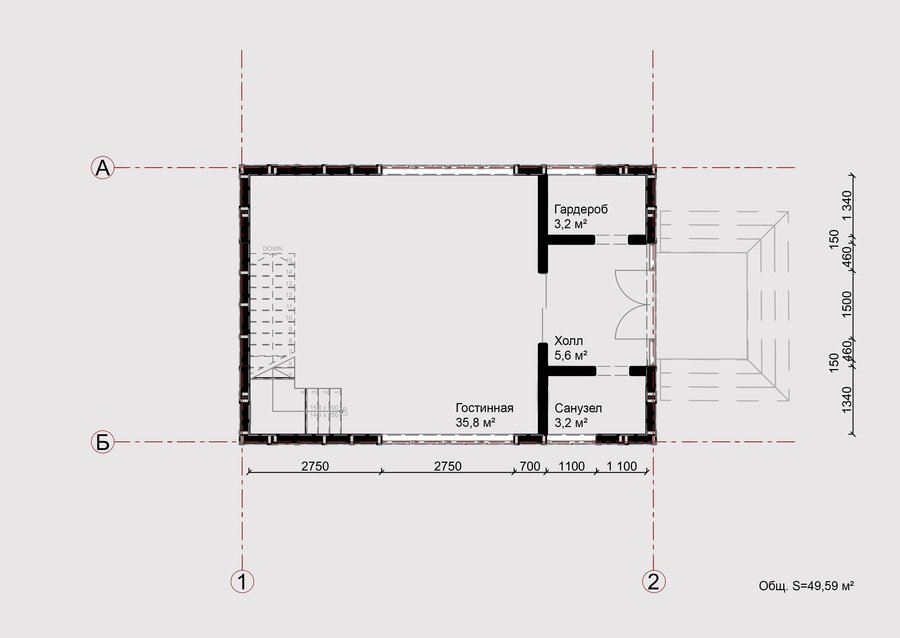
Планы первого и второго этажей
Планы балок первого и второго этажей
Фасады
Разрезы
Визуализации