
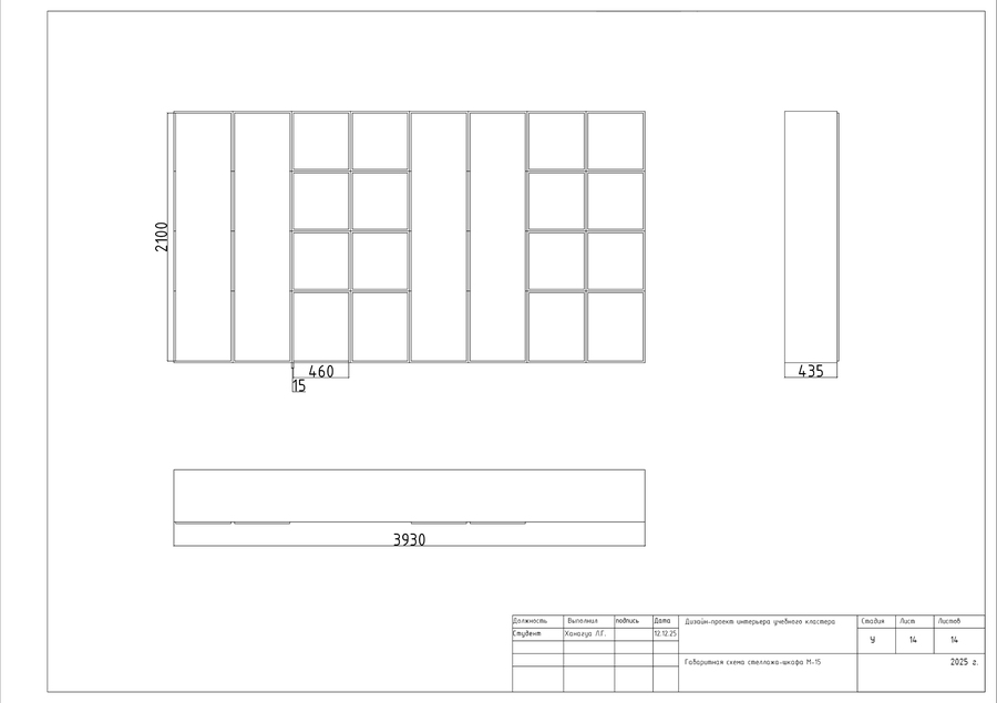
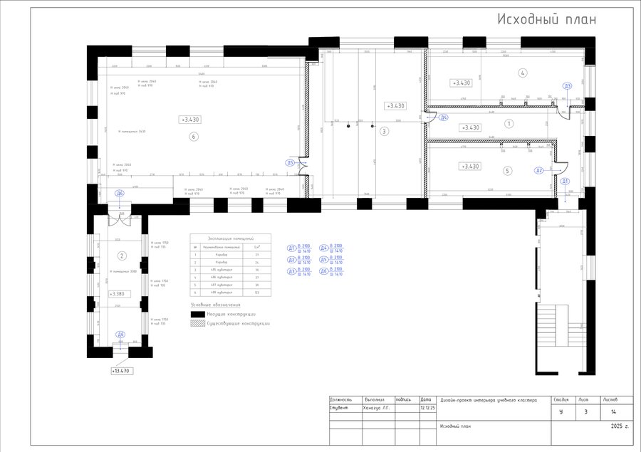
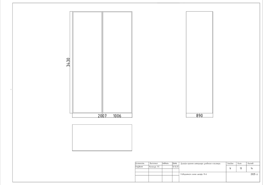
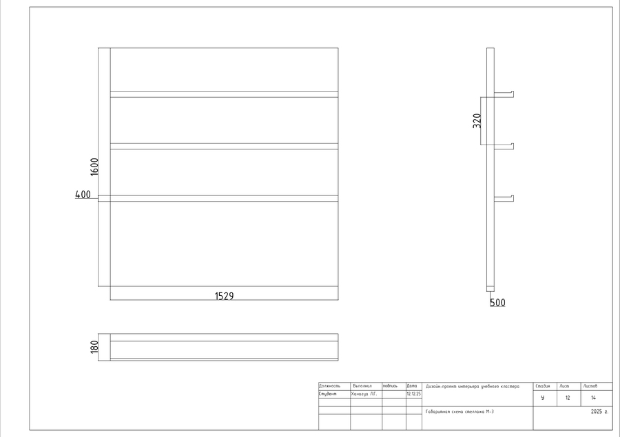
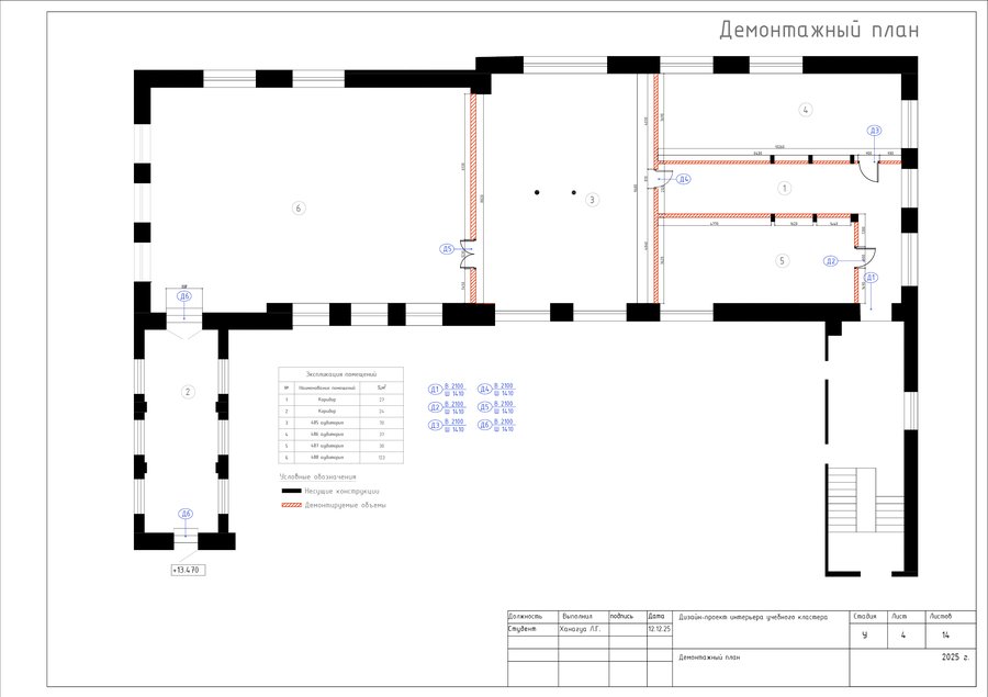
Проект представлен в виде альбома чертежей, выполненного по итогам курса «Основы цифрового черчения». Альбом включает в себя исходный план, планы демонтажа и установки перегородок, схему зонирования, а также расстановку мебели и оборудования с указанием их габаритов и маркировки. В дополнение к этому, в альбом вошли спецификации и чертежи мебели, разработанной для проекта Кластера дизайна интерьера НИУ ВШЭ.




