
во втором модуле была поставлена задача создать альбом чертежей для учебного кластера.
ниже представлены основные чертежи и графические материалы, разработанные в рамках выполнения данного задания.
|1|ведомость

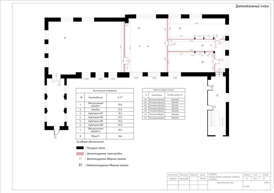
|2|исходный//демонтажный//монтируемый планы
|3|функциональное зонирование
|4|план расстановки мебели//маркировка мебели
|5|спецификация мебели
|6|визуализации проекта