Original size 570x863

Альбом чертежей для дизайн-проекта учебного кластера

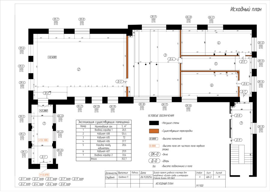
ИСХОДНЫЙ ПЛАН/ ПЛАН ДЕМОНТАЖА/ ПЛАН ВОЗВОДИМЫХ ПЕРЕГОРОДОК

0

ЗОНИРОВАНИЕ И ПЛАНИРОВОЧНЫЕ РЕШЕНИЯ

0

ВИЗУАЛИЗАЦИИ

big
Original size 3500x2480
Original size 3500x2480
Original size 3500x2480

АВТОРСКАЯ МЕБЕЛЬ

0
We use cookies to improve the operation of the website and to enhance its usability. More detailed information on the use of cookies can be fo...
Show more