
Данный проект содержит чертежи, выполненные в программе AutoCAD, и визуализации интерьера учебного кластера, разработанного в первом модуле.
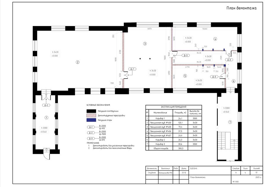
Исходный план, план монтажа и демонтажа
Чертежи включают в себя планы, виды, разрезы, отдельные элементы мебели кластера.
План функционального зонирования, план расстановки мебели и оборудования, обмерный план, спецификация
Кроме того, представлены чертежи мебели, разработанной специально для кластера.
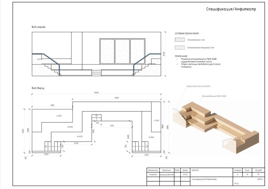
Спецификация мебели
Визуализации пространства