
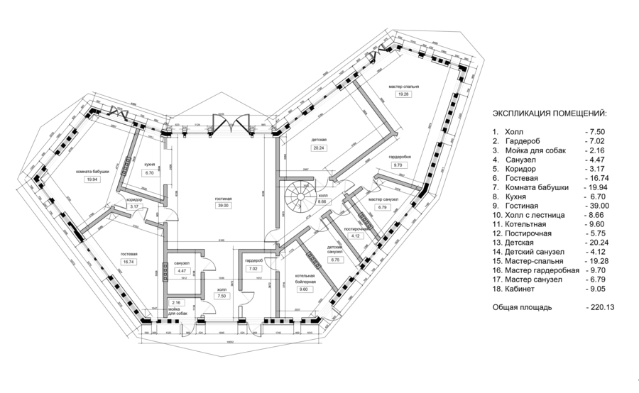
Основной задачей проекта было совмещение актуальных тенденций деревянного домостроения и «классических» дач первой половины ХХ века, чтобы удовлетворить запросы креативной семейной пары. Особое внимание уделялось рисовке плана и посадке здания на участке, создание цельной объёмно-пространственной композиции въездной группы, гаража, жилого дома и террасы. Были учтены множество факторов технического задания: от местоположения здания на участке и вида из окон до удобства приготовления барбекю на террасе. Было разработано большое количество эскизных стилистических вариантов фасадов.





