
Невероятно интересная идея посветить целую выставку одной картине. Такой формат полностью позволяет окунуться с головой в картину художника и подробнее узнать про неё.
В 1983 году 12 февраля в городе Пенза впервые открылся Музей одной картины, который по сей день является единственным в мире музеем такого рода. Но какой бы уникальной не была бы эта идея, в жизни не всё так радужно. Выставки в музее являются весьма скучными: простой рассказ про картину вместе с презентацией — это не то, что многие туристы ожидают увидеть.
Из всех достопримечательностей Пензы именно Музею одной картины, по моему мнению, не помешало бы развитие. Это уникально место, которого больше нигде не найти. К большому сожалению музей не получает должного внимания. Именно поэтому я выбрала данное место, привлечение даже небольшого внимание к нему, скорее всего поможет его развитию.

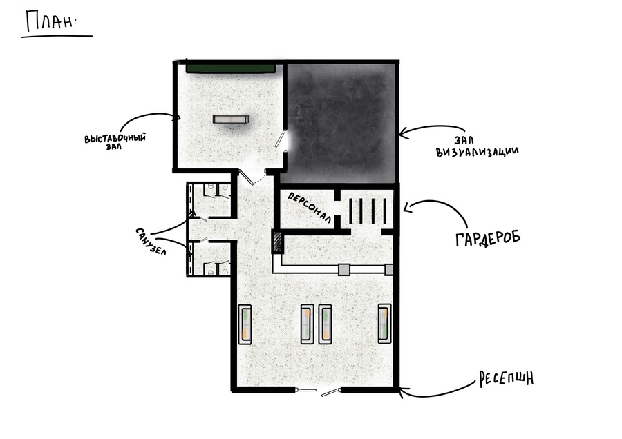
На ресепшене можно купить билеты, подождать начала сеанса на удобных диванах, а также сдать свою одежду в гардероб, ну или же сделать красивые фотографии:)

На экране транслируется информация (изображения) о выставке/картине.
Тут и так понятно)
Начало сеанса происходит в выставочном зале. Сначала посетителей приглашают пройти в зал, в котором располагается одна картина (логично). Затем включают рассказ с подробной информацией про неё.
«Утро в сосновом лесу» — картина Ивана Шишкина и Константина Савицкого.
Немного исторических фактов
Оба художника оставили большое культурное наследие в Пензенской области.
К. А. Савицкий — первый директор Пензенского художественного училища и картинной галереи.
А работы И. И. Шишкина распологаются в коллекции Пензенской картинной галереи (более сорока, офортов мастера) Большая часть была подарена музею самим художником, в галерею они поступили из рабочего фонда Пензенского художественного училища в 1982 году.
Далее посетителей приглашают в зал визуализации. Это полностью пустое пространство с тусклым освещением, после включения экранов и прожекторов посетителей ожидает полное погружение в саму картину.
Например, «Утро в сосновом лесу» посетителей погружают в 3D пространство окружённое лесом и медведями, изображенными на картине.
Большое спасибо за внимание!