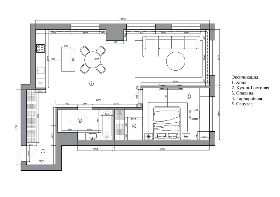
Данный дизайн-проект квартиры был выполнен в качестве вступительного испытания в Школу Дизайна НИУ ВШЭ. В качестве основы была выбрана евро-двухкомнатная квартира в жилом комплексе Level «Причальный»

Original size 3509x2480
Планировочное решение: Кухня-гостиная, спальня с рабочим местом, гардеробная комната, ванная.
Концепция: Натуральные материалы, природные оттенки, фактурное дерево, чистота линий и форм.
Цель проекта: Создать дизайн-проект, объединяющий в себе комфорт, эстетику и функциональность.
Визуализации


Коридор

Original size 2000x1250
Кухня-гостинная
Original size 2000x1250
Спальная
Ванная











