
ОБЪЕКТ ИССЛЕДОВАНИЯ:
Особняк в 3-м Монетчиковском переулке, 4 в Москве
Актуальность дипломного проекта «Реновация исторического особняка под бутик-отель» связана с тремя основными проблемами Москвы: нехваткой интересных гостиниц в центре, необходимостью сохранять исторические здания и поиском для них экономически выгодных функций. В историческом центре Москвы, несмотря на высокую туристическую привлекательность, наблюдается дефицит камерных и аутентичных гостиниц, которые предлагают не просто номерной фонд, а уникальный опыт погружения в культурный контекст. Одновременно с этим, объекты культурного наследия, утратившие первоначальную функцию, зачастую находятся в поиске новой полезной функции.
Данный проект предлагает не просто реновацию, а адаптивное использование исторического особняка.
Проект одновременно решает несколько задач: дает туристам уникальный опыт, оживляет городскую среду и создает экономическую модель сохранения памятника.
Главная проблема, решаемая в проекте, заключается в поиске баланса между сохранением аутентичности «Духа Места» и внедрением функций, отвечающих «Духу Времени».
Целью проекта является разработка архитектурной концепции бутик-отеля, основанной на предпроектном анализе и направленной на гармоничное сочетание исторического наследия особняка с современными потребностями гостей и техническими возможностями.
ГИПОТЕЗА ИССЛЕДОВАНИЯ:
Адаптивное использование исторического особняка под бутик-отель позволит сохранить аутентичность «Духа Места» и одновременно адаптировать объект к современным требованиям «Духу Времени», создав экономическую модель сохранения памятника архитектуры.
СОДЕРЖАНИЕ ПРЕДПРОЕКТНОГО АНАЛИЗА:
1. Анализ духа места 1. 1. Изучить историю места: - заказчик - Архитектурный замысел и стилевое решение - Архитектор - Функциональное наполнение - Формальный анализ
2. Анализ духа времени - Градостроительный анализ: - Дать определение концепции бутика отеля - Выявить целевую аудиторию
3. Мировой опыт - Прототипы
4. Выводы 4.1. Техническое задание
1. ДУХ МЕСТА
Особняк в 3-м Монетчиковском переулке стал архитектурным воплощением расцвета меценатства в Москве начала XX века. Здание было построено в 1904–1907 годах по проекту архитектора Карла Карловича Гиппиуса для Пятницкого попечительства о бедных.
Историческая справка:
В 1894 году в Москве были созданы городские попечительства о бедных. Попечительства организовывали учебные мастерские, богадельни, приюты и оказывали разнообразную помощь нуждающимся. Это и приём врача, и консультация юриста, устройство в ясли, в загородные колонии детского отдыха, аренда дешёвых квартир и предоставление одежды или обуви. Были организованы дешёвые обеды, людям помогали получить работу.
В 1905 году было построено здание Пятницкого попечительства о бедных.
заказчик
Строительство здания финансировалось знаменитыми московскими благотворителями — семьей Бахрушиных. Особняк был посвящен памяти Елены Михайловны Бахрушиной, жены Александра Алексеевича, матери Алексея, Сергея и Владимира Бахрушиных.
1. А. А. Бахрушин. Начало ХХ в. Главархив Москвы 2. Московские купцы братья Петр, Александр и Василий Бахрушины. Главархив Москвы
Бахрушины — известная династия московских предпринимателей, меценатов и коллекционеров, ведущая историю с XVIII века. Известны с 1722. Занимались скупкой скота в Поволжье и перепродажей его в центре России.
Семья отличалась глубокой православной верой и традиционным укладом жизни. Многие Бахрушины служили церковными старостами, жертвовали значительные суммы на храмы
Особую известность Бахрушины приобрели благодаря масштабной благотворительной деятельности. На их средства в Москве были построены:
- Больница им. Бахрушиных на Сокольничьем поле (ныне горбольница № 33) - Дом бесплатных квартир для вдов и студентов на Софийской набережной - Детские приюты и училища - Храмы при благотворительных учреждениях
В 1904–1907 годах Бахрушины выступили меценатами строительства здания Пятницкого попечительства о бедных в 3-м Монетчиковском переулке, где разместились приюты, мастерские и домовая церковь. Владимир Александрович Бахрушин лично возглавлял это попечительство.
архитектурный замысел и стилевое решение
Карл Гиппиус, известный своими работами для семьи купцов и промышленников Бахрушиных, избрал для здания попечительства неорусский стиль. Этот выбор был новаторским — в древнерусской архитектуре не существовало прототипов зданий подобного социального назначения. Архитектор создал уникальный художественный образ, где:
- Ритмичный ряд арок на фасаде второго этажа напоминает древние гостиные дворы
- Для устранения однообразия аркада в двух местах прерывается вертикальными вставками
- Двухпролетная звонница над кровлей маркирует вход и указывает на расположение домовой церкви


Несмотря на то, что домовая церковь со звонницей не сохранилась, есть возможность рассмотреть ее на старых фотографиях
Карл Карлович Гиппиус (1864-1941) — московский архитектор, работавший в стилях эклектики и модерна. Выпускник Московского училища живописи, ваяния и зодчества (1889), он с начала карьеры стал семейным архитектором известных купеческих династий Бахрушиных и Перловых.
Карл Карлович Гииппиус (29 января 1864, Санкт-Петербург — 23 июня 1941, Москва)
Среди ключевых работ Гиппиуса:
Чайный магазин Перловых на Мясницкой (1895-1896) - Особняк А. А. Бахрушина на Зацепском валу (ныне Театральный музей) - Особняк в 3-м Монетчиковском переулке для Пятницкого попечительства о бедных - Дом бесплатных квартир имени Бахрушиных на Софийской набережной
После революции 1917 года Гиппиус стал главным архитектором Московского зоопарка, где спроектировал основные объекты новой территории: «Турью горку», «Остров зверей» и другие павильоны, общая планировка которых сохраняется до настоящего времени.
функциональное наполнение и духовная жизнь
Здание стало многофункциональным социальным комплексом, включающим:
- Приюты для мальчиков и девочек с учебными классами - Ремесленные мастерские (портновская и белошвейная) - Столовую, баню и прачечную в цокольном этаже - Домовую церковь во имя святых Константина и Елены, освященную в 1906 году
смена эпох и функций
РЕТРОСПЕКТИВНЫЙ АНАЛИЗ
ФОРМАЛЬНЫЙ АНАЛИЗ: материалы и облик среды
ттттттттттт
2. ДУХ ВРЕМЕНИ
ТЕРРИТОРИЯ ПРОЕКТИРОВАНИЯ
Особняк, 1904 года постройки, расположен по адресу: 3-й Монетчиковский переулок, 4, в историческом районе Замоскворечье в Москве, Россия.
ТЕРРИТОРИЯ ПРОЕКТИРОВАНИЯ в контексте города
Особняк Гиппиуса расположен в сердце Замоскворечья — исторического района, сохранившего архитектурный облик старой купеческой Москвы.
Объект обладает транспортной и пешеходной доступностью: в 5-10 минутах ходьбы находятся три станции метро «Павелецкая», «Новокузнецкая», и «Третьяковская», а главные достопримечательности города — Кремль, парк «Зарядье» и Третьяковская галерея — соединены с ним удобными пешеходными маршрутами. При этом расположение в глубине камерного переулка обеспечивает тихую атмосферу, контрастирующую с шумом магистралей.
Архитектура
1904, Проект дома Пятницкого попечительства о бедных Владимира Александровича Бахрушина Автор: Карл Карлович Гиппиус Источник: ЦИАМ Пятницкая часть Россия, Москва, ЦАО, Замоскворечье
Площадь: 2900 м²
Этажность: 3 этажа + цоколь и мансарда
Уникальный облик здания работы архитектора Карла Гиппиуса, с полностью сохранившимися фасадами в неорусском стиле, позволяет адаптировать внутренние пространства под современную функцию бутик-отеля с минимальными вмешательствами.
Сочетание исторической подлинности и транспортной доступности дают возможность для создания концептуального отеля, предлагающего гостям полное погружение в культурный контекст Москвы.
ГРАДОСТРОИТЕЛЬНЫЙ АНАЛИЗ
1. Транспортная доступность
Особняк находится в 488 м от станции метро (Павелецкая/Новокузнецкая/Третьяковская), пешеходная доступность в 5-7 минутах
Наземный транспорт имеет 14 остановок поблизости
- Парковочные места: 3 280 мест в радиусе доступности - Ближайшая парковка: 18 метров от объекта - Автомобильный трафик: 20 машин/час
2. Гостиницы
- 45 объектов-конкурентов в непосредственной близости - Преобладание отелей среднего класса и апартаментов - Дефицит бутик-отелей в исторических зданиях
3. Досуг
- Третьяковская галерея — 450 м — 5-7 минут пешком - Музей Москвы — 15 минут транспортом - Дом-музей Островского — 10 минут пешком - Центр современного искусства «Гараж» — 20 минут транспортом
- 28 ресторанов и кафе в радиусе 500 м - 4 тематических бара - 3 кофейни премиум-класса - Гастрономический кластер на Павелецкой набережной
ПРЕИМУЩЕСТВА ЛОКАЦИИ:
- Исторический контекст и аутентичная атмосфера
- Богатая культурная инфраструктура
- Близость к основным туристическим маршрутам
- Развитая транспортная инфраструктура
- Наличие парковочных мест
БУТИК — ОТЕЛЬ: КОНЦЕПЦИЯ
Ключевой особенностью бутик-отелей является эксклюзивный сервис, выходящий за рамки стандартного индивидуального обслуживания. Небольшой формат таких отелей позволяет предлагать гостям уровень сервиса, сопоставимый с 5-звездочными отелями, что и составляет суть понятия «бутиковости».
Термин «бутик-отель» (от франц. boutique — лавка, небольшой магазин) возник в 1984 году, благодаря американским предпринимателям Стиву Рубеллу и Йену Шрагеру.
Отличительными чертами этого формата стали размещение в зданиях, обладающих исторической или архитектурной ценностью, а также уникальный дизайн, часто разработанный известными дизайнерами.
На российском рынке бутик-отели — относительно новое явление, и единые стандарты пока не сформированы. Однако эксперты выделяют три ключевых признака, определяющих эту категорию отелей:
- уникальная архитектура и дизайн - сервис и обслуживание - целевая аудитория
(Бутик-отели создают для гостей уникальный гостевой опыт, предлагая номера с индивидуальным дизайном и полным комфортом, а также эксклюзивные услуги, которых нет в других отелях города.)
ЦЕЛЕВАЯ АУДИТОРИЯ
Ключевой аудиторией выступает поколение Y, рожденные между 1980 и 1995 гг., составляющее демографическое большинство и активно влияющее на современную бизнес-среду. Для этих потребителей характерны:
- Высокая требовательность к качеству услуг и дизайну - Ценность аутентичного опыта и уникальных впечатлений - Активная туристическая деятельность с повышенными расходами на путешествия - Предпочтение атмосферы и скорости обслуживания
Современные потребители, выросшие в эпоху цифровых технологий, ожидают мгновенного удовлетворения своих запросов и высокоскоростного обслуживания. Именно этим обусловлена популярность компактных гостиниц, расположенных в исторических центрах городов.
Такой формат размещения, часто создаваемый через реконструкцию исторических зданий, позволяет гостям:
- находиться в непосредственной близости к основным достопримечательностям - быть вовлеченными в культурную жизнь города - получать быстрый доступ ко всем необходимым услугам - экономить время на перемещениях по городу
Подобное расположение превращает отель из просто места для ночлега в точку отсчета для погружения в городскую среду, что полностью соответствует динамичному образу жизни современного путешественника.
Современный бутик-отель становится ответом на эти запросы, трансформируясь в пространство, отражающее стиль жизни. Архитектурно-планировочные решения ориентированы на:
- Создание камерной атмосферы через продуманный дизайн - Организацию многофункциональных общественных зон (коворкинги, лобби-бары) - Оснащение номеров повышенным комфортом (премиальные санузлы, кофемашины, мини-кухни)
Такой подход позволяет удовлетворить ключевые потребности поколения Y в комфорте и уникальности.
3. МИРОВОЙ ОПЫТ
ЦЕЛЬ:
- Проанализировать опыт разных страх, как в адаптации исторических объектов под бутик-отель, так и рассмотреть новые архитектурные решения в создании малых гостиниц - Выявить приемы для привлечения туристов - Найти баланс между старым и новым
Концепция
3.1. Адаптация памятников архитектуры с сохранением аутентичности
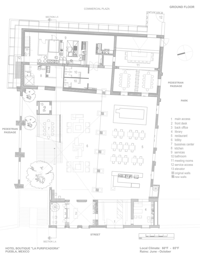
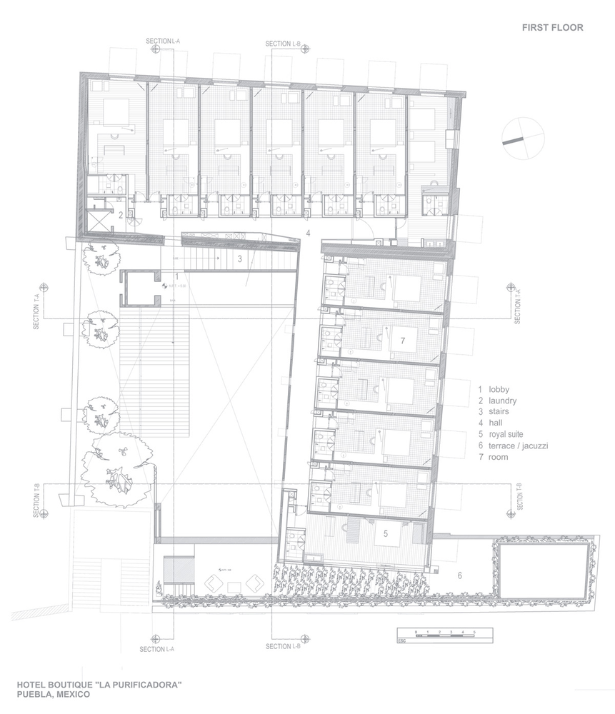
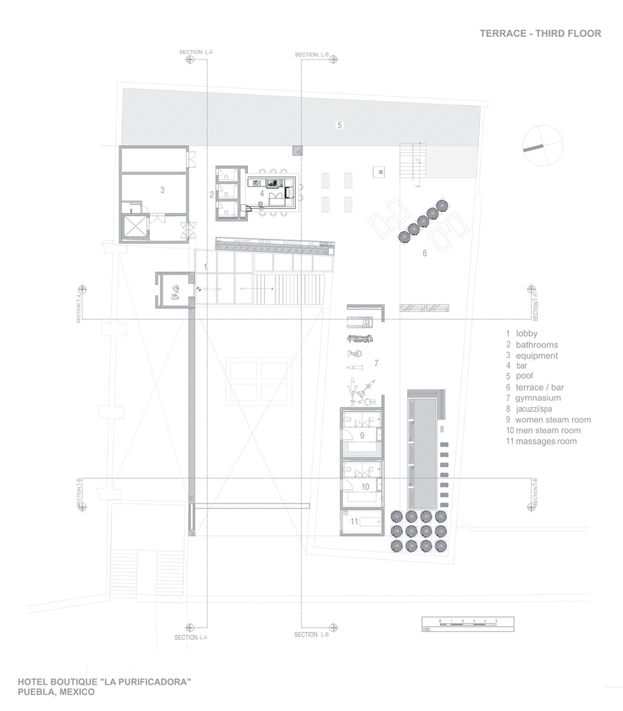
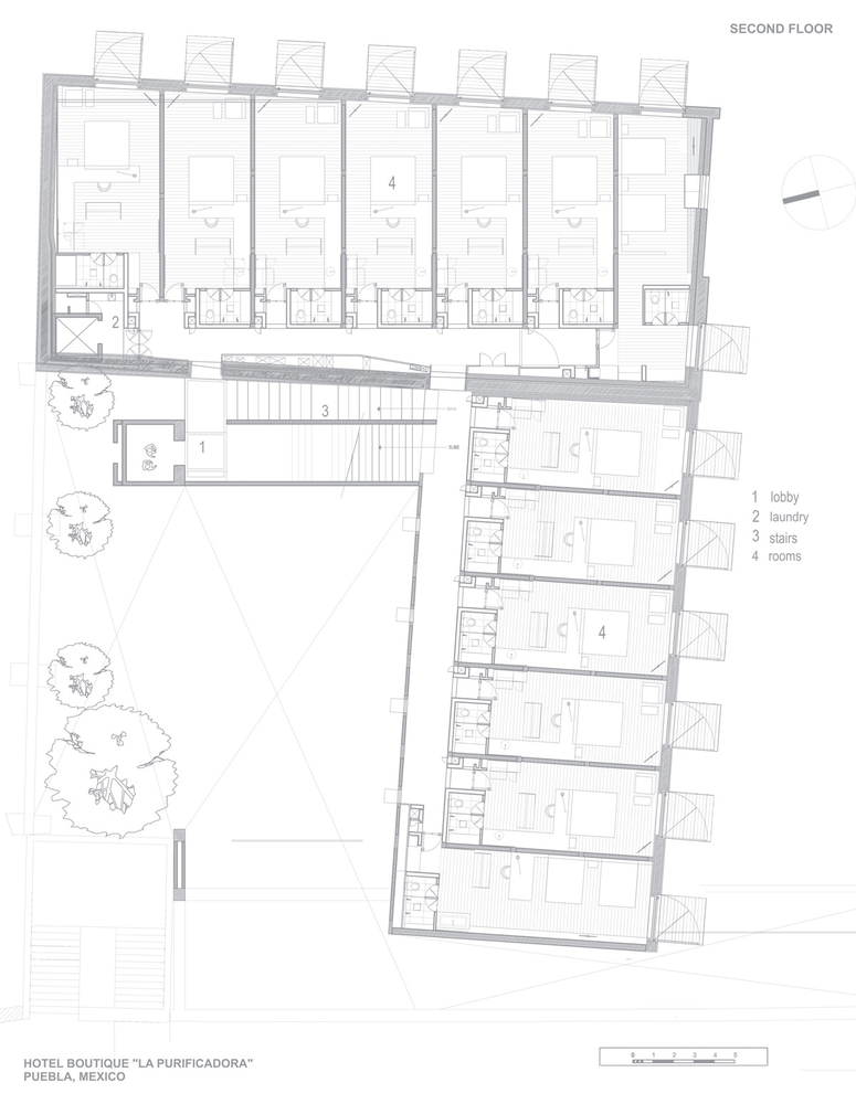
La Purificadora
Название: La Purificadora Местоположение: Пуэбла, Мексика Год реконструкции: 2007 Бюро/ Архитектор: LEGORRETA Площадь: 3000 м²
Бутик-отель La Purificadora в Пуэбле создан на основе бывшей фабрики по очистке воды, являющейся объектом исторического наследия. Проект сохранил аутентичные материалы — камень и древесину, контрастирующие со стеклом и сталью. Ключевым элементом стал четырехэтажный внутренний двор, окруженный Г-образными галереями. Найденные при реставрации артефакты были интегрированы в фирменный стиль отеля.


Бутик-отель имеет 26 гостевых номеров, ресепшен-магазин, ресторан-бар, кухня, банкетные залы для мероприятий, внутренний двор высотой в 4 этажа, переговорные комнаты, офисы и грот.
К удобствам относятся бассейн, терраса для мероприятий, спортзал, джакузи, массажный кабинет и парная.
На примере отеля La Purificadora можно рассмотреть успешную модель адаптивного использования исторического здания, где уважение к подлинным материалам и интеграция археологических находок создают уникальный бутик-отель.
The Ernan Boutique Hotel


Название: Эрнан Местоположение: Язд, Иран Год реконструкции: 2024 Бюро/ Архитектор: Kalbod Design Studio Площадь: -
Проект бутик-отеля Ernan от Kalbod Design Studio представляет собой радикальный подход к ревитализации исторического замка через стратегию «архитектурного диалога». Вместо традиционной реставрации студия создала современную перфорированную крышу, которая динамично взаимодействует с уцелевшими структурами — расширяясь над разрушенными участками и отступая там, где историческая ткань сохранилась.
Этот контрастный прием подчеркивает подлинность памятника, одновременно решая функциональные задачи защиты от солнца.


Концепция отеля построена как иммерсивное путешествие через четыре стихии (Земля, Огонь, Вода, Воздух), где гости последовательно перемещаются между тематическими зонами в течение двух дней. Навигация организована с помощью ярких красных элементов, создающих современный визуальный слой. Архитектура становится сценой для сенсорного опыта: тактильного контакта с материалами, наблюдения за световыми эффектами и взаимодействия с ландшафтом.
Отель Ernan является выдающимся примером адаптивного использования, поскольку он демонстрирует инновационный подход к работе с историческим объектом, находящимся в состоянии руины.
Вместо механического воссоздания утраченных элементов архитекторы предложили стратегию «честного диалога» между старой и новой структурой, где современная перфорированная крыша не маскируется под историческую, а выступает равноправным участником архитектурной композиции.
Этот опыт особенно важен как пример работы со сложной исторической тканью через добавление современных слоев, которые не скрывают, а выявляют подлинность памятника.
Бутик-отель с китайской алкогольной тематикой
Иллюстрация выращивания винограда и виноделия из трактата «Materia Dietetica»), эпоха династии Мин (1368–1644 гг.)
Название: Бутик-отель с китайской алкогольной тематикой Местоположение: Яньань, Китай Год реконструкции: 2020 Бюро/ Архитектор: Орелиен Чен, Ван Кэяо Площадь: 2139 м²
Проект бутик-отеля в Яньане представляет собой пример тотального погружения в локальный культурный код через архитектуру и дизайн. Концепция построена не на стилизации, а на глубоком изучении и художественной интерпретации традиционного процесса винокурения, где каждый архитектурный элемент становится носителем истории и тактильного опыта.


Отсылка к традиционной технологии ферментации становится центральной темой пространства. Для выдержки алкоголя исторически использовались керамические сосуды глубоких фиолетово-багровых оттенков.
Архитекторы обыграли это в интерьере: входная зона встречает гостей прозрачным стеклянным полом, под которым размещена инсталляция из частично погруженных в основание керамических сосудов.
Этот приём также создаёт эффект «археологического раскопа» и отсылает к традиционным винокурням, где полы дворов сплошь покрывали такие ёмкости.
Основой китайского ликёра служит зерно. Эта тема отражена в дизайне: в лобби зёрна в прозрачных трубках формируют узорчатый экран, а в номерах их вкрапления в краске создают особую фактуру стен. Цветовая гамма, выдержанная в тёплых коричнево-охристых тонах, также отсылает к исходному сырью.
Наружные пространства являются частью этого сенсорного маршрута, создавая непрерывность между интерьером и экстерьером. Инсталляция, расположенная в главном дворе, напоминает о превращении жидкости из пара в конденсат в капли алкоголя.
В процессе реконструкции здания и переосмысления функционального зонирования была разработана целостная пространственная система.
Она органично объединяет различные зоны через продуманный художественный маршрут, который последовательно знакомит гостей со всеми этапами традиционного процесса винокурения.
Проект демонстрирует адаптивный подход исторических зданий, где архитектура становится инструментом погружения в культурный код. Через сценографию и нарративный маршрут пространство превращается в иммерсивную среду, создавая бесценный гостевой опыт.
Замок Бип
Название: Замок Бип Местоположение: г. Павловск, Россия Год реконструкции: 2011 Бюро/ Архитектор: Площадь: -
Замок Бип (Павловская крепость) является примером многовековой адаптации военного объекта к меняющимся историческим условиям. Построенный в 1795–1797 годах как полноценная крепость с артиллерией и гарнизоном, замок прошёл сложный функциональный путь.
Эволюция функций:
- Военная крепость (1798-1811) - Образовательное учреждение (1807-1917) - Штаб военных операций (1919) - Социальное учреждение (1920-1941) - Руинированное состояние (1944-2000-е) - Бутик-отель (с 2011 года)


Замок Бип показывает успешное восстановление объекта фортификационной архитектуры из состояния полного разрушения. Замок, сгоревший дотла в 1944 году, был воссоздан с сохранением первоначальных объемно-планировочных решений и конструктивных особенностей.
Вместо того чтобы пытаться точно воссоздать утраченные исторические интерьеры, дизайнеры создали сдержанный стиль, который объединил классическую архитектуру замка с элементами сталинского ампира и английского стиля.
Такой подход показывает уважение к подлинности памятника, но при этом не копирует старину буквально.


?
4. ВЫВОДЫ ПО ПРЕДПРОЕКТНОМУ АНАЛИЗУ
Дух места
— Особняк в 3-м Монетчиковском переулке представляет собой уникальный пример синтеза архитектурного новаторства и социальной миссии.
- Здание неразрывно связано с расцветом московской благотворительности и меценатства, а его первоначальная социальная функция органично соотносится с концепцией бутик-отеля, основанной на принципах гостеприимства и заботы о комфорте.
Дух времени
- Локация в сердце Замоскворечья отвечает запросам поколения на мгновенный доступ к культурным объектам и городской инфраструктуре при сохранении камерной атмосферы.
- Современный рынок гостеприимства демонстрирует устойчивый спрос на бутик-отели в исторических зданиях, сочетающие аутентичность с современным комфортом.
- Развитая транспортная и пешеходная доступность, а также близость ключевых достопримечательностей
Мировой опыт
Анализ мирового опыта создания бутик-отелей в объектах культурного наследия позволил выявить синтез исторической подлинности и современного гостеприимства.
Ключевые принципы успешных прототипов:
• Сохранение архитектурной идентичности через диалог старого и нового • Создание иммерсивной среды через нарративы • Использование локального культурного кода как основы архитектурного решения • Тактичное внедрение современных технологий без нарушения исторической атмосферы
4.1. ТЕХНИЧЕСКОЕ ЗАДАНИЕ
Общие сведения:
Объект: Особняк в 3-м Монетчиковском переулке, 4
Местоположение: Россия, г. Москва, район Замоскворечье
Функция: Бутик-отель
Цель проекта: Реновация исторического особняка под бутик — отель