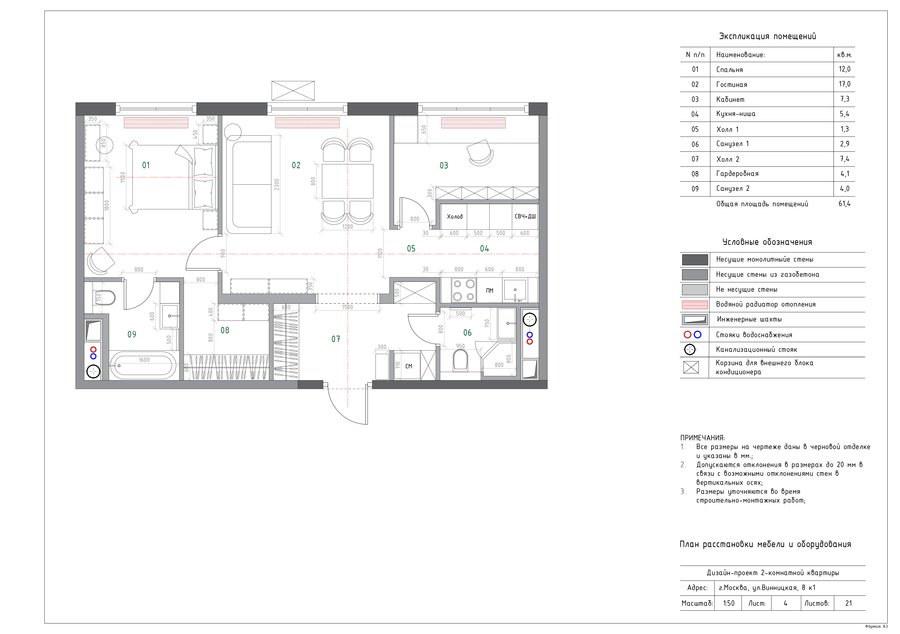
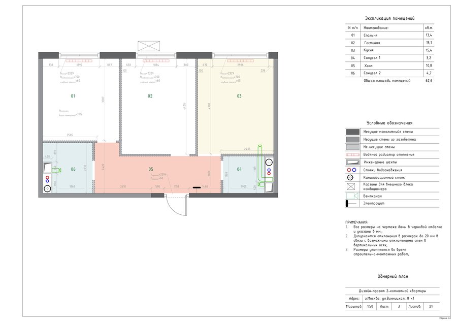
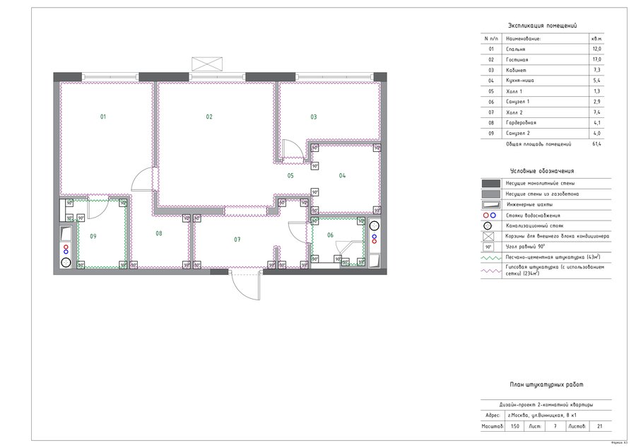
Дизайн — проект двухкомнатной квартиры для творческой девушки. Элегантный, легкий, ненавязчивый интерьер, позволяющий реализоваться творческому человеку. Интерьер выполнен в светлых тонах с использованием натуральных природных материалов, как по содержанию, так и по текстуре.
Original size 3500x2465
Original size 3500x2465
Original size 3500x2465
Original size 3500x2465
Original size 3500x2465
Original size 3500x2465
Original size 3500x2465
Original size 3500x2465
Original size 3500x2465
Original size 3500x2465




