Capsule hostels

Капсульные отели, зародившиеся в Японии, реагируют на нехватку места в городских условиях, предлагая крошечные капсулы для сна. Цена за одну ночь обычно колеблется от 40 до 50 евро, даже в таких дорогих городах, как Токио. Дешевле, чем такси, они часто являются последним средством для городских рабочих, которые задерживаются в барах и в результате опаздывают на последний поезд домой. Благодаря этой ассоциации капсульные отели стали считаться не только дешевыми, но и грязными. Раньше им отводилось место в самом низу гостиничной иерархии. Однако сегодня большая универсальность обоих способов путешествия и ожидания путешественников в отношении размещения улучшили репутацию капсульного отеля.
Хотя появление капсульных отелей может показаться чисто азиатским явлением, это явление распространяется и на другие части мира. Yotel, работающий в основном в крупных аэропортах, приобретает все большую известность в Европе и США. А капсульный отель CityHub, основанный в 2015 году, недавно открыл второй аутлет в Роттердаме, предваряя предстоящее открытие четырех новых международных точек в течение следующих двух лет.
Благодаря социальной нестабильности, первоклассным услугам и соотношению цены и качества сегодня капсульные отели переживают бум, который вряд ли утихнет в обозримом будущем.
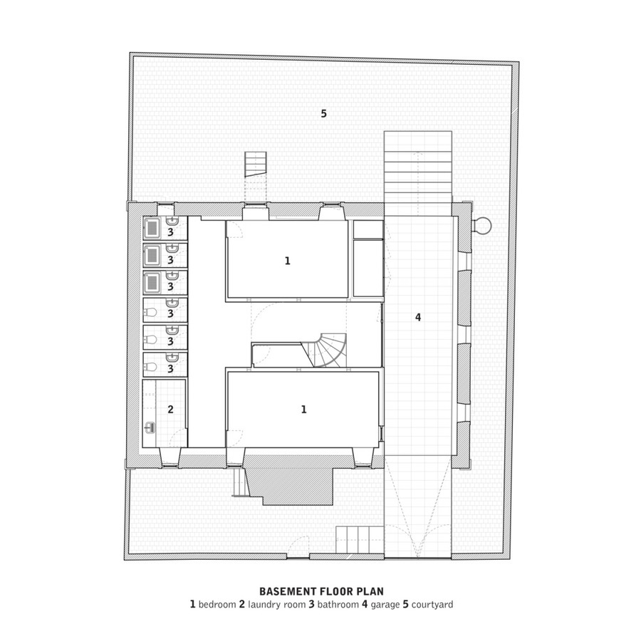
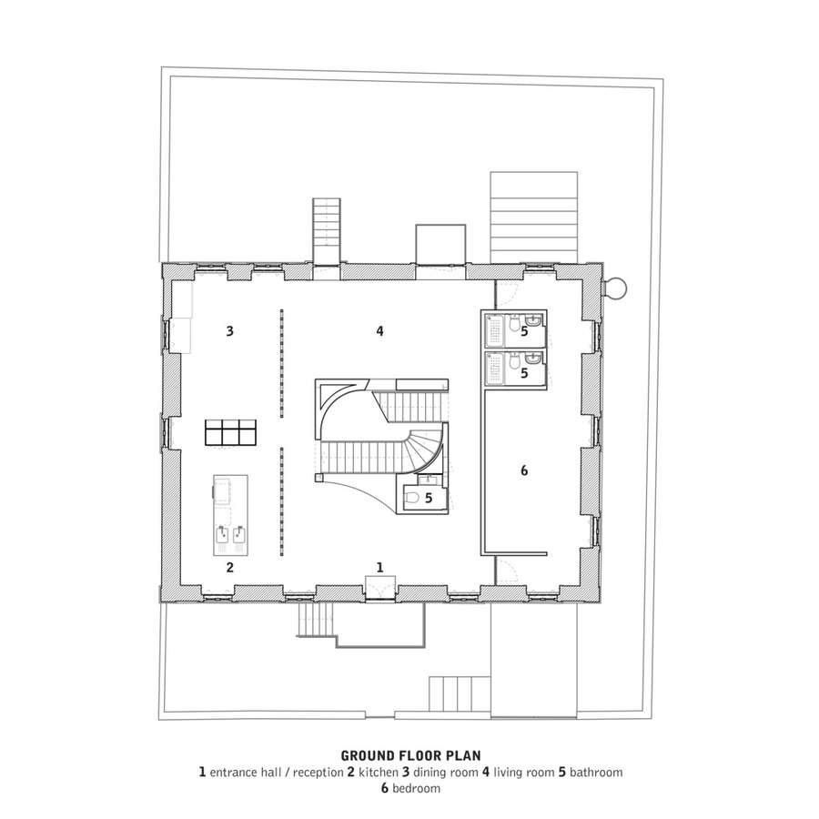
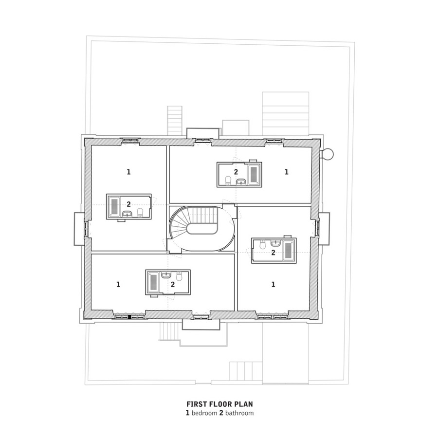
Hostel in Parede
Интерьер этого здания находился в полуразрушенном состоянии, но, несмотря на это, его крыша все еще стояла. Его сложная геометрия с четырьмя угловыми пирамидальными объемами определила структуру проекта и внутренние перегородки, разделив план на 9 модулей. В центральном модуле лестница соединяет три этажа, наполняя пространство своим желтым сиянием и естественным светом, идущим сверху. Его резко закругленные углы скрытно несут в себе все вертикальные службы здания.
Общая структура здания также основана на логике легкой будущей трансформации. Основная несущая решетка состоит из ламинированной стали с легким стальным каркасом в плитах и стенах. На верхнем этаже расположены 4 спальни, каждая с отдельной ванной комнатой.
Stayokay Rotterdam
Хостел Stayokay в Роттердаме можно по праву назвать самым крутым архитектурным наворотом, доступным для экономных путешественников. Роскошные семизвездочные отели в Дубаи давно поражают весь мир своей экстравагантной арихитектурой, но чтобы такое удалось хостелу?
Номера представляют собой кубики, хаотично разбросанные на крыше первого традиционно горизонтального этажа, где располагается ресепшн и холл хостела с баром. Да что говорить — посмотрите картинки и убедитесь сами. А лучше, конечно, в живую все проверить, потому как интерьер тоже безумно радует. Голландцы, как всегда, в ударе. А если учитывать, что хостел всего в паре шагов от порта, баров, кафе, музеев и прочих достопримечательностей, то хочется прослезиться.
Aatam Hostel & House
У Аатама есть комплекс жилых программ, включающий комнаты в общежитиях для студентов, а также жилье для семьи, владеющей участком. Проект разрабатывался шесть лет в сухом и жарком климате Кота, Раджастхан. Город Кота в Северной Индии является центром подготовки студентов к сдаче вступительных экзаменов для обучения в престижных инженерных колледжах ИИТ в Индии. Ежегодно около 200 000 студентов переезжают в Коту, проводя как минимум год на занятиях с тренерами, живя в частных общежитиях, специально предназначенных для проживания студентов в городе. Экономика Кота движима этим временным населением.
Работая с элементами традиционного хавели (форма дома Раджастана), такими как вертикальные дворы, джарокхи (смотровые балконы) и каменные джали (перфорированные ширмы), проект представляет собой переработку формы хавели, адаптированную к программным потребностям студентов. В отличие от окружающих типов рядных домов, которые вместе образуют непроницаемую стену на улице, хостел «Кота» открывается, оживляя улицу видом на внутренний двор, а затем на детскую площадку за участком.
Сочетание социального пространства террас и дворов создает аэродинамическую трубу, позволяющую ветерку проходить через здание. Открытый двор над небом перекинут мостом, соединяющим два плеча жилого дома владельцев. Здание структурировано через несколько ступенчатых террас с затененными социальными пространствами, позволяющими студентам создать визуальную связь между другими уровнями, а также с улицей и двором.



































