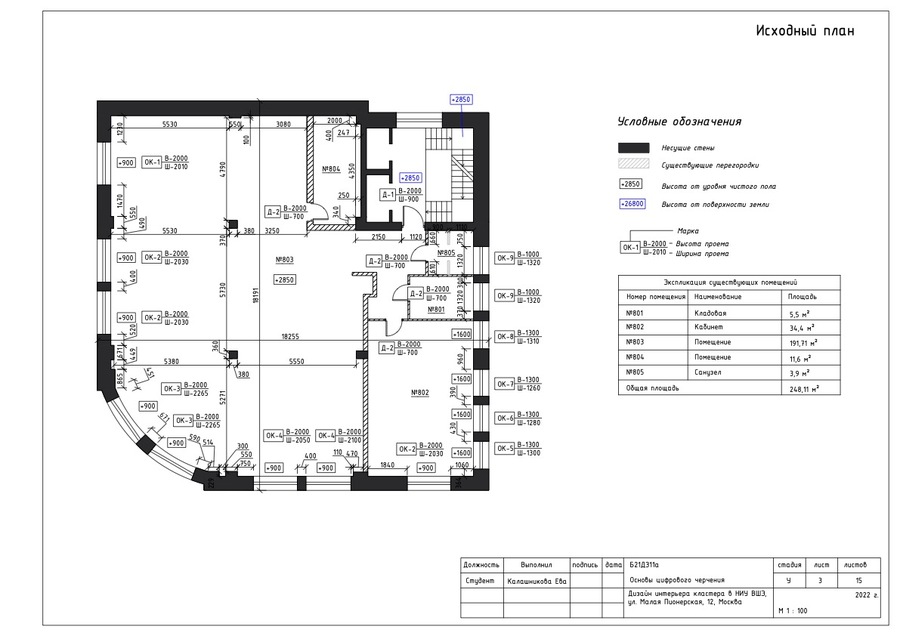
Во втором модуле был выполнен альбом чертежей для проекта дизайна интерьера учебного кластера для направления «Дизайн среды» и «Дизайн интерьера». Чертежи выполнены на основе обмеров помещения восьмого этажа Школы дизайна.

Original size 1191x842

Original size 1191x842

Original size 1191x842
Original size 1191x842
Original size 1191x842
Original size 1191x842
Original size 1191x842
Original size 1191x842
Original size 1191x842
Original size 1191x842
Original size 1191x842
Original size 1191x842
Original size 1191x842
Original size 1191x842
Original size 1191x842




