

Выставка собирает весь творческий путь Жана-Мишеля Баския в один маршрут: от уличных знаков и шума города к фабричной энергии, витринам и выставочным залам.
Архитектура внутри павильона становится сценографией. Свет, асфальт, граффити и «фасады» ведут зрителя через историю.

Поиск идеи
Начиналась работа над выставкой с тщательного продумывания концепции.
Подробно изучив биографию художника, я поняла, что объединить весь творческий путь художника довольно непросто. Тогда мне пришла идея воссоздать атмосферу в которой жил и творил художник — построить на своей выставке Нью-Йорк 80-х годов прошлого столетия.
План -1 этажа, станция метрополитена
На -1 этаже я решила разместить станцию метро, куда могут спуститься посетители и попробовать себя в роли стрит-арт художника.

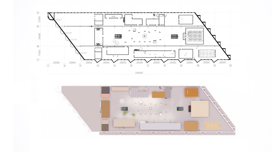
План 1 этажа
Зал «GREY»
Первый зал посвящен книге «Анатомия Грея».
В детстве Баския сломал руку и, чтобы он не переживал и понимал, что с ним происходит, его мама подарила ему эту книгу. Анатомия Грея оказала большое влияние на его творчество. Почти во всех работах художника фигурируют «фрагменты» из этой книги


Дворы «SAMO»
Этот павильон работает как закрытый двор. Зайдя туда посетитель попадает в мир граффити Баския.
Зал «ВХОД В ИГРУ»
Этот блок посвящен 1981 году — переломному моменту в жизни художника. Баския перестает быть легендой граффити и становится художником, которого постоянно выставляют в разных галереях.
Кинозал «ЭКРАН DOWNTOWN’а»
Баскетбольная площадка
Зал «ВЫСОКОЕ НАПРЯЖЕНИЕ»
Зал «BASQUIAT X WARHOL»
Холодная индустриальная оболочка, металл, асфальт, немного мусора и граффити. Здесь важна энергия совместной работы: два разных мира сталкиваются и дают искры.