
Заказчики этого проекта — молодая пара с насыщенным ритмом жизни. Они умело чередуют рабочие будни с киновечерами в кругу друзей, а выходные проводят на природе или за велопрогулками по парку. Квартира стала их продолжением — функциональной, светлой и уютной, но в то же время разнообразной и гибкой, с возможностью дальнейшей трансформации для детской.
Концепция

Первое, что захватывает внимание при взгляде на квартиру — видовая терраса последнего этажа и окна с видом на зеленую набережную. Бесконечный горизонт, высокое небо, ощущение воздуха и простора. Живописные виды, как будто написанные рукой русских художников-пейзажистов, при ближайшем сравнении напомнили знаменитую картину И. И. Левитана «Над вечным покоем».
Работы И. И. Левитана, которые легли в основу концепции проекта. С их помощью была создана цветовая палитра.
Объект находится в жк «Riverside», м.Коломенская. Строгие архитектурные линии фасадов окружены мягкой и текучей водой. Контраст этих форм перешел и в интерьер проекта, где сочетаются радиусные элементы с четкой геометрией помещения.
Так и родилась концепция проекта. Пара, парящая над городом, в окружении мягкой природы и графичных линий.
Обмерный план помещения. Просторная квартира с окнами на 3 стороны, удачным расположением мокрых зон и большим метражом.
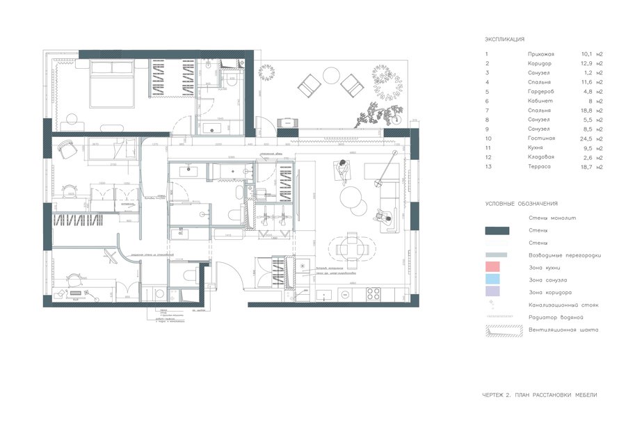
Финальная планировка проекта
Финальный вариант с круговой планировкой. В помещении удалось разместить две спальни и кабинет, три санузла, несколько гардеробных и кладовых, а так же хранение для велосипедов, не выходящее за пределы грязной зоны.
Круговая планировка упрощает навигацию в помещении, а радиусные стены и скругленные арки в коридорах придают мягкости пространству. Центральный блок отведен для просторного санузла и хранения, а в окружении расположились жилые зоны — просторная кухня-гостинная, кабинет, мастер-спальня с собственной гардеробной и санузлом, и гостевая комната, которая в будущем может трансформироваться в детскую.
Визуализация
С помощью коллажей была начата разработка стилистического решения проекта и расставление основных акцентов в помещении.
Далее уже были разработаны 3d-визуализации помещений. Трехмерная визуализация помогла показать желаемую игру света и формы в сложной геометрии пространства.
Альбом чертежей