
Кафе «Полёт» с завтраками и обедами, подаваемыми по типу питания в самолёте. Есть возможность выбора эконом, комфорт и бизнес наборов. Пространство даёт ощущение нахождения на борту самолёта, где стюардесса с улыбкой поинтересуется желанием посетителя по выбору блюда, предложит безалкогольные напитки, бокал игристого, десерт.
2025.09 Дизайн интерьера. Базовый курс (онлайн, группа 2)

Moodboard

Референсы

Materialboard
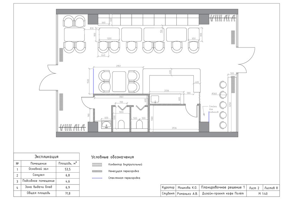
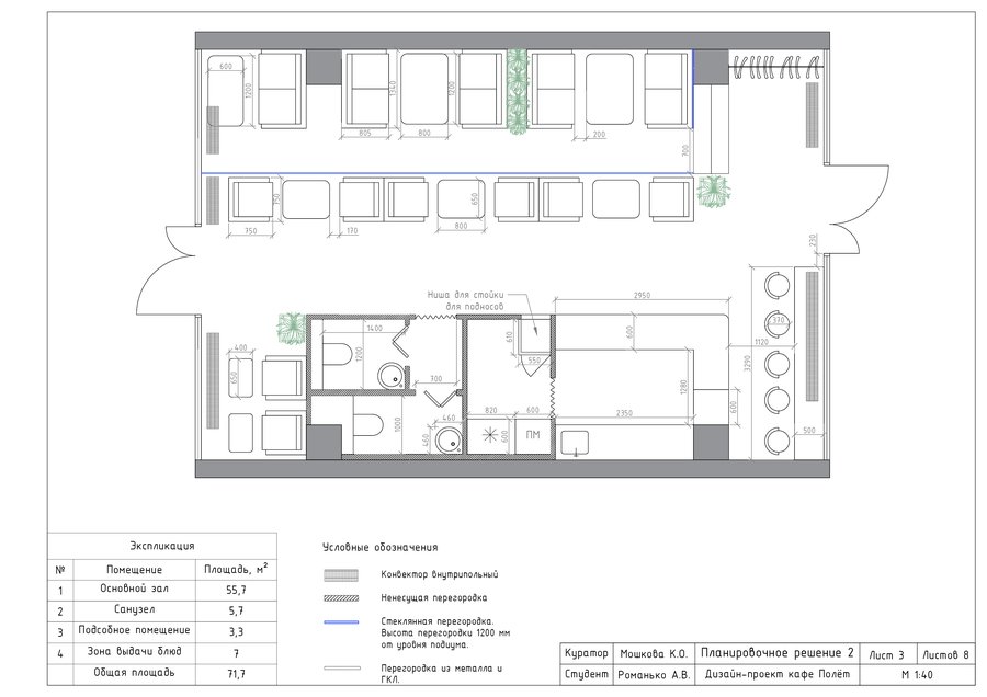
Планировка
Коллажи
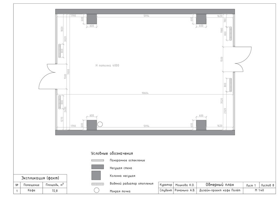
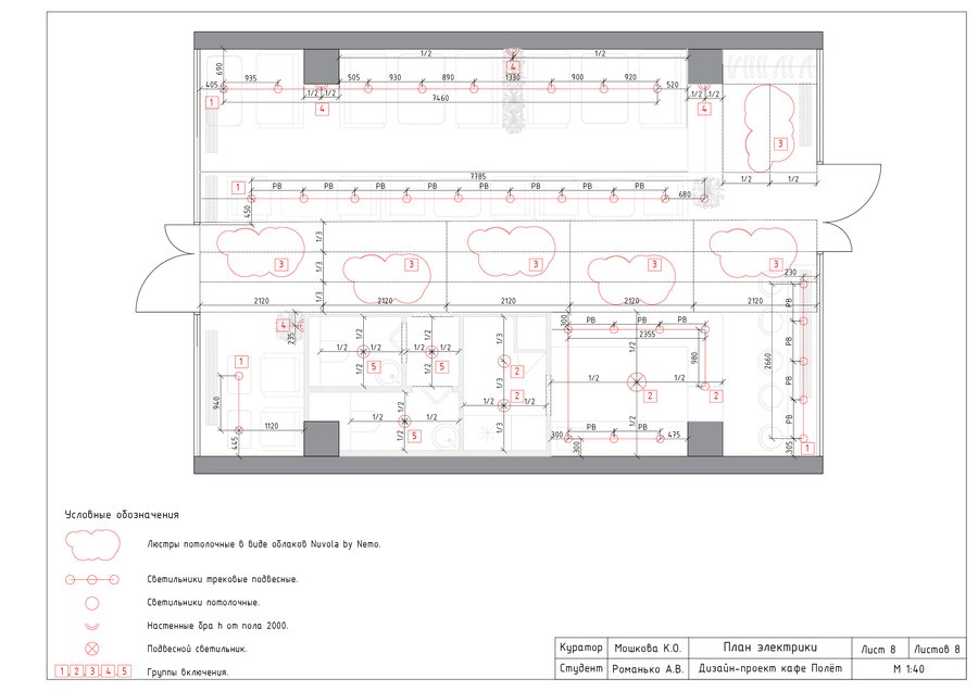
Чертежи