
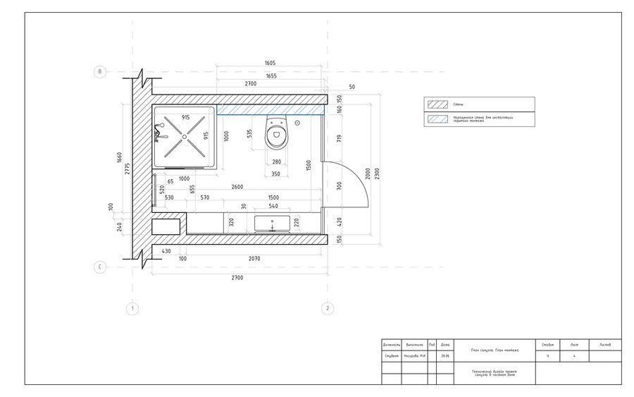
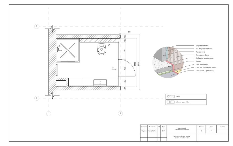
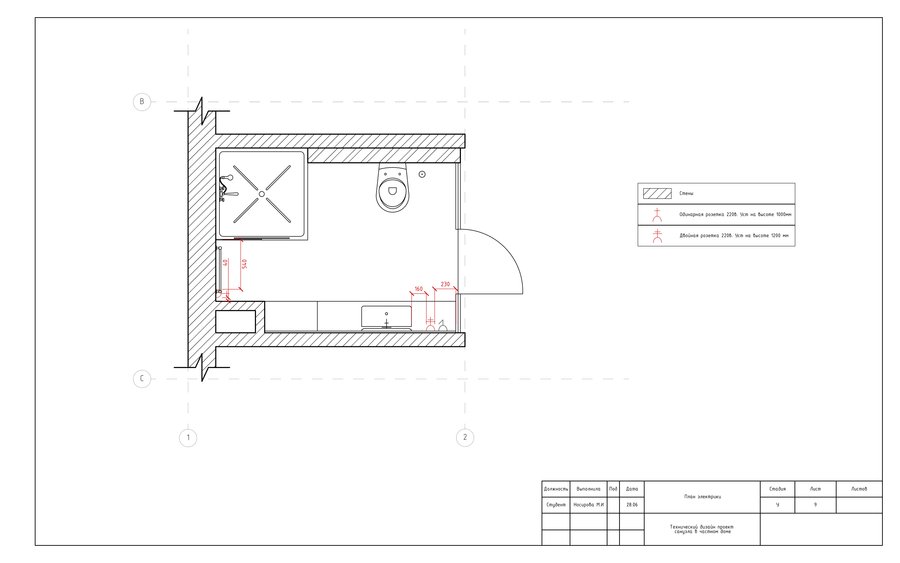
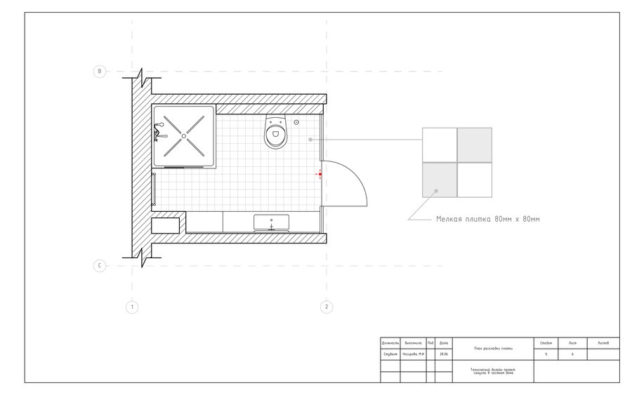
Альбом чертежей содержит планы, разрезы и спецификации санузла в частном доме, разработанном в прошлом модуле
Планы санузла
Дизайн санузла соответствует стилистике всего дома. Комплект чертежей подготовлен для проведения строительно-монтажных и отделочных работ.
Разрезы и развертка санузла
Визуализации санузла