
Проект представляет собой пространство-галерею, в котором соединяются брутальность современного бетона и тепло ручного ремесла. Интерьер построен на контрасте материалов — холодного, монолитного бетона и живых, тактильных фактур изделий из воска, керамики и рафии. Три бренда — Notem, Asiknova Ceramics и Svyazat — объединены общей философией создания уюта через материю.
Asiknova ceramics

Бренд ASIKNOVA Сeramics был основан и располагается в Санкт-Петербурге с августа 2018 года. «Я хотела создавать оригинальные и запоминающиеся вещи для интерьера, мечтая, что они привнесут в нашу жизнь позитивные эмоции и яркую искру, которой иногда не хватает в нашей жизни!» Ирина Веселова, основатель Аsiknova ceramics.
В основных коллекциях представлены керамические статуэтки различных размеров от миниатюрной неваляшки до напольной статуэтки коня на колесиках. Наши изделия выполняются вручную из глиняных масс и расписываются глазурями. Мы верим, что это позволяет оставить в работах частичку души и тепла наших рук.
Notem

Проект начался в 2020 году из любопытства и вдохновения: «я не смогла заказать с зарубежного сайта свечу, в которую влюбилась, и решила сделать ее самостоятельно! В итоге я увлеклась созданием свечей и интерес перерос в дело всей жизни „.
Больше, чем просто свечи: nōtem сегодня — это бренд концептуальных свечей арт-объектов. Мы верим, что на удовольствие от жизни влияет каждая деталь, которая окружает вас ежедневно. Поэтому мы создаем не просто вещи, а предметы, наделенные смыслом и красотой.
Svyazat'
Создатель и генеральный директор SVYAZAT’ Светлана Новосельская с детства любила рукоделие, а когда на свет появился её четвёртый ребёнок, занялась о бустройством своего дома: создавала абажуры, пуфы, декоративные подушки, панно, зеркала, делала для себя и наслаждалась процессом.
Это наша отдельная большая гордость. Каждое изделие создаётся вручную. Каждое. Исключительно. На одну позицию уходит от 1,5 до 60 часов работы одного или нескольких мастеров. Каждая бисеринка пришивается руками, каждый стежок, петелька, каждая пайетка — всё вручную.
Концепция
Проект отражает контраст современного города и ручного тепла. В основе интерьера — диалог между холодным бетоном и живыми материалами, которые несут в себе след человеческих рук: воск, керамика, пряжа.
Пространство объединяет три бренда — Notem, Asiknova Ceramics и Svyazat, — превращая их изделия в арт-объекты современного ремесла. Это не просто магазин, а галерея тепла в бетонном мире, где каждый предмет рассказывает о гармонии между индустриальной формой и человеческим чувством.
Центральный бетонный стол становится символом этого единства — устойчивым, но пластичным, соединяющим в себе архитектуру и ремесло, современность и уют.
Визуализации
торговый зал
торговый зал
зона мастер классов


примерочные
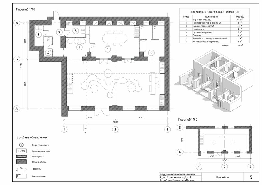
планировочное решение
1 — торговая площадь 2 — примерочные 3 — зона мастер классов 4 — кофепоинт/зона отдыха 5 — столовая для персонала 6 — санузел 7 — вестибюль 8 — раздевалка для персонала
чертежи