
Проект формирует пространство, в котором строгая геометрия и мягкая пластика работают как единая система впечатления. Интерьер строится на выразительном контрасте: лаконичные плоскости и вертикальные акценты встречаются с округлыми формами мебели, создавая баланс между дисциплиной и комфортом.
Референсы

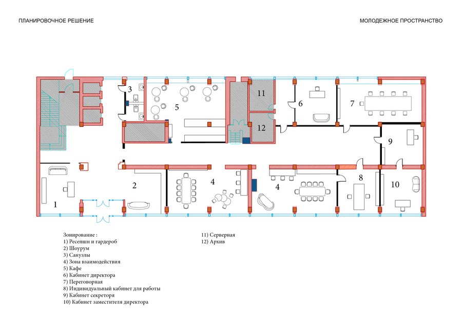
ПЛАНИРОВОЧНОЕ РЕШЕНИЕ

ВИЗУАЛИЗАЦИИ

шоурум
зона взаимодействия
кабинет