Original size 1140x1600

Дизайн-проект креативного пространства «GREEN CORE»

PROTECT STATUS: not protected

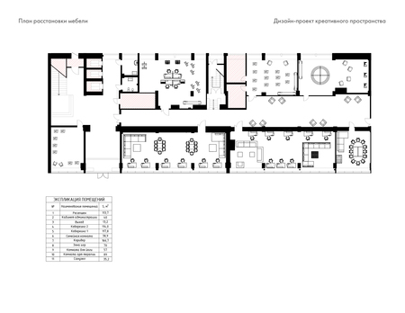
Крупное коворкинг-пространство, объединяющее функции рабочей площадки, зоны общения и места для восстановления эмоционального и физического состояния. Здесь можно поработать в тишине, встретиться с коллегами или друзьями, заняться творчеством, отдохнуть, провести время с семьёй или просто сменить обстановку.

big
Original size 1650x1275
big
Original size 1650x1275
big
Original size 1650x1275
Original size 1650x1275

Визуализации

Ресепшен и коридор

Тихий коворкинг

Original size 1650x1275

Коворкинг и комната йоги

Кабинет арт терапии

Original size 1650x1275

Зона игр и семейная комната

Санузел

Клаузура стойки ресепшен

Original size 1650x1275
We use cookies to improve the operation of the website and to enhance its usability. More detailed information on the use of cookies can be fo...
Show more