
КОНЦЕПЦИЯ
«PARLOUR» — молодежное пространство для творческих людей и людей-исследователей, любящих открыть для себя новое каждый день, от моды до науки. Это пространство про «обтекаемость» — при необходимости оно может адаптироваться и как место для креатива, и как выставочное пространство, и как место проведения лекций. При этом всем интерьер сочетает в себе эстетику бохо-шика, ориентализма и минимализма, делая это место уникальным и по-настоящему уютным и комфортным. Эта эстетика как никакая лучше отражает ценности пространства — отдых от окружающей среды, свобода творчества и мысли.
ЦЕЛЕВАЯ АУДИТОРИЯ
· Возраст: 18-35 лет. · Род занятий: Студенты, молодые специалисты, фрилансеры, представители креативных индустрий, начинающие предприниматели. Ищут комфортные рабочие места (коворкинг) для учебы и проектов. · Мотивация: Стремятся к саморазвитию, ценят внутренний покой, гармонию и свободу. Ищут не только функциональное место для работы, но и вдохновляющую атмосферу для общения и творчества.
ВИЗУАЛИЗАЦИИ

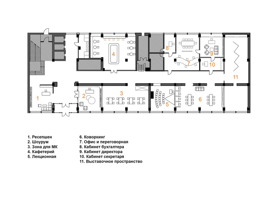
Планировка

Текстурная доска
Рецепшен, зона ожидания
Коворкинг

