
Альбом чертежей выполнен в программе Revit. Включает чертежи фасадов, разрез, аксонометрические виды, планы отделок полов, стен, потолка, планировочные решения, планы электрики, сантехники, развертки и перспективные виды.

Коттедж «Живописный» представляет собой двух этажную постройку со скатной кровлей. Площадь застройки составляет: 141 м²

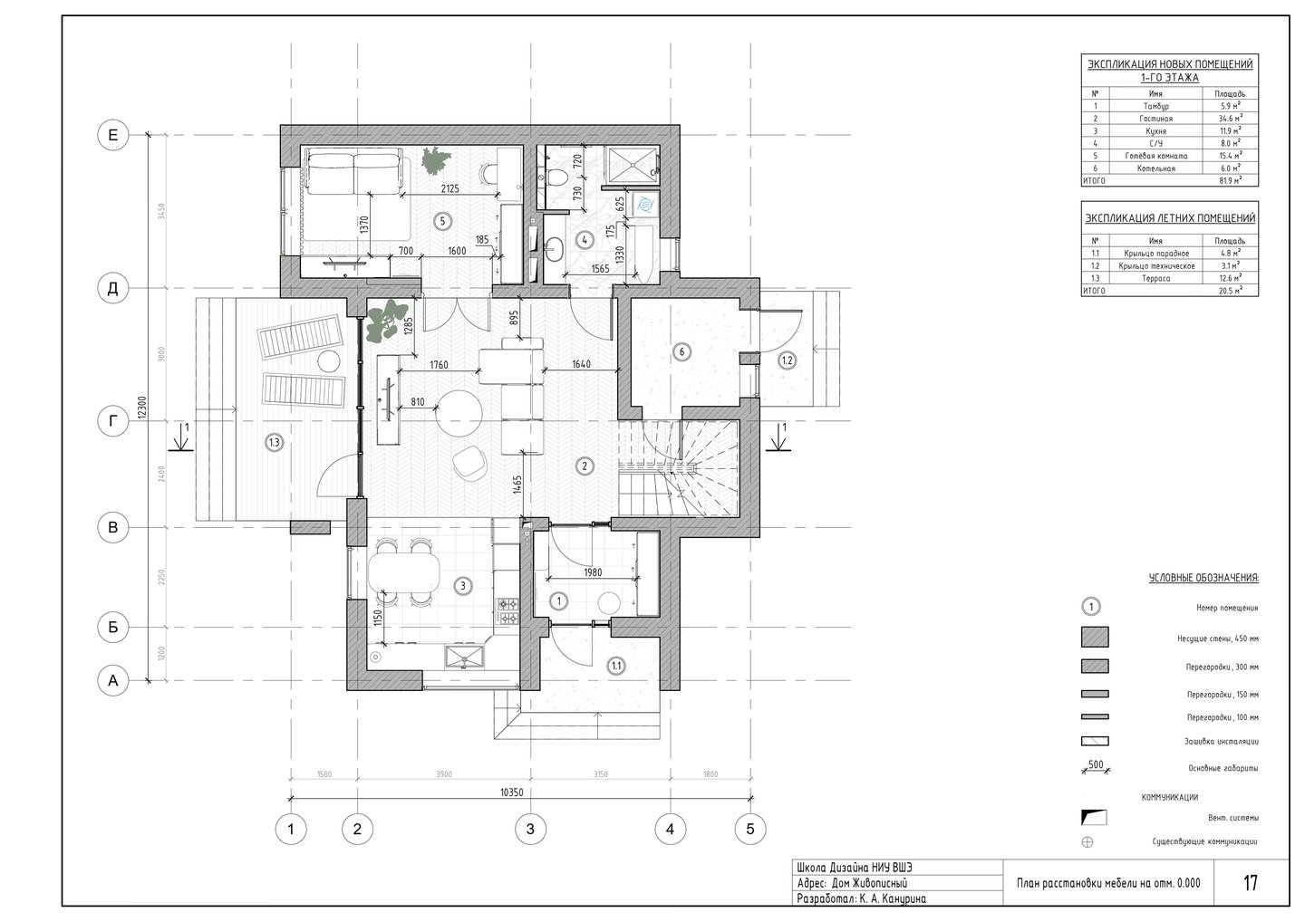
Планировочные решения
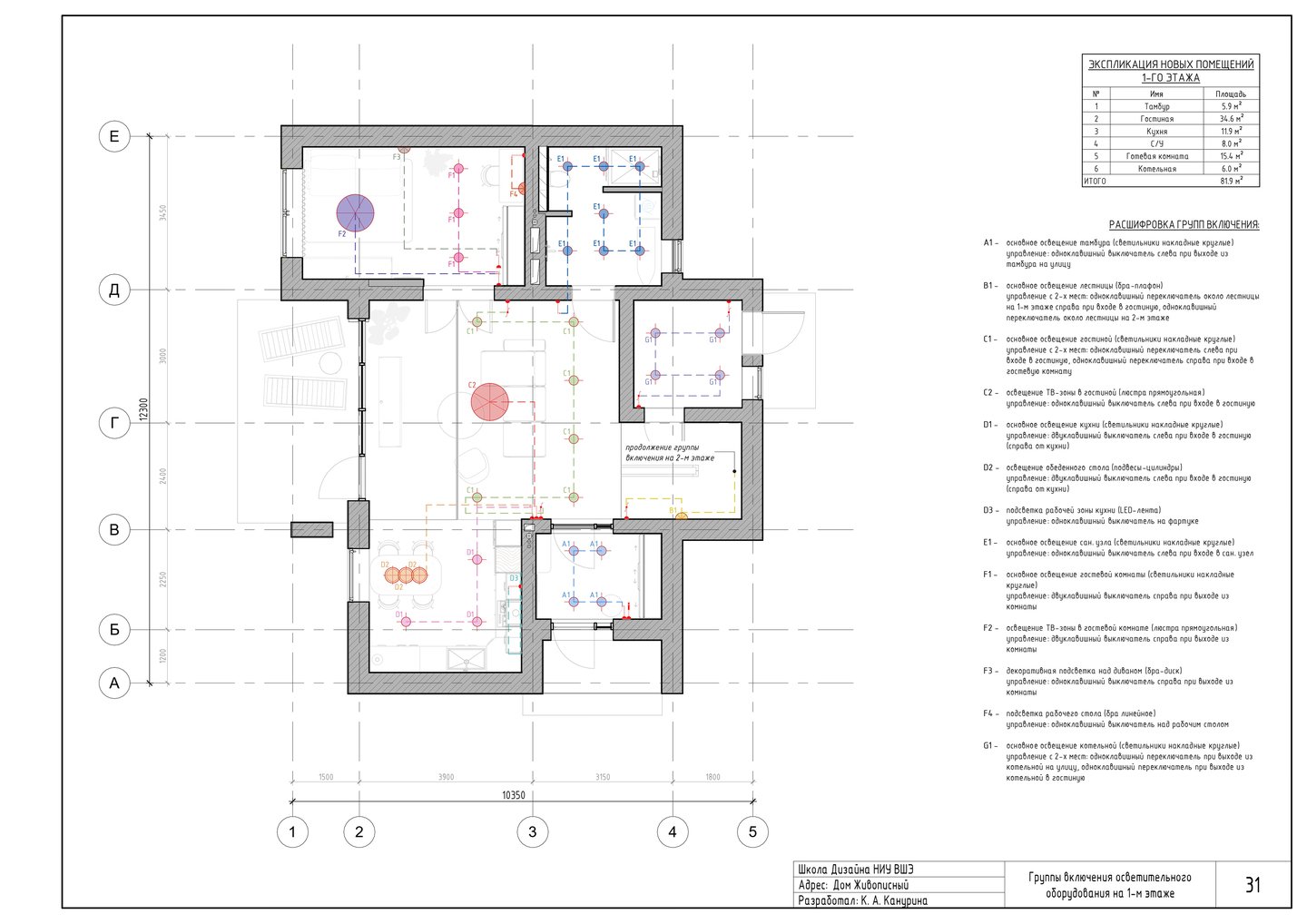
На первом этаже расположен входной тамбур (1), объединённая кухня-гостиная (2-3), гостевая комната (5), сан. узел (4) и котельная (6). Общая площадь данных помещений: 81,9 м².
Летние помещения представлены террасой (1.3) и двумя крыльцами: парадным (1.1) и техническим (1.2), через второе можно попасть в помещение котельной. Общая площадь летних помещений без коэффициентов: 20,5 м².
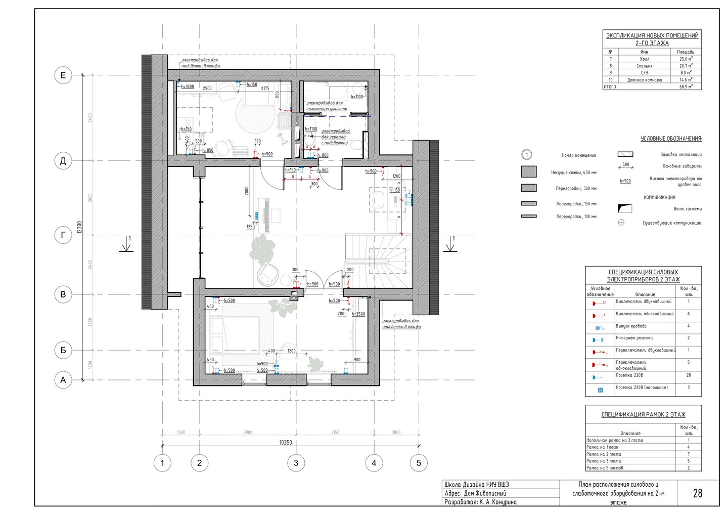
На втором этаже расположены спальня (8), детская комната (10), сан. узел (9) и рабочее пространство в объёме холла (7). Общая площадь: 68,9 м².
Планы отделок
Электрика
Развертки