
Концепция
Архитектура Японии XX–XXI веков представляет собой неповторимое феномен, который сочетает в себе многовековые традиций и инноваций. Японские архитекторы этого периода не только переосмысливали историческое наследие страны, но и стремились в сторону технологических экспериментов. К тому же в XX веке культура других стран не прекращает оказывать сильное влияние на Японию. Особенно это было заметно со стороны США в послевоенное время. Несмотря на это, японским архитектором удалось сохранить связь с традициями, адаптируя их под современные реалии.
Кроме того, в XX веке Япония пережила ряд событий, которые сильно ее изменили. Это и Великое землетрясение Канто 1923 года, и Вторая мировая война, и атомные бомбардировки Хиросимы и Нагасаки. Все эти события превратили японские города в руины. Однако события XX века послужили революционным толчком в области архитектуры. В 1960-х годах, на волне экономического подъема, японские архитекторы переосмысливали подходы к строительству и искали новые формы, отражающие динамику современного общества. Этим Япония доказала, что даже в условиях кризиса можно создать новый язык для творчества, который
Одним из ключевых направлений искусства стал метаболизм — течение в искусстве, зародившееся в Японии и провозгласившим архитектуру «живым организмом», которое способно расти и изменяться. Метаболисты предлагали проекты зданий, которые можно было бы расширять и перестраивать, подобно биологическим проектам. Также параллельно техническому прогрессу развивалось такое течение как минимализм. Данное направление было вдохновленно традиционной эстетикой синтоизма и дзен-буддизма.
В этом визуальном исследовании я стремлюсь понять, как именно изменилась японская архитектура XX–XXI веков, какие новые особенности она обрела. Для этого я сначала рассмотрю архитектурные особенности Японии прошлых столетий. Далее я буду наблюдать за изменениями хода мыслей японских архитекторов различных эпох (Мэйдзи, Тайсё, Сёва, Хейсей). Для этого я планирую обратится к творчеству Кензо Танге, Фумихико Маки, Кисе Курокава и других японский зодчих. Перед собой я ставлю следующие вопросы: Как традиционные японские принципы трансформировались в современной архитектуре? Какое влияние оказали катастрофы (землетрясение и война) на развитие архитектуры Японии? Какие основные направления искусства присутствовали в японской архитектуре XX–XXI веков? Какие инновационные технологии были разработаны в Японии? Проанализировав текстовые источники и фотографии архитектурных строений, я попытаюсь выделить основные тенденции и особенности японского зодчества XX–XXI века.
Особенности Японской архитектуры до XX века
Японские архитекторы проектировали здания с учётом ландшафта, поэтому японская архитектура всегда отличалась гармоничным сочетанием с природой. Основным материалом для построек служило дерево — доступный ресурс, подходящий для влажного климата и частой сейсмической активности. Для строительства домов и храмов использовалась специальная техника «кигуми» — метод соединения деревянных элементов без использования гвоздей.
Также японские архитекторы уделяли внимание свету в своих проектах. В строительстве использовались полупрозрачные материалы, что позволяло естественному свету проникать внутрь помещения. Это помогало создавать плавный переход между внешним миром и внутренним убранством.
Трепетное отношение японцев к религии также стало отличительной чертой архитектуры. Буддийские и синтоистские храмы выделяются крутыми крышами, изогнутыми карнизами, сложной системой колонн и украшений — изысканной резьбой по дереву, росписью и каллиграфией.
Того Мурано

Работы Мурано оказали значительное влияние на формирование современной японской архитектуры. Того не придерживался какого-либо одного архитектурного стиля. В его проектах прослеживается синтез традиционных японских приёмов и западных архитектурных элементов. Например, при создании пристройки Касуиэн к отелю Мияко в Киото Мурано объединил стиль сукия — традиционное японское архитектурное направление, связанное с чайными церемониями, — с современными материалами, такими как бетон и сталь.
Творчество Того можно назвать мостом между довоенной и послевоенной Японией. Его карьера началась задолго до Второй мировой войны, в период постепенной модернизации, а после событий 1945 года он сумел переосмыслить своё творчество в соответствии с реалиями — разгромленной, но развивающейся Японии. Мемориальный собор мира в Хиросиме или собор Наборито можно считать ярким примером такого взгляда на архитектуру. Собор построен из кирпича и бетона, декорирован витражами с изображением слив, бамбука и сосны (японские элементы), а также содержит орган и бронзовые двери (элементы западной культуры). Планировка вдохновлена византийскими храмами — базилика с 45-метровой колокольней и куполом. Бетонный каркас из столбов и балок с внутренними панелями напоминает традиционную японскую архитектуру.


Кензо Танге

Кензо Танге также является одним из основоположником современной архитектуры Японии. В его работах ярко выражены такие особенности, как структурность, лаконичность, урбанизм, эмоциональность и символика. Главной его заслугой считается мастерское объединение традиционной восточной (деревянные конструкции, связь с природой) и западной архитектуры (железобетон, функциональность, геометрия). Кензо Тангэ является основателем движения метаболизма, где здания воспринимались как живые существа, которые способны расти и развиваться. Танге занимался исследованиями в сфере градостроительства, предлагая новые подходы к планированию японских городов. Он применял модульные, расширяемые структуры, например, проект «Токио — 1960». Хотя Кензо испытывал страсть к символизму и крупным проектам, он не забывал уделять внимание удобству и функциональности зданий. Высшим достижением архитектора стали олимпийские объекты 1964 года и храм Святой Марии. Его постройки отличаются ясностью форм и рациональной взаимосвязью элементов.














Фумихико Маки

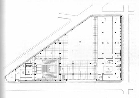
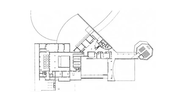
Фумихико Маки в своих проектах сочетал принципы западного модернизма с японскими приемами архитектуры. В свои работах часто Фумихико использовал концепции организации пространства «ма» (создание пауз) и «оку» (создание глубины, внутренней сущности). Также отличительной чертой творчества Маки было игра с естественным освещением. Применение нержавеющей стали, анодированного алюминия (прочнее и устойчивее перед перепадами температуры, чем обычный алюминий) в сочетании с стеклянными плитами помогало создавать в интерьере интересную игру света. Например, спортивный зал в Фудзикаве свет играет важную роль в восприятии пространства. При этом Фумихико стремился к минимализму, исключая лишние детали и концентрируясь внимание на простоте здания.
Главным достижением Маки было разработка концепции «коллективной формы». Согласно ей, архитектура должна развиваться вместе с городом, адаптируясь со временем и обстоятельствами. Примером воплощения данной идеи является проект Hilliside Terrace в Токио. Он развивался на протяжении трех десятилетий и отражает постепенное изменение ландшафта города.


«Я не пытаюсь использовать сложные формы или текстуры в проектах. Это своего рода дисциплина, к которой я себя приучил. Существует загадочный метод для всего процесса проектирования, а также сознательные и бессознательные решения. Я не пытаюсь намеренно создать необычное пространство, наделив его тем, чего бы вы не видели. Вместо этого я с уважением отношусь к потребностям людей, к тому, что может им понравится или не понравится»




Арата Исодзаки

Детские годы Арата Исодзаки прошли среди разрушенной послевоенной Японии, что способствовало его отношению к архитектуре как инструменту возрождения. «Моим первым впечатлением от архитектуры было отсутствие архитектуры.» — говорил Арата. Кроме того, Исодзаки являлся одним из учеников архитектора Кензо Танге. В творчестве Арата сложно выделить один стиль. Он работал в таких стилях, как марьенизм, метаболизм, брутализм и постмодернизм. Сначала под влияние своего наставника Кензо Танго он создавал проекты, основанные на модульных конструкциях, способных видоизменяться. Например, каркас библиотеки в Оите из железобетонных труб позволял расширить здание аналогично процессу роста человеческого организма. Потом же в его работах прослеживались элементы иронии.
Как и другие архитекторы этого периода Исодзаки пытался сочетать японское традиционное искусство с западным. Также в его работах не редко встречаются размышления о времени, пустоте и культуре. Поэтому он часто прибегал к японской концепции организации места «ма», подразумевающей создание пустот и пауз, позволяющих человеку лучше ощутить пространство. Ему хотелось, чтоб его работы рождали сильные эмоции у зрителей.
«Чтобы найти наиболее подходящий способ решения этих проблем, я не мог остановиться на одном стиле. Изменения стали постоянными. Парадоксально, но это стало моим собственным стилем.»




Тадао Андо

Несмотря на то, что Тадао Андо был самоучкой, ему удалось внести значительный вклад в современную архитектуру. На его творчество сильно повлияло французское искусство, особенно работы архитектора Ле Корбюзье. Андо отличался от других архитекторов своей любовью к природе, стремлением к гармонии и простоте линий. Его фирменным материалом стал бетон, который в его работах напоминал шелк. Этого эффекта удавалось достичь благодаря идеально выполненной опалубке из дерева.
Свет также играет центральную роль в проектах Андо. Он использует естественное освещение для создания драматических эффектов и выразительных акцентов в интерьерах. Церковь Света в Осаке служит ярким примером подобного приема «игры света».
Архитектура Андо также глубоко связана с философией дзэн. Для него важно создавать такие пространства, которые вдохновляют на глубокую медитацию и духовное погружение через простоту и гармонию.


«Поместив крест в центр текущей воды, я хотел выразить идею Бога, существующего в сердце и уме человека» — говорит Андо о Храме на воде
Шигеру Бан

Шигеру Бан знаменит своим новаторским подходом, который объединяет традиционные японские ценности с идеями современной архитектуры. Его проекты воплощают ключевые черты японского стиля (природные материалы, минимализм, единение с природой) гармонично сочетая их с передовыми конструктивными решениями. Работы Шигеру Бана отличаются функциональностью и экологичностью. Сам архитектор отмечает, что в своих проектах он предпочитает использовать необычные материалы, например, бумагу и переработанное сырьё. В проекте временного жилья после землетрясения в Кобе в 1995 году фундамент был выполнен из стеклянных бутылок, заполненных песком, а стены — из бумаги. Также для него важно, чтобы здание имело конструкцию, которую можно быстро собрать и легко утилизировать. Японский павильон на выставке Expo 2000 в Ганновере представлял собой волнообразную конструкцию из картонных труб, покрытых плёнкой ПВХ. Постройка простояла шесть месяцев, после чего была отправлена на переработку.


Дзюнья Исигами

Дзюнья Исигами — знаменитый японский архитектор, который прославился благодаря своим инновационным методам проектирования и органичному соединению природных элементов с современными технологиями. В его работах также прослеживается глубокая философия и утончённый минимализм. Он стремится стереть границу между архитектурой и окружающей средой. Активно экспериментируя с материалами и конструкциями, архитектор достигает ощущения лёгкости и гармонии с природой. Ему важно, чтобы здания не противоречили окружающей среде. Дзюнья отрицает общепринятые взгляды на архитектуру, добиваясь свободы самовыражения в своих проектах. Всё это помогает ему воплощать в жизнь сложные, но уникальные проекты, например, подземный ресторан в Убе, строительство которого продолжалось шесть лет из-за особой техники бетонирования грунта. Излишний грунт не убирали, а наоборот, интегрировали в интерьер ресторана.


«Я хотел создать павильон, который выглядел бы примитивным и древним, что-то среднее между зданием и ландшафтом. Шиферные крыши встречаются по всему миру, это архетипическая форма», — говорит Исигами.




Заключение
Архитектура Японии XX–XXI веков — это постоянный диалог традиций и технического прогресса. Кензо Танго предложил прием «растущих» конструкций. Арата Исодзаки и Фумихико Маки экспериментировали с концепцией «ма», а Тадао Андо с бетоном и светом. Шигеру Бан поднимал важные темы в своих произведениях, создавая их из бумаги. Дзюнья Исигами стирал границы между природой и зданием. Но во всех их работах прослеживаются следующие мотивы: уважение к традициям, эксперименты с материалами, принятие временности. Именно это делает японскую архитектуру такой уникальной.
Fumihiko Maki Investigations in Collective Form. the School of Architecture, 1964. 50 с.
Kaze-no-Oka Crematorium: Fumihiko Maki’s Architecture of Reflection // ArchEyes [Электронный ресурс] URL: https://archeyes.com/kaze-no-oka-crematorium-fumihiko-maki/ (дата обращения: 07.05.2025).
Riichi Miyake Shigeru Ban: paper in architecture. New York: Rizzoli International Publications, 2009. 232 с.
The legacy of Fumihiko Maki, pioneer of Metabolism in Japanese architecture // Stirworld [Электронный ресурс] URL: https://www.stirworld.com/see-features-the-legacy-of-fumihiko-maki-pioneer-of-metabolism-in-japanese-architecture (дата обращения: 07.05.2025).
Togo Murano // Wikipedia [Электронный ресурс] URL: https://en.wikipedia.org/wiki/Togo_Murano? (дата обращения: 08.05.2025).
АРХИТЕКТУРА ЯПОНИИ // Architime [Электронный ресурс] URL: https://www.architime.ru/archiworld/japan.htm (дата обращения: 08.05.2025).
Дзюнья Исигами выстроил уникальную площадь в Канагаве // Interior+Design [Электронный ресурс] URL: https://www.interior.ru/architecture/11302-dzyuniya-isigami-vistroil-unikalinuyu-ploschadi-v-kanagave.html (дата обращения: 07.05.2025).
Колесова А. В., Обвинцева К. Н. Конструкции в архитектуре Японии // Научный альманах. 2024. № 1. [Электронный ресурс] URL: https://na-journal.ru/1-2024-stroitelstvo-arhitektura/8300-konstrukcii-v-arhitekture-yaponii (дата обращения: 07.05.2025).
От метаболизма до постмодернизма: 10 главных проектов Араты Исодзаки // Losko [Электронный ресурс] URL: https://losko.ru/10-arata-isodzaki-buildings/ (дата обращения: 07.05.2025).
Сигэру Бан: «Удовлетворение от воплощенного коммерческого или гуманитарного проекта — одинаково» // Archi [Электронный ресурс] URL: https://archi.ru/world/73353/sigeru-ban (дата обращения: 07.05.2025).
Тадао Андо — японский архитектор-самоучка, получивший Притцеровскую премию // Losko [Электронный ресурс] URL: https://losko.ru/tadao-ando-biography/ (дата обращения: 08.05.2025).
Того Мурано // АльфапедиЯ [Электронный ресурс] URL: https://alphapedia.ru/w/Togo_Murano (дата обращения: 08.05.2025).
Удо Культерман Кензо Танге. Москва: Стройиздат, 1978. 256 с.
Фумихико Маки: дверь в другое пространство // Berlogos [Электронный ресурс] URL: http://www.berlogos.ru/article/fumihiko-maki-dver-v-drugoe-prostranstvo/ (дата обращения: 07.05.2025).
Шигеру Бан: архитектура из бумаги // mydecor [Электронный ресурс] URL: https://mydecor.ru/heroes/architects/shigeru-ban-id6790287/ (дата обращения: 07.05.2025).
Шигеру Бан: пять мыслей о временном, постоянном и зависти // Interior+Design [Электронный ресурс] URL: https://www.interior.ru/education/geroi-dizaina/6496-shigeru-ban-pyat-myslej-o-vremennom-postoyannom-i-zavisti.html (дата обращения: 07.05.2025).
Kaze-no-Oka Crematorium: Fumihiko Maki’s Architecture of Reflection // ArchEyes [Электронный ресурс] URL: https://archeyes.com/kaze-no-oka-crematorium-fumihiko-maki/ (дата обращения: 07.05.2025).
The legacy of Fumihiko Maki, pioneer of Metabolism in Japanese architecture // Stirworld [Электронный ресурс] URL: https://www.stirworld.com/see-features-the-legacy-of-fumihiko-maki-pioneer-of-metabolism-in-japanese-architecture (дата обращения: 07.05.2025).
Togo Murano // Wikipedia [Электронный ресурс] URL: https://en.wikipedia.org/wiki/Togo_Murano? (дата обращения: 08.05.2025).
АРХИТЕКТУРА ЯПОНИИ // Architime [Электронный ресурс] URL: https://www.architime.ru/archiworld/japan.htm (дата обращения: 08.05.2025).
Дзюнья Исигами выстроил уникальную площадь в Канагаве // Interior+Design [Электронный ресурс] URL: https://www.interior.ru/architecture/11302-dzyuniya-isigami-vistroil-unikalinuyu-ploschadi-v-kanagave.html (дата обращения: 07.05.2025).
От метаболизма до постмодернизма: 10 главных проектов Араты Исодзаки // Losko [Электронный ресурс] URL: https://losko.ru/10-arata-isodzaki-buildings/ (дата обращения: 07.05.2025).
Сигэру Бан: «Удовлетворение от воплощенного коммерческого или гуманитарного проекта — одинаково» // Archi [Электронный ресурс] URL: https://archi.ru/world/73353/sigeru-ban (дата обращения: 07.05.2025).
Тадао Андо — японский архитектор-самоучка, получивший Притцеровскую премию // Losko [Электронный ресурс] URL: https://losko.ru/tadao-ando-biography/ (дата обращения: 08.05.2025).
Того Мурано // АльфапедиЯ [Электронный ресурс] URL: https://alphapedia.ru/w/Togo_Murano (дата обращения: 08.05.2025).
Удо Культерман Кензо Танге. Москва: Стройиздат, 1978. 256 с.
Фумихико Маки: дверь в другое пространство // Berlogos [Электронный ресурс] URL: http://www.berlogos.ru/article/fumihiko-maki-dver-v-drugoe-prostranstvo/ (дата обращения: 07.05.2025).
Храма Хорюдзи (Япония) // Go‑Japan [Электронный ресурс] URL: https://go-japan.ru/sights/khramy/khram-khoryudzi/ (дата обращения: 07.05.2025).
Шигеру Бан: архитектура из бумаги // mydecor [Электронный ресурс] URL: https://mydecor.ru/heroes/architects/shigeru-ban-id6790287/ (дата обращения: 07.05.2025).