
СИТУАЦИОННЫЙ ПЛАН ИСТОРИЧЕСКАЯ СПРАВКА
В 1730-х годах на участке по Садовой улице планировалось строительство Морского полкового двора, но проект не был реализован. 1. Строительство: Здание рынка было возведено в 1788–1789 годах по проекту, утвержденному Екатериной II. Архитектор точно не известен. По одной из версий, автором проекта был Джакомо Кваренги. 2. Инициатива и финансирование: Строительство инициировали и профинансировали местные купцы. 3. Первое название: Изначально рынок назвали «Очаковский», так как его строительство завершилось в день взятия русскими войсками под руководством А. В. Суворова турецкой крепости Очаков.

Садовая улица 62, Санкт-Петербург Никольские ряды
КОНЦЕПЦИЯ С МУДБОРДОМ
«Car Lover» — это место, где объединены коворкинг (зона для работы), офисы, кабинеты, кафе и сменная выставка автомобилей. Главная цель — создать комфортную среду для работы и отдыха, где главным элементом интерьера являются интересные машины.
Лаконичный дизайн из натурального дерева, стекла и мягкого текстиля служит идеальным фоном, позволяя главным героям — уникальным автомобилям — раскрывать свою историю и приковывать взгляды.
ЦВЕТОВАЯ ПАЛИТРА


Эскизы пространства
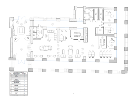
ПЛАНЫ


1. Зонирование 2. Расстановка мебели
ВИЗУАЛИЗАЦИИ
ПРОЕКТИРОВАНИЕ СТОЙКИ РЕЦЕПЦИИ
Чертеж