
Концепция моего проекта GREENLAB заключается в создании многофункционального молодежного пространства, которое представляет собой арт-помещение для работы и отдыха с различными видами коворкингов, активных зон, тихих зон для уединения и выставочным пространством.
АНАЛИТИКА
Целевая аудитория пространства — это студенты и преподаватели высшей школы экономики, люди, работающие вне офиса, а также группа людей, интересующихся искусством.
МУДБОРД

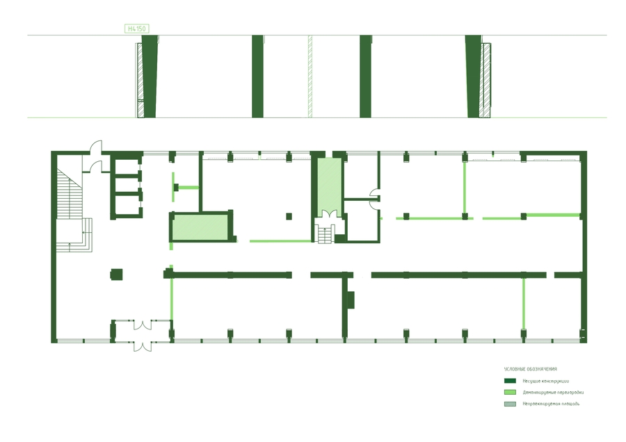
Исходный план, зонирование и планировка
Далее представлен поисковый эскиз зеленой зоны, нарисованный от руки
ВИЗУАЛИЗАЦИИ
В центре входной зоны стоит ресепшн, а вокруг есть точечные места для отдыха и работы


входная зона


коридор
В зоне коворкингов можно расположиться большой компанией и поработать или пообщаться в отдельных боксах-беседках
зона коворкингов
Зеленая зона представляет собой гибкое пространство с искусственным озеленением, где можно поработать или отдохнуть в атмосфере природы
Габаритные размеры стойки ресепшена