
ВВЕДЕНИЕ
Город развивается неравномерно: одни территории активно перестраиваются и наполняются новыми функциями, другие постепенно теряют значение и оказываются в стороне от современных процессов. Особенно часто это происходит с промышленными объектами, которые после остановки производства остаются в городской среде как напоминание о времени, когда они имели важную роль. Несмотря на утрату прежней функции, такие здания сохраняют особую атмосферу и материальные следы прошлого, которые делают их значимыми для понимания истории города. Адаптивное повторное использование позволяет рассматривать эти объекты не как устаревшие, а как обладающие потенциалом — способные заново включиться в жизнь города в новой функции.
Хлебозавод № 6 на улице 8 Марта в Екатеринбурге относится именно к таким объектам. Построенный в 1978 году, он долгое время был частью производственной инфраструктуры города. После прекращения работы завод утратил связь с повседневностью — территория стала закрытой, а сам корпус постепенно начал восприниматься как остаток прежней эпохи. В то же время его архитектура остаётся выразительной: производственные объёмы, большие пролёты и характерная индустриальная логика формируют пространство, обладающее собственным, легко считываемым характером. Всё это делает здание ценным не только как материальный объект, но и как носитель «духа места».
Гипотеза исследования заключается в том, что адаптивное повторное использование хлебозавода № 6, основанное на сохранении его пространственной структуры и индустриальных особенностей, может сформировать востребованное общественное пространство гастрономического профиля. Предполагается, что именно существующая архитектура станет основой для формирования аутентичного будущего комплекса, а бережная работа с характерными качествами здания позволит усилить его значимость в городском контексте.
Выбор новой функции — гастрономического центра уральской кухни — связан с историей самого здания. Производство хлеба было частью городской повседневности, и развитие темы еды в современном формате воспринимается как естественное продолжение истории места. Кроме того, гастрономические пространства становятся важными центрами городской активности: они объединяют отдых, образование, исследование локальных продуктов и создают новые социальные сценарии. Архитектурные особенности хлебозавода хорошо подходят для гибкой трансформации и позволяют разместить в нём фуд-холл, образовательные кухни, дегустационные зоны. А расположение здания в одном из активных районов Екатеринбурга даёт возможность создать объект, который сможет стать значимым не только для ближайшего окружения, но и для более широкой городской аудитории.
Опираясь на исследования адаптивного повторного использования, проект рассматривает существующее здание как основу для дальнейшей работы. Важной задачей становится не замена архитектуры, а её осмысление: выявление тех качеств, которые формируют атмосферу объекта и могут быть использованы в новом проекте. Сохранённая индустриальная структура служит отправной точкой, а современные элементы дополняют её, формируя новое содержание без необходимости кардинального преобразования всего объёма.
В рамках предпроектного анализа основное внимание уделяется выявлению архитектурных, конструктивных и пространственных особенностей здания, а также изучению его контекста. Цель анализа — собрать и систематизировать информацию о здании, окружающем районе, связях с городской средой и потенциале для будущей функции, чтобы создать надежную базу для проектного решения. Задачи исследования включают изучение исторических и современных карт, планов, фасадов и разрезов, анализ градостроительного контекста и транспортной доступности, оценку функциональных возможностей помещений, а также выявление факторов, которые могут повлиять на организацию пространства и сценарии движения посетителей и персонала.
В итоге реконструкция хлебозавода № 6 рассматривается как возможность включить промышленное здание в современную городскую жизнь и превратить его в гастрономический центр, который объединит историю места, новые функции и потребности жителей. Предпроектный анализ направлен на изучение потенциала здания, его связи с городским контекстом и тех особенностей, которые должны быть учтены в дальнейшем проектировании.
ДУХ МЕСТА
[*] ИСТОРИЧЕСКАЯ СПРАВКА
Район, в котором сегодня расположен Хлебозавод № 6, начал активно формироваться в советский период как одна из периферийных зон южной части Екатеринбурга. В 1960–1970-е годы здесь велось масштабное жилищное строительство: кварталы застраивались типовыми многоэтажными домами, появлялись новые дороги, инженерная инфраструктура и объекты обслуживания. Территория постепенно превращалась из малоосвоенного участка городской окраины в полноценный жилой район с развитой сетью социальных и промышленных объектов.


Фотографии района Вторчермет в конце 1950-х годов
Площадка, где впоследствии появился Хлебозавод № 6, долгое время оставалась незастроенной. По архивным картам и спутниковым снимкам видно, что вплоть до середины 1970-х годов здесь находился пустырь, использовавшийся как техническая или временная хозяйственная территория без капитальных строений. Лишь во второй половине десятилетия участок был включён в программу промышленного развития города.
Спутниковая карта г. Екатеринбурга. 1974 г.
Строительство хлебозавода, завершённое в 1978 году, стало первым крупным объектом на этом месте и определило дальнейшее функциональное освоение территории. Завод органично вошёл в формирующуюся градостроительную структуру района, обеспечивая его продовольственную инфраструктуру и усиливая промышленный профиль южной части Екатеринбурга.
Спутниковая карта г. Екатеринбурга. 1978 г.
Хлебозавод № 6 был построен как одно из ключевых предприятий пищевой промышленности Екатеринбурга. Его основная специализация включала массовое производство хлебобулочных и кондитерских изделий (всего выпускалось 70 видов изделий): различных сортов хлеба, пряников, вафельных тортов и другой продукции. При комплексе также работала небольшая булочная, обслуживающая жителей прилегающих районов.
В 1994 году на заводе смонтировали и запустили небольшой пивзавод. В день выпускалось по 900 литров пива по технологии, разработанной специально для предприятия.
Работники Хлебозавода № 6. Фотографии 80-х годов.
Хлебозавод функционировал до конца 2008 года, а пивзавод — до 2010, после чего сотрудникам предложили работу на других хлебокомбинатах, здание было выведено из оборота. На протяжении следующих лет помещения частично пустовали, либо использовались под временные склады. Несмотря на отсутствие ухода, конструктивная основа здания сохранилась в удовлетворительном состоянии, хотя комнаты сильно и пострадали от сырости.
Здание относится к промышленной архитектуре позднего советского периода. Его стиль сформирован под влиянием типичных для 1970-х годов принципов: рациональности, стандартизации и ориентации на технологические процессы. В проектировании были использованы унифицированные решения, которые соответствовали санитарным и производственным требованиям пищевых предприятий того времени. Имя архитектора, работавшего над проектом, в доступных архивных источниках не указано.
При рассмотрении материалов здания можно предположить, что исходные корпуса включали железобетонные колонны и перекрытия, а также стальные каркасы, которые являлись типичным решением для производственных зданий тех времен. Возможно присутствие кирпичных или бетонных стен, но точные материалы фасадов официально не задокументированы ни в каких источниках.
ИСТОРИЯ СМЕНЫ ФУНКЦИЙ ЗДАНИЯ
Первоначально завод полностью занимали производственные процессы — от подготовки сырья до упаковки готовой продукции. Внутреннее пространство было разделено на зоны формовки, выпечки, складирования и технического обслуживания. Все помещения были организованы так, чтобы обеспечить непрерывность технологического цикла.
После закрытия завода около 2008 года объект утратил прежнюю функцию и долго не использовался активно. Несколько помещений сдавались под складские нужды, но в целом территория находилась в режиме частичной консервации.
ФУНКЦИОНАЛЬНЫЕ ОСОБЕННОСТИ ЗДАНИЯ
Архитектурная планировка Хлебозавода № 6 продумана по принципу, который подчиняется технологическому циклу хлебопечения. Основной корпус здания имеет большие пролёты, высокие потолки и вытянутые производственные помещения (это было необходимо для размещения технологических линий). Также в здании присутствуют технические помещения, склады, зоны упаковки. Подъездные пути к хлебозаводу организованы с учетом грузовых потоков и потребности быстрой отгрузки продукции.
ГАСТРОНОМИЧЕСКОЕ РАЗНООБРАЗИЕ УРАЛЬСКОГО РЕГИОНА
Диаграмма, представленная выше, наглядно демонстрирует этнический состав населения Уральского региона. Большинство жителей составляют русские — 82,7%, за ними следуют татары (5,1%), башкиры (2,2%), а также представители меньшинств: удмурты (2,2%), ханты (0,7%) и другие народности (9%). Этот этнокультурный расклад определяет многообразие кулинарных традиций, сформировавшихся в регионе, и послужил отправной точкой для разработки концепции гастрономического центра.
В рамках проекта предполагается организация пространства на пяти этажах, где каждый этаж будет посвящён кухне одного из народов, проживающих на Урале. Такая структуризация позволит посетителям не только познакомиться с гастрономическими особенностями различных этнических групп, но и погрузиться в культурный контекст, традиции и вкусовые предпочтения каждого народа.
Диаграмма соотношения численности народов, населяющих Урал
НАРОД 1. РУССКИЕ
Русские начали осваивать Урал в период интенсивной колонизации, а также промышленного освоения района (XVI–XVII вв).
особенности кухни: - основа: простые, но при этом очень сытные блюда, в которых используются местные продукты крупы (греча, пшено, овес), картофель, мясо, рыба, соленья, квашеные овощи - супы: борщ, щи, уха - печеные изделия: кулебяки, расстегаи, пироги с разными начинками (мясо, картофель, капуста, грибы, ягоды) - пельмени (именно на Урале сложная начинка из трех видов мяса, содержащая много лука, а также порой молоко или сливки для нежности. подаются с бульоном, в котором они варились) - соленья, маринады и компоты
НАРОД 2. ТАТАРЫ
Расселение волжских татар на территории Урала происходило веками. Народ частично мигрировал из региона Волги на восток.
особенности кухни: - основа: мясные и мучные блюда - мясо: часто готовится с крупами или в тесте, например, в пирогах. чаще всего используют говядину или баранину, реже — курицу. - печеные изделия: эчпочмак (треугольный пирожок с мясом, картофелем и луком), перемяч или беляш (жареные или печёные пирожки с мясом), кыс-ты-бы (лепёшка с начинкой), чак-чак (плотное сладкое угощение из обжаренного теста с мёдом) - запечённые и тушёные блюда: соусы на основе бульона или сливок
НАРОД 3. БАШКИРЫ
Башкиры — это коренной народ Урала, который присутствует в регионе уже многие века.
особенности кухни: - основа: доминируют мясо и молочные продукты, — мясо: блюда из баранины, говядины, конского мяса в традициях кочевых соседей, пловы, запеканки - молочные напитки: кумыс (ферментированное кобылье молоко) - пасечное хозяйство: мед является важной нотой многих десертов и закусок - мучные изделия: тонкие лепешки часто сопровождают мясные блюда
НАРОД 4. УДМУРТЫ
Удмурты — коренный народ региона Приуралья, их культура и обиход формировались на этих землях столетиями.
особенности кухни: - основа: зерновые культуры и овощи - крупы: пшеница, рожь, овес, гречиха, горох и лен - овощи: репа, свекла, редька, хрен, морковь, капуста, лук и чеснок - мясо встречается реже, чем у тюркских народов, больше можно попробовать домашнюю птицу, свинину, говядину обязательно в сочетании с овощами и грибами - печеные изделия: традиционные удмуртские пироги — перепечи - лесные продукты: грибы и ягоды (запеканки, супы с грибами)
НАРОД 5. ХАНТЫ
Ханты — коренной народ Севера, населявший лесостепные и тундровые зоны Урала и Западной Сибири
особенности кухни: - основа: рыба и дичь. свежая и копчёная рыба, блюда из оленины или дичи - супы: на мясных или рыбных бульонах - консервация, вяление, копчение: копчёная рыба, сушёное мясо - ягоды: брусника, морошка, клюква используются в соусах, десертах и маринадах - молочные продукты: в тех местах, где развивалось оленеводство или скотоводство, присутствуют специфические молочные блюда
ДУХ ВРЕМЕНИ
ГРАДОСТРОИТЕЛЬНЫЙ АНАЛИЗ
МЕСТОПОЛОЖЕНИЕ
Россия, г. Екатеринбург, ул. 8 Марта, 203 56.790018, 60.607194
АРХИТЕКТУРА
Здание хлебозавода представляет собой типичный промышленный корпус советского периода, построенный прежде всего для практического использования. Его архитектура довольно сдержанная и не стремится выделяться декоративностью. Основу композиции составляет вытянутый прямоугольный объём с простой геометрией, что характерно для производственных зданий того времени.
Фасады выполнены из бетонных панелей и других индустриальных материалов, рассчитанных на долговечность и минимальные затраты на обслуживание. Окна расположены ритмично, что подчёркивает модульный принцип строительства. Большие глухие плоскости фасадов объясняются требованиями технологического процесса.




ПЛОЩАДЬ: 10.706,4 м² ЭТАЖНОСТЬ: 5 этажей и подвал
ТРАНСПОРТНАЯ ДОСТУПНОСТЬ
Район обладает развитой транспортной инфраструктурой, сформированной в годы промышленного роста. К объекту ведут несколько подъездных дорог, обеспечивающих доступ как частного, так и грузового транспорта. Основная магистраль находится в шаговой доступности и обеспечивает связь с центром города и соседними промышленными зонами.
Территория вокруг Хлебозавода довольно обеспечена парковочными зонами. Поблизости от здания расположено несколько стоянок, причём часть из них работает круглосуточно, а другие имеют фиксированный график. Это создаёт удобные условия как для будущих посетителей гастрономического центра, так и для сотрудников, так как есть возможность выбрать подходящее место для парковки в зависимости от времени суток и формата посещения (длительного или кратковременного).
Также здание Хлебозавода находится в удобной транспортной доступности для туристов города. Из международного аэропорта Кольцово можно добраться всего лишь за 14 минут на автомобиле или за 50 на общественном транспорте.
Железнодорожный вокзал находится в 17 минутах на автомобиле или в 40 на городском транспорте.
Туристы из близлежащих городов могут добраться за 8 минут (на автомобиле) или за 17 (на трамвае) от Южного автовокзала и за 17 (на автомобиле) или за 36 минут (на общественном транспорте).
Близлежащий к Хлебозаводу район формировался постепенно и сейчас представляет собой смешанную городскую среду с большим количеством различных функций.
Основу застройки составляют жилые дома разных лет постройки (от советских кварталов до современных многоэтажных комплексов). Они обеспечивают постоянный поток жителей, что важно для любого общественного пространства и особенно для гастрономического центра.
Помимо многоквартирных домов, в районе присутствуют административные здания малого и среднего масштаба. Это офисы городских служб, небольшие деловые центры и сервисные структуры. Их наличие создаёт дополнительный дневной поток людей, которые могут посещать центр в обеденные перерывы или после работы.
Сохранились и промышленные, а также складские пространства. В большинстве случаев это бывшие производственные корпуса, частично перепрофилированные под современные нужды — мастерские, небольшие фирмы, склады, сервисные компании.
Образовательных учреждений в непосредственной близости немного, есть несколько школ и детских садов.
Наиболее важный аспект, который необходимо рассмотреть — это места питания, так как они являются прямыми конкурентами гастрономическому центру.
В районе присутствуют кафе, небольшие столовые, пекарни и кофейни, ориентированные в основном на местных жителей и работников близлежащих офисов. Это точки с достаточно простой кухней, которые чаще всего работают в формате быстрых обедов.
Присутствуют несколько ресторанов среднего уровня, однако общая картина показывает отсутствие крупных специализированных гастрономических площадок. Большинство заведений являются типовыми и не предлагают уникальной региональной кухни.
Это создаёт благоприятные условия для появления гастрономического центра, посвящённого уральской кухне — такого уникального предложения в ближайшем окружении нет.
Особое внимание хочу уделить E-story, поскольку это первый фудмаркет на Урале и важная точка гастрономической жизни города.
Расстояние между фудмаркетом и Хлебозаводом составляет около 5 километров, что делает пространства не конкурирующими друг с другом по территориальному признаку.
Однако у E-story и будущего гастрономического центра есть принципиальное различие: в фудмаркете представлены разнообразные азиатская кухня, мексиканская, европейская, ближневосточная и другие, то есть пространство работает как международная гастроплощадка. А гастрономический центр удет посвящён полностью уральской русской кухне и кухням народов Урала.
Это уникальное позиционирование, которого пока нет в городе. Таким образом, проект не пересекается с E-story концептуально.
АНАЛИЗ МИРОВОГО ОПЫТА. ПРОТОТИПЫ
(1) Реконструкция бывшей стекольной фабрики в фуд-холл. Сан-Антонио. США
Здание расположено в восточной части Сан-Антонио. Стекольная фабрика, которая была построена в середине XX века, была частью крупного промышленного пояса города. После сокращения производства объект оказался заброшен и утратил свою первоначальную функцию, сохранив при этом характерные черты индустриальной архитектуры эпохи модернизма. Долгое время фабрика стояла пустой, но благодаря устойчивому развитию района и интересу к индустриальному наследию, здание было выбрано для программы реновации и адаптивного повторного использования.
Архитекторы сохранили большую часть исторического каркаса фабрики, характерную для индустриальных зданий того периода: железобетонные фермы, кирпичные наружные стены и высокие пролёты, а также вдохновились техасскими традициями региональных пищевых путей, ремесел и сельского хозяйства для оформления интерьера центра.
В результате реновации фабрика превратилась крупный гастрономический центр The Pullman Market, внутри которого размещены: фуд-холл с локальными кухнями, небольшие продуктовые лавки и пространства для мероприятий, дегустаций и публичных встреч. Данные пространства организованы по принципу «городского рынка», то есть небольшие павильоны размещены в открытых зонах, что позволяет создавать различные сценарии перемещения и пребывания в центре.


Гастрономический центр поддерживает локальных производителей, а также привлекает гурманов и любителей кухни, это позволяет центру выступать в роли точки для взаимодействия местного сообщества.
Новая функция фабрики после реновации способствовала оживлению городской активности в близлежащих районах, развитию малого бизнеса, а также формированию новой точки в туристическом маршруте.
(2) Реконструкция механических цехов для ремонта грузовых вагонов и автобусов в фуд-холл. Виннипег. Канада
Территория, на которой расположено здание, имеет давнюю историю как место встреч и торговли. В начале XX века здесь располагались железнодорожные сооружения и объекты обслуживания подвижного состава. Позже два кирпичных корпуса, ранее преобразованные в конюшни железнодорожной компании, были объединены стеклянным атриумом, что дало начало общественному пространству рынка.
В ходе реконструкции был сохранён исторический каркас здания — металлические балки, кирпичные стены, высокие потолки — и дополнен современными вставками из стекла и дерева. Новый дизайн подчёркивает сочетание старой индустриальной структуры и современных архитектурных элементов.
Реновированный фуд-холл включает множество гастрономических точек: киоски с едой и напитками, кафе и ресторанные зоны, а также общественные пространства с посадочными местами. Торговые модули расположены в зонах, которые визуально отсылают к первоначальным промышленным залам.
Проект уделяет внимание восприятию пространства: просторные пролёты, естественный свет, материалы, напоминающие о прошлом — металл, кирпич, дерево — создают ощущение исторического места, адаптированного под современные потребности. Центральная часть фуд-холла сформирована как площадка для встреч, с удобными сидячими зонами и общей обеденной зоной, что усиливает взаимодействие между людьми.
Этот проект превратил индустриальное здание в значимую часть городской жизни: место, где люди могут не просто поесть, а встретиться, провести время, узнать о локальных производителях и ремёслах. Гастрономический центр стал культурной и социальной платформой, способствующей оживлению района и укреплению связи с историческим наследием.
(3) Реконструкция старого грузового депо в фуд-холл Malmö Saluhall. Мальмё. Швеция
Здание, в котором сегодня расположен Malmö Saluhall, когда-то было частью крупного логистического узла рядом с центральным вокзалом Мальмё. Это был кирпичный склад, обслуживавший грузовые составы. Со временем объект утратил свою функцию, оказался заброшен и постепенно начал разрушаться: от него осталась лишь массивная кирпичная конструкция «оболочка».
Архитекторы решили не восстанавливать склад в его прежнем виде, а переосмыслить его роль в городской среде. Они добавили новый объём, который формально повторяет силуэт традиционного крытого депо — двускатную форму, сохранив тем самым исторические кирпичные стены как главный элемент здания. А между старой кирпичной стеной и новой конструкцией оставили визуальный «шов» — узкую полосу света под крышей, подчёркивающую границу между историческим и современным слоями. Пристройку выполнили из волнистых стальных панелей с естественной ржаво-красной текстурой, напоминающей о железнодорожной инфраструктуре и индустриальном характере района.


После реконструкции комплекс превратился в гастрономическую площадку, внутри которой разместились небольшие рестораны, продуктовые лавки и кафе. Пространство работает как многофункциональная гастрономическая среда: от продажи свежих продуктов до дегустаций, семейных обедов и неформальных встреч. Рядом оборудована наружная зона с уличной посадкой и временными киосками, что помогает сформировать площадку для активного общественного взаимодействия.
Главным акцентом интерьера является сохранённая кирпичная кладка и рельефные следы старого склада. А дневной свет, поступающий через разрыв между старым и новым объёмами, создаёт мягкое освещение и усиливает выразительность старой стены.
Сегодня Malmö Saluhall — один из главных городских центров притяжения в Мальмё. Фуд-холл объединяет местных производителей, шеф-поваров, предпринимателей и жителей, создавая пространство общения и обмена культурой. Он является примером, как заброшенный индустриальный объект может стать современным общественным центром без утраты своей исторической идентичности.
(4) Реконструкция бывшего гаража-парковки в фуд-холл экзотических продуктов питания. Амстердам. Нидерланды
Фуд-холл World of Food — это реконструкция бывшего гаражного комплекса в Амстердаме с преобразованием в гастрономический центр. Первоначально здание было рассчитано на довольно крупные потоки транспорта, что обеспечило удобную планировочную структуру и большой объём площади для размещения будущего фуд-холла. Проект сохранил характерную индустриальную эстетику, оставив открытые конструкции, бетон и просторные пролёты.
Главная концепция реконструкции заключалась в создании многонационального гастрономического пространства, которое отражало бы этническое разнообразие района Амстердам-Зёйдост. Архитекторы стремились сохранить аутентичность существующего промышленного каркаса, наполняя его при этом жизнью через небольшие павильоны, которые представляют кухни разных стран.


Основой архитектурного решения было сохранение конструктивной основы здания, то есть индустриальный каркас здания остался открытым, тем самым подчеркнул происхождение объекта. А новые элементы, такие как модульные павильоны, освещение и навигация, были введены аккуратно. Также необходимо отметить, что в здании были сохранены широкие проходы, что обеспечивает, во-первых, визуальную открытость, а, во-вторых, свободное перемещение больших потоков посетителей.
Пространство внутри получилось довольно гибким по сценарию, так как павильоны разработаны по принципу сменных модулей, это позволяет менять функциональное наполнение фуд-холла в зависимости от проводимых мероприятий и адаптировать его под потребности посетителей.
Фуд-холл организован так, что точки с едой размещены вдоль основных проходов, а между ними сформированы посадочные места и пространства для небольших мероприятий. Такое решение делает World of Food не только местом для еды, но и точкой социальных взаимодействий, ведь проект ориентирован на жителей района с разным культурным фоном. World of Food помогает в одном пространстве попробовать кухни разных народов и стран, что превращает в центр притяжения как для местных жителей, так и для туристов.


(5) Реконструкция бывшего трамвайного депо в ресторанную зону с баром. Амстердам. Нидерланды
Kanarie Club расположен в бывшем депо трамваев на западе Амстердама. Ранее в этом здании выполнялись ремонт трамвайных вагонов, работы по покраске и дерево- и металлообработке. Такое прошлое создает особую ремесленную атмосферу, сама же структура помещения индустриальная и функциональная.
Архитекторы сохранили исторические черты депо: деревянные балки, бетонные полы и рельсы от трамваев. Можно сказать, что рельсы играют одну из главных ролей в обновленном интерьере. Они используются как декоративный элемент, подчеркивающий прошлую функцию здания: одни из них идут через центр зала, другие формируют арку света над барной стойкой.
Помимо этого архитекторы сделали Kanarie Club многоуровневым пространством, тем самым разграничив различные зоны в помещении. Несколько платформ разной высоты создают «островки»: разные уровни позволяют выделить обеденные, рабочие и приватные зоны. Бар тоже размещен на приподнятой платформе, что делает его акцентом, хорошо заметным из разных частей зала.


Не только рельсы и старые балки отсылают посетителя к атмосфере рабочих мастерских из прошлого. Материалы отделки были выбраны неспроста: металл, стекло, текстиль и дерево. А также мебель была выполнена с отсылками к сидениям старых трамваев.
Также в интерьере использованы графические элементы, связанные с трамвайной тематикой: вывески в стиле трамваев, указатели и фирменные цвета.
Kanarie Club является отличным примером адаптивного использования промышленного наследия: старое трамвайное депо превратилось в современное пространство, объединяющее культурную память (сохранённые рельсы, формы, материалы) и современность (место актуально и привлекательно как для жителей, так и для туристов).


(6) Реконструкция промышленного пространства, ранее занимаемого известным Бар-Леоном в Колонии Рима в фуд-холл гастрономической культуры
Mercado Roma расположен в районе Colonia Roma Norte в Мехико. Была проведена реновация бывшего индустриального объекта — ранее здесь находился бар León. Этот район отличается плотной городской застройкой, сочетанием исторической архитектуры и современной городской активности, что делает его наиболее подходящим местом для размещения общественного гастрономического пространства.
Mercado Roma — это современный фуд-холл гастрономической культуры, в который интегрированы как элементы индустриального наследия здания, так и современные архитектурные решения.
Первый этаж занимают 53 павильона с планировкой, перекликающейся с атмосферой традиционных рынков. Два верхних этажа отданы под рестораны и зоны отдыха, а на кровле размещено открытое пространство с вертикальным садом, свежие продукты из которого продаются на рынке.
Mercado Roma призван стать катализатором и детонатором для общества. Рынок стремится интегрировать местные усилия и запустить их с современной платформы, основанной на культурных традициях и коллективной истории нации.
— Игнасио Кадена


Mercado Roma является местом объединения: оно объединяет точки локальных производителей, гастрономические лавки, бары и небольшие рестораны. Таким образом фуд-холл помогает установить связь между посетителями, предпринимателями и производителями. Например, вертикальный сад, в котором непосредственно в Mercado Roma выращиваются зелень и некоторая часть овощей, позволяет создать наиболее короткую связь между выращиваем, продажей и потреблением.
В качестве материалов отделки основными стали индустриальные материалы, такие как металл, бетон и стекло, однако было дополнение, добавляющее тепла — деревянные элементы.
Помещение архитекторы постарались сделать максимально открытым и визуально цельным: проходы широкие, а массивные перегородки отсутствуют.
Mercado Roma стал важным центром притяжения в районе. Он представляет собой пространство, которое ориентировано на нужды жителей. Фуд-холл поддерживает локальных предпринимателей и способствует развитию гастрономической культуры Мехико. Mercado Roma — это городской «активатор», формирующий новые сценарии взаимодействия и укрепляющий идентичность района.


(7) Реконструкция литейного завода XIX века в центр продуктов питания с ресторанами, дегустационным залом микропивоварни, баром, пекарней и кафе


Центр продуктов питания The Source располагается в районе River North в Денвере, на месте старого литейного завода XIX века. Это один из немногих сохранившихся индустриальных корпусов своего времени в этом районе, что делает его значимым элементом истории и архитектурного наследия.
Из-за этого архитекторы проводили лишь минимальные вмешательства при реновации пространства, чтобы сохранить главные конструктивные элементы — высокие потолки на стальных фермах, сами старые фермы и прочную индустриальную структуру здания в целом. Однако для более получения более естественного освещения в стены были вставлены большие застекленные гаражные створки.
Интересным архитектурным решением внутри является организация ресторанных и торговых модулей: стены между ними выполнены так, что могут подниматься и опускаться, это добавляет пространству гибкости, возможности адаптироваться под какие-либо мероприятия и т. п.
В гастрономическом центре есть рестораны, пекарни, кофейня, пивоварня и центральный бар. The Source имеет открытые кухни и зоны работы есть возможность наблюдать за кулинарным производством.
Интерьер индустриальный, главными элементами в нем являются бетонные поверхности, открытые стальные фермы и историческая текстура стен, которые были оставлены в первоначальном виде. Хотя были добавлены и новые современные стеклянные и металлические конструкции, они не нарушают характер исторического здания, а лишь подчеркивают его структуру.


The Source стал местом притяжения людей района RiNo, а также способствовал началу трансформации промышленной зоны в активный городской квартал. Гастрономический центр популярен как у местных жителей, так и туристов. Проект реновации показывает, как промышленное здание исторического наследия может стать не заброшенным и бесцельным грузом на карте города, а основой для современного пространства взаимодействия людей, объединенных одним интересом — гастрономия, которое не только сохраняет историю, но и отвечает современным нуждам города.
(8) Реконструкция исторического рыночного павильона в современный гастро-хаб с ресторанами и барами
Hala Koszyki — это легендарная рыночная галерея, расположенная в центре Варшавы, открытая в 1909 году и ставшая важной частью торговой инфраструктуры города в начале XX века. Во время Второй мировой войны стальной каркас уцелел, хотя здание и было повреждено, после чего чего реконструировали. А в 2006 году было снесено большинство конструкций, при этом сохранены наиболее ценные фрагменты (кирпичные стены, а также некоторые детали фасадов).
В 2016 году была проведена очередная реконструкция, которая восстановила характерную оболочку исторического здания, то есть сохранив оригинальные кирпичные фасады, керамическую плитку и железные конструкции. Но также были возведены два современных крыла с офисами, которые делают внутренний двор визуально закрытым от плотной городской застройки.


Hala Koszyki сейчас является многофункциональным пространством, внутри есть гастрономические и ресторанные точки и кафе, а также бутики. Место превратилось в смесь гастрономического центра, рынка и коммерческого пространства.
Материалами, используемыми при реновации, являются кирпичи, стальные фермы и керамические элементы. Новые же детали сделаны из стекла, стали и бетона. Стальная конструкция из ферм подчеркивает архитектурную выразительность потолочного пространства здания.
После реновации Hala Koszyki стала одним из ключевых общественных пространств Варшавы. Это место гастрономии, культурных встреч, организуемых мероприятий и торговли. Проект является примером успешной адаптации архитектурного наследия города под современные нужды, сохраняя связь с прошлым и создавая новое качество городской жизни.
(9) Реконструкция Миусского трамвайного парка в гастрономический квартал
Фудмолл «Депо. Москва» расположен на территории бывшего Миусского трамвайного парка, позднее — 4-го троллейбусного депо. Исторические корпуса были построены в конце XIX — начале XX века и являлись важной частью транспортной системы города. После того, как депо перестало эксплуатироваться, комплекс получил статус объекта культурного наследия. Сохранившиеся корпуса из кирпича и индустриальная структура здания определили направление будущей реновации.
На сегодняшний день фудмолл, занимающий около 11 000 м², включает в себя 75 ресторанных точек, относящихся к кухням разных стран мира, и фермерский рынок, на котором можно приобрести местные продукты. Помимо гастрономических точек в Депо есть зоны для различных мероприятий, фестивалей, мастер-классов и т. д.
Основным направлением при реновации здания было сохранение исторической индустриальной эстетики. Архитекторы сохранили кирпичные стены, металлические конструкции, арочные элементы и высокие пролеты, грамотно интегрировав современные элементы, например, такие как локальная навигация, дизайнерское освещение, мобильность торговых модулей, в историческое здание.
Сценарий передвижения посетителей фудмолла довольно свободный благодаря широким проходам внутри здания. Гастрономические точки находятся так, что в помещении не создается скоплений большого количества человек в одной точке, а рынок с местными продуктами расположен в центральной зоне, обеспечивая удобный поток посетителей.


«Депо. Москва» — это пример того, как исторические промышленные здания могут быть переосмыслены, при этом сохранив свою архитектурную идентичность, и превращены в современный центр городской гастрономической культуры, востребованный и популярный и у местных жителей, и у туристов, ведь он сочетает в себе гастрономию, местную торговлю и культурные мероприятия.
ВЫВОДЫ И ТЕХНИЧЕСКОЕ ЗАДАНИЕ НА ПРОЕКТИРОВАНИЕ
АРХИТЕКТУРНАЯ ИСТОРИЧЕСКАЯ ЦЕННОСТЬ
Хлебозавод № 6 является важным объектом промышленного наследия Екатеринбурга. Его конструктивные решения, фасадные детали и объёмно-пространственная структура отражают характер застройки начала XX века и развитие промышленной архитектуры региона. Сохранение этих особенностей обеспечивает не только историческую достоверность, но и визуальную идентичность территории, формируя уникальную атмосферу будущего гастрономического центра.
ИСТОРИЧЕСКАЯ СВЯЗЬ И ФУНКЦИОНАЛЬНЫЙ ПОТЕНЦИАЛ
Первоначальное предназначение здания — производство хлеба — естественным образом создает мост к новой функции. Гастрономический центр, объединяющий мастер-классы, демонстрацию приготовления и дегустации, продолжает традицию пищевого производства, но в современном культурно-образовательном ключе. Такая адаптация позволяет сохранять связь с историей объекта и усиливает воспринимаемую аутентичность.
СОВРЕМЕННАЯ СОЦИАЛЬНАЯ СРЕДА
Существующий дефицит специализированных площадок для образовательных гастрономических практик и мастер-классов подтверждает актуальность создания центра, объединяющего образовательную, производственную и выставочную функции. Присутствие культурно-образовательного гастрономического пространства способно усилить социальную вовлеченность, поддержать локальных производителей и создать новый центр притяжения для туристов и жителей города.
ОПЫТ УСПЕШНЫХ ПРОЕКТОВ
Изучение международных и российских примеров показывает, что успешная адаптация исторических промышленных зданий опирается на следующие принципы:
- сохранение ключевых архитектурных и конструктивных элементов
- создание гибких, трансформируемых пространств для разных типов деятельности;
- использование местных материалов для формирования идентичности
- обеспечение визуальной доступности процессов для посетителей, что формирует интерактивное пространство и повышает вовлеченность
Применение таких принципов при реновации Хлебозавода позволит создать среду, где история, гастрономия и образование органично переплетаются, а функциональные зоны поддерживают как производственные, так и общественные процессы.
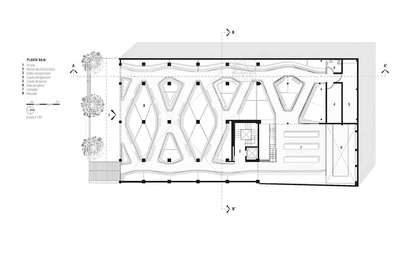
[*] ТЕХНИЧЕСКОЕ ЗАДАНИЕ
Объект: бывший Хлебозавод № 6 Адрес: г. Екатеринбург, ул. 8 Марта, 203 Назначение: Гастрономический центр уральской кухни Цель проекта: реновация исторического здания бывшего Хлебозавода № 6 с сохранением архитектурного наследия в гастрономический центр уральской кухни, способствующий популяризации уральской гастрономии и культурных традиций региона
Концептуальные требования к проекту, который должен обеспечить:
- сохранение исторического облика и структурных особенностей здания
- интеграцию новой функции без потери аутентичности
- формирование открытого и доступного общественного пространства;
- гибкость планировки и трансформируемость зон для разных сценариев использования
- доступность для всех категорий пользователей
Функциональные зоны:
Производственная зона: кухни и пекарни
Общественно-выставочная зона: дегустации, выставки продуктов и кулинарных процессов
Административно-служебная зона: офисы, комнаты персонала, складские помещения
Техническая и вспомогательная зона: инженерные системы, подвал, технические службы
Интерьер, отделочные материалы:
- натуральные материалы (дерево, металл, камень, текстиль)
- декоративные элементы и фактуры, отражающие культуру народов Урала
- замена разбитых окон
- установка приточно-вытяжной вентиляции
- замена инженерных систем
[*] ОБЩИЙ ВЫВОД
Проведённый предпроектный анализ показал, что Хлебозавод № 6 обладает значительным историко-культурным и архитектурным потенциалом, а его адаптация под гастрономический центр уральской кухни может стать примером гармоничного сочетания наследия и современных функций. Сохранение исторической идентичности здания, интеграция образовательных и производственных процессов, а также создание открытого общественного пространства обеспечат не только сохранение памяти о промышленной истории Екатеринбурга, но и формирование нового культурного и гастрономического центра притяжения.
Проект продемонстрирует, что бережная реновация промышленных объектов способна не только оживить архитектуру прошлого, но и внести ощутимый вклад в социально-культурное развитие города, создавая пространство, объединяющее традиции, образование и современный городской ритм.
БИБЛИОГРАФИЯ
1. https://www.dezeen.com/2025/08/05/clayton-korte-san-antonio-glass-factory-pullman-market-food-hall
2. https://www.archdaily.com/790796/the-forks-market-food-hall-number-ten-architectural-group?
3. https://www.archdaily.com/870949/malmo-saluhall-wingardh-arkitektkontor-ab
4. https://www.archdaily.com/777290/world-of-food-harvey-otten
5. https://www.archdaily.com/801724/kanarie-club-studio-modijefsky
6. https://www.archdaily.com/606453/mercado-roma-rojkind-arquitectos
7. https://dynia.com/work/the-source
8. https://jems.pl/en/projects/selected-works/koszyki-market-hall.html
9. https://divisare.com/projects/387346-jems-architekci-juliusz-sokolowski-koszyki-market-hall
ИСТОЧНИКИ ИЗОБРАЖЕНИЙ
1. https://www.dezeen.com/2025/08/05/clayton-korte-san-antonio-glass-factory-pullman-market-food-hall
2. https://www.archdaily.com/790796/the-forks-market-food-hall-number-ten-architectural-group?
3. https://www.archdaily.com/870949/malmo-saluhall-wingardh-arkitektkontor-ab
4.https://www.archdaily.com/777290/world-of-food-harvey-otten
5. https://www.archdaily.com/801724/kanarie-club-studio-modijefsky
6. https://www.archdaily.com/606453/mercado-roma-rojkind-arquitectos
7. https://dynia.com/work/the-source
8. https://jems.pl/en/projects/selected-works/koszyki-market-hall.html
9. https://divisare.com/projects/387346-jems-architekci-juliusz-sokolowski-koszyki-market-hall
10. https://urban3p.ru/object21693
12. https://dzen.ru/a/Xj55QL-NMmMiGy6m
14. https://fs02.vseosvita.ua/02002nge-cf8e/005.jpg
15. https://depositphotos.com/ru/vectors/башкирский-орнамент.html
16. https://grizly.club/uzor/ornament/11737-udmurtskij-ornament-49-foto.html
17. https://remeclougra.ucoz.ru/publ/ornamentalnoe_iskusstvo_khanty/1-1-0-1
18. https://www.nexplorer.ru/print/news__12065.htm
21. http://www.etomesto.ru/map-ekaterinburg_sputnik-1974/?y=56.790200&x=60.606175
22. http://www.etomesto.ru/map-ekaterinburg_sputnik-1978/?y=56.790200&x=60.606175
23. https://www.youtube.com/watch?v=4g2P_J5zxho
24. https://tatarfood.com/news/bishbarmak/
25. https://eda.video/azu-po-tatarski
26. https://m.povar.ru/recipes/kullama-22535.html
27. https://your-food-today.livejournal.com/4854956.html
28. https://vkusnoff.com/recepty/kystybyj-s-kartoshkoj-po-tatarski-4685/
29. https://www.edimdoma.ru/retsepty/47276-krasnyy-tvorog-kyzyl-eremsek
30. https://здоровое-питание.рф/recipes/selection/nugyli/
31. https://www.fishingsib.ru/articles/view/12755/
32. https://ru.wikipedia.org/wiki/Строганина
34. https://www.gastronom.ru/recipe/37586/sugudaj-iz-muksuna
35. https://www.e1.ru/text/gorod/2017/10/17/51368921/
36. https://www.e1.ru/text/realty/2021/02/07/69750339/
37. https://yandex.com/maps/org/khlebozavod_6/170103158287/?ll=60.607194%2C56.790018&z=16