
Таунхаус проектируется для пятидесятилетней пары, которая уже успела увидеть мир. Сейчас они стремятся к тихому и уединённому пространству, которое будет отражать их богатую впечатлениями жизнь и тесно переплетаться с природой.

За основу концепции взят «Дом над водопадом» архитектора Фрэнка Ллойда Райта.
Кроме бассейнов, расположение некоторых оконных проёмов создаёт иллюзию продолжения водопада.



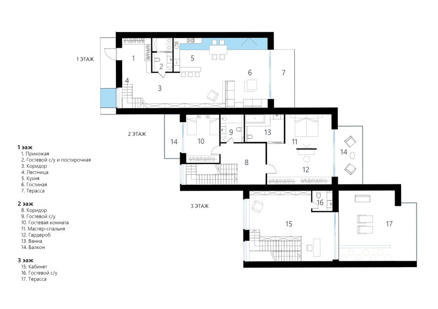
Входная зона
Гостиная // 1 этаж
Гостиная // 1 этаж
Задний двор
Мастер-спальня // 2 этаж


Гардеробная // 2 этаж
Кабинет // 3 этаж
Терраса // 3 этаж
Ситуационный план и план участка
Разрез