

Данный проект представляет собой альбом чертежей дизайн-проекта креативного пространства по адресу: Пантелеевская, 53
Целью пространства является популяризация русских народных промыслов. Здесь посетители могут не только узнать про мастерство, побывав на тематических лекциях, но и побывать на мастер-классах и понаблюдать за процессом создания изделий.
Визуализации



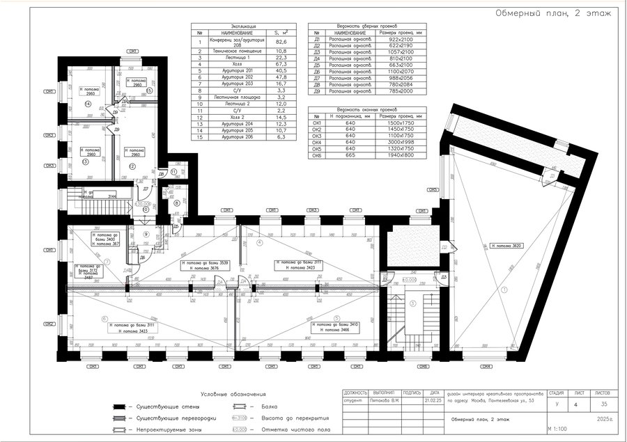
Обмерный план
Обмерные планы
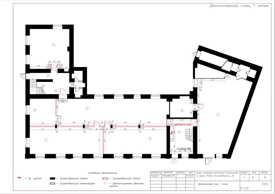
Демонтажный план и плн возводимых конструкций
Демонтажные планы
План возводимых конструкций
Планировочное решение


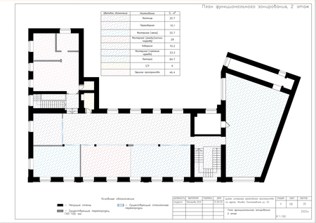
Функциональное зонирование
План расстановки мебели, 1 этаж
План расстановки мебели, 2 этаж
Маркировка мебели
План маркировки мебели
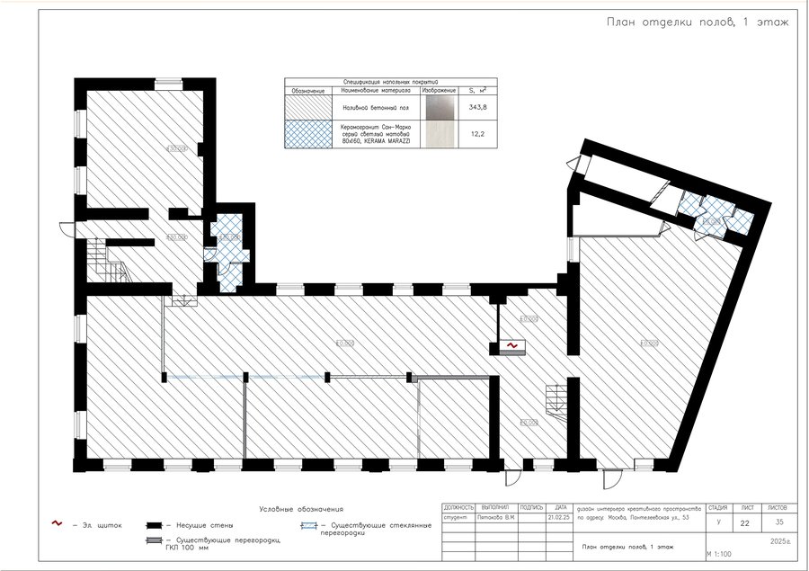
Планы отделок
Планы отделки полов
Схемы отделки стен
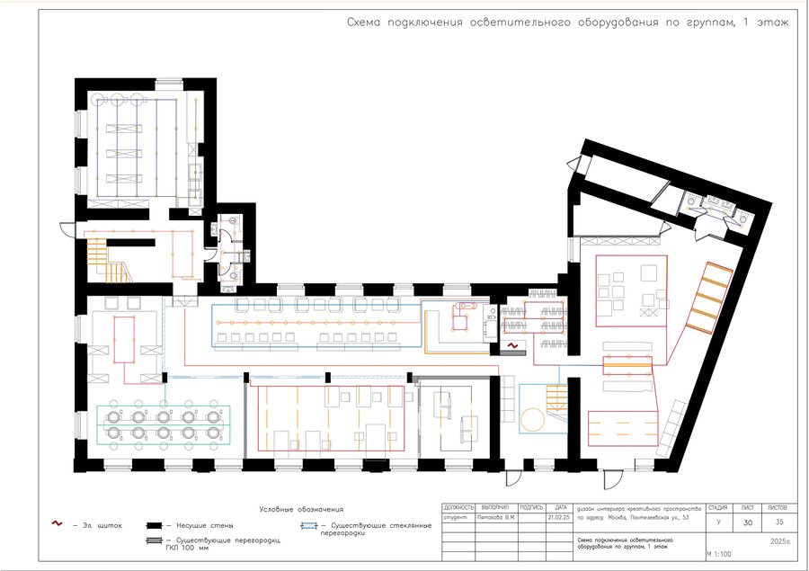
Освещение
План размещения осветительного оборудования и схема подключения осветительного оборудования по группам, 1 этаж
План размещения осветительного оборудования и схема подключения осветительного оборудования по группам, 2 этаж
Планы с привязками силового и слаботочного оборудования