
В проекте использованы простые формы, натуральные материалы и оттенки, элементы эко-декора. Рабочие зоны объедены в одно пространство, используя обилие естественного света. При этом приватные зоны изолированы. Комнаты плавно перетекают друг в друга, создавая ощущение единого и гармоничного пространства. Округлые органичные формы считываются на подсознательном уровне, как безопасные, помогая расслабиться, а пастельные оттенки придают интерьеру мягкость.

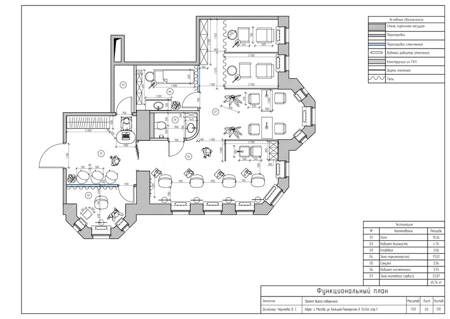
Функциональный план соответствует задачам и требованиям:
- У порога гостей встречает просторный гардероб и девушка-хостес - Кабинет визажиста спрятан от суеты за стеклянной перегородкой и залит мягким ровным светом — идеальное полотно для создания волшебства макияжа. - Парикмахерский зал получил 4 полноценных рабочих места и изолированную от взглядов мойку для ухода за волосами. - Зона ногтевого сервиса, органично вписанная в общее открытое пространство, сумела обрести ауру приватности. - Кабинет косметолога — кокон уюта и релакса, тщательно скрыт от взглядов случайных свидетелей, но в тоже время стеклянная перегородка щедро пропускает потоки солнечного света.
