
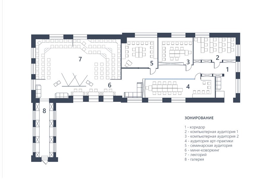
Задача состояла в создании новой планировки учебного кластера.
Отличительной чертой дизайн-проекта является металлический каркас, который распространяется почти на все помещения, кроме аудиторий, где акцент сделан на удобство студентов и преподавателей.
8 — галерея
лекторий
перегородки лектория
коворкинг
коридор
аудитория арт-практики
компьютерная аудитория