
Разработка учебного кластера для московского кампуса НИУ ВШЭ в духе советского авангарда.
Динамику создают дугообразные конструкции, легкие перегородки из стеклоблоков и игра контрастов: фактурное дерево смягчает холодность бетона.
Пространство формирует среду для глубокой концентрации, где винтажные детали добавляют камерности, создавая уникальный сплав стабильности и творческой энергии.
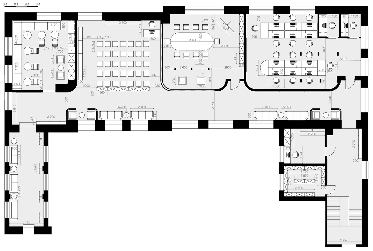
ПЛАНИРОВОЧНЫЕ РЕШЕНИЯ
• Планировка • Зонирование • План мебели + эргономика • План напольных покрытий
ВИЗУАЛИЗАЦИЯ
ПРОЕКТИРОВАНИЕ МЕБЕЛИ ДЛЯ УЧЕБНОГО КЛАСТЕРА «КОНСТРУКТОР»