Original size 1608x2100

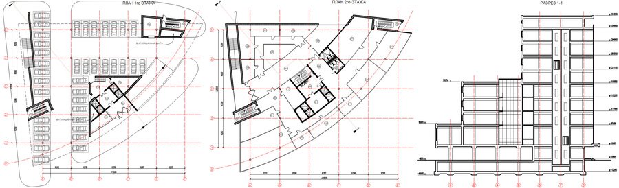
Дом «Железка»

1
big
Original size 3468x1057
big
Original size 2218x909

Бизнес центр в Железнодорожном

We use cookies to improve the operation of the website and to enhance its usability. More detailed information on the use of cookies can be fo...
Show more