
Описание
Каякент — это село и административный центр Каякентского района в Дагестане, расположенное на Прикаспийской низменности у берегов Каспийского моря. Район известен как перспективный курортный центр благодаря золотистым пляжам. В 2023 году началась реализация масштабного проекта по возрождению Каякента как современного морского города курорта, что делает локацию крайне привлекательной для инвестиций в гостиничный бизнес.

Культурный код

Дагестан — это мозаика из более чем 30 народов, каждый со своими традициями, но общий культурный код объединяет гостеприимство, уважение к природе, семейным ценностям.
Основные культурные элементы: Орнаменты и узоры — геометрические и растительные мотивы. Материалы — камень, деревянная резьба, шерстяные ковры, керамика. Цветовая гамма — в основном теплые тона — бежевый, терракотовый, зол
Каякентский район
Референсы
Материалы
Визуализации «Лобби-бар»
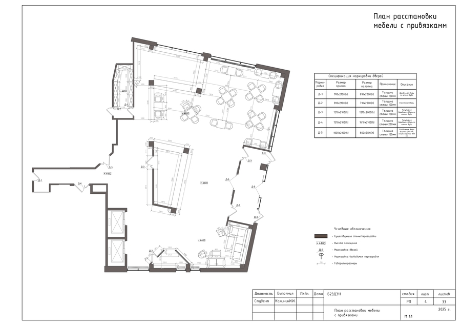
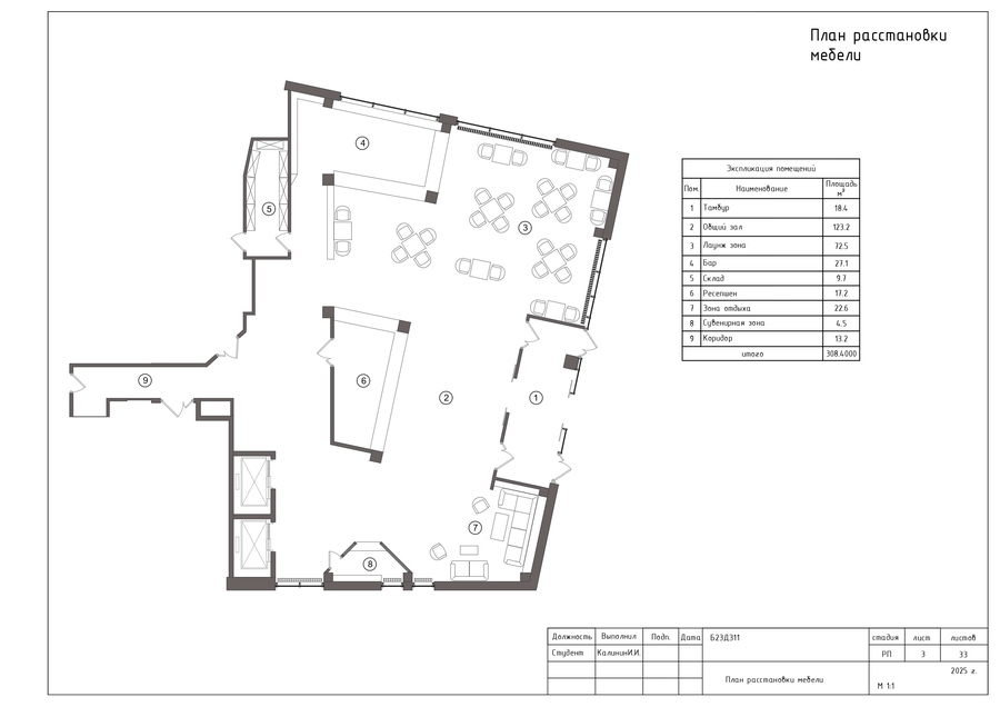
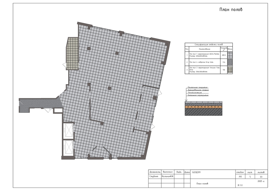
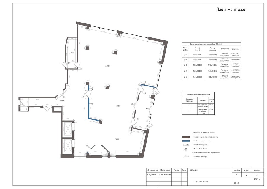
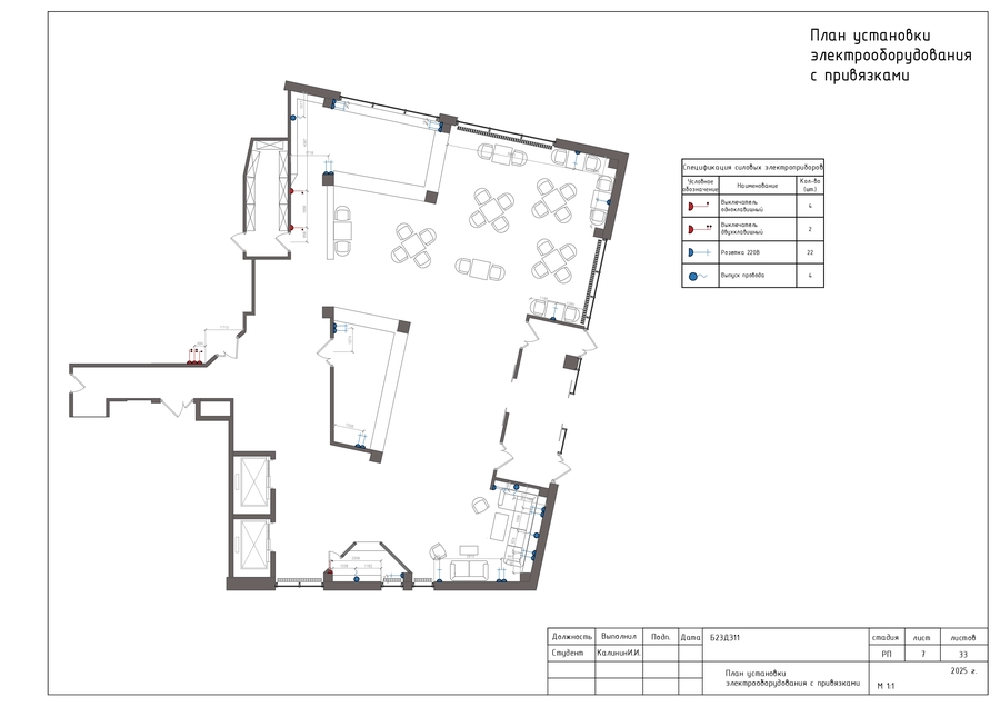
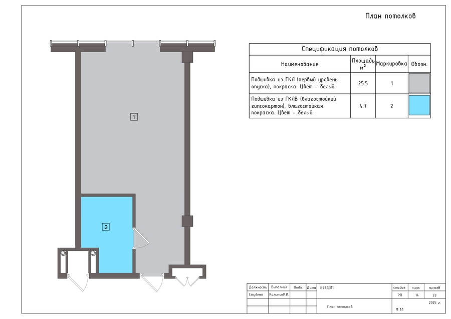
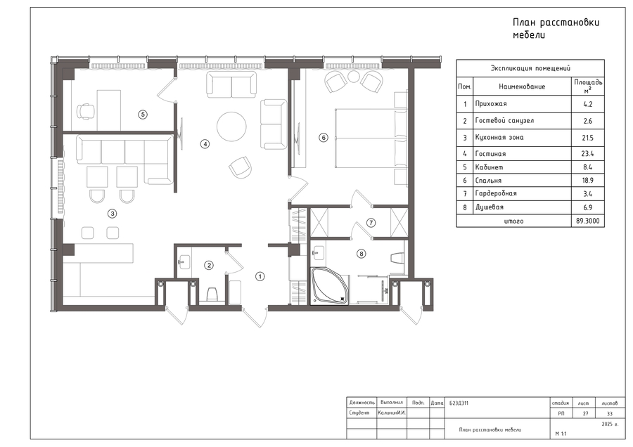
Чертежи «Лобби-бар»
Визуализации «Номер стандарт»
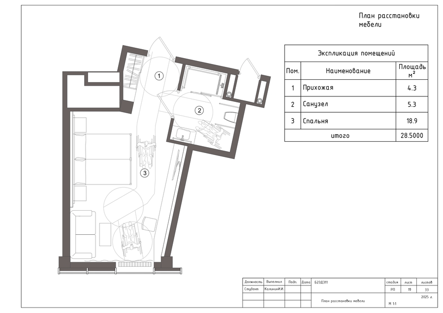
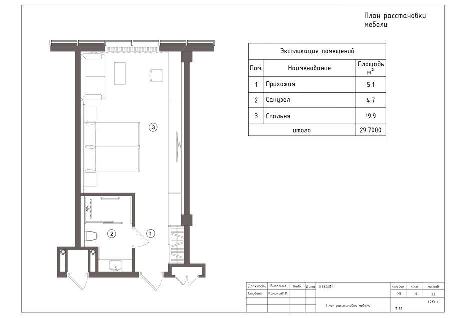
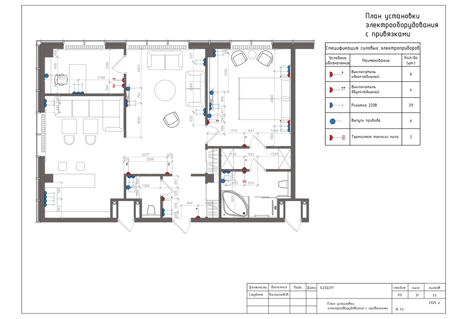
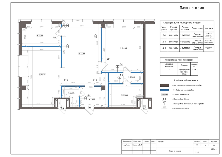
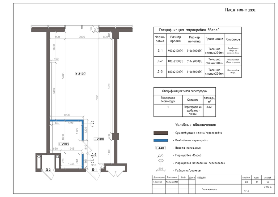
Чертежи «Номер стандарт»
Визуализации «Коридор»
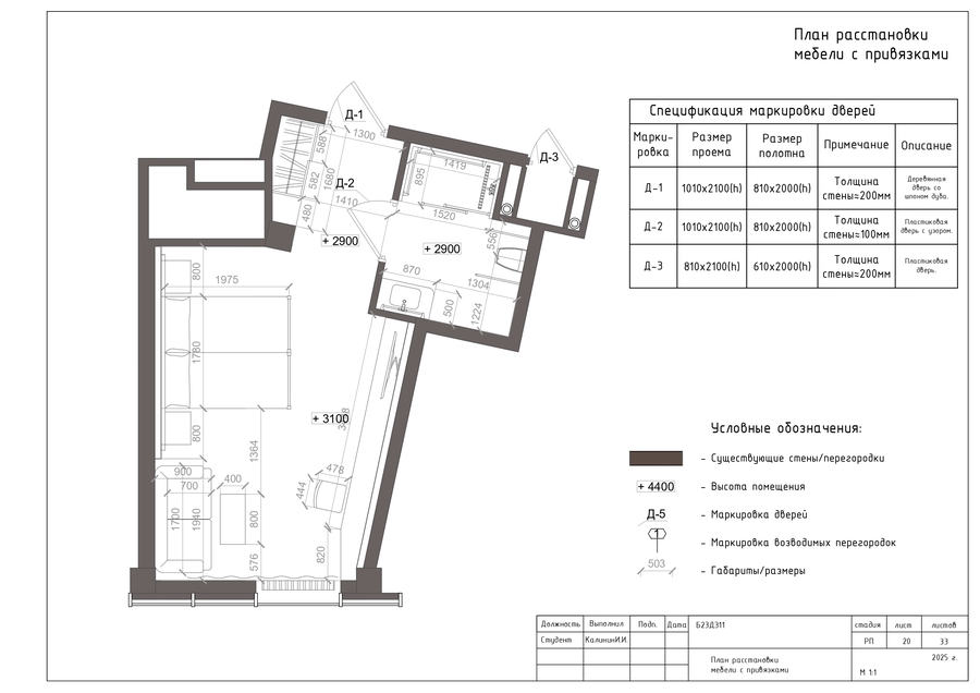
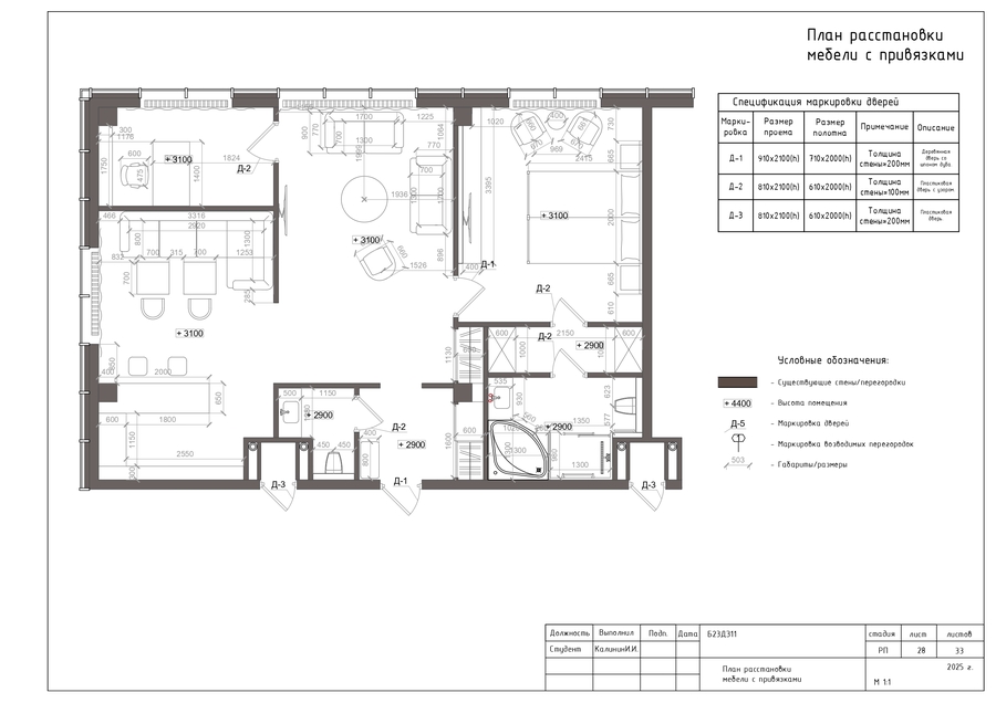
Чертежи «Номер МГН»
Визуализации «Номер президентский»
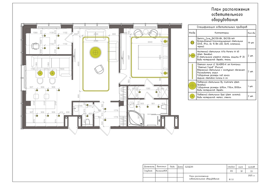
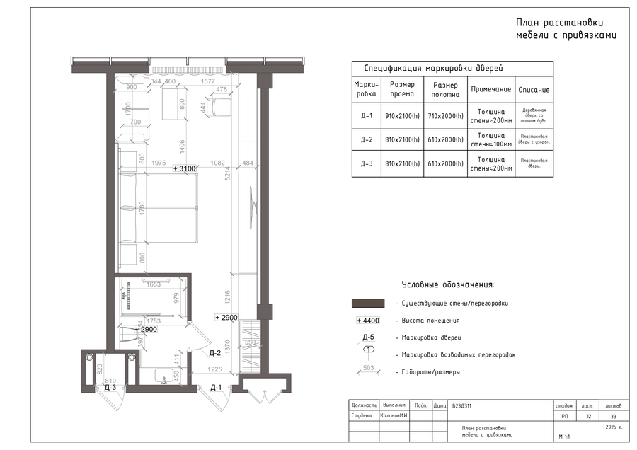
Чертежи «Номер президентский»