
Концепция:
Проект отеля в зоне «Ворот Байкала» основан на идее перехода от внешнего мира к состоянию внутренней тишины. Архитектура и интерьер формируют среду замедления, где пространство не отвлекает, а направляет внимание человека внутрь себя.
Визуальный язык проекта строится на природных ассоциациях Байкала: глубине воды, массивности камня и мягком рассеянном свете. Эти образы интерпретируются через форму и фактуру.
Материалы подбираются по принципу тактильности: камень, минеральные поверхности, дерево и плотный текстиль.
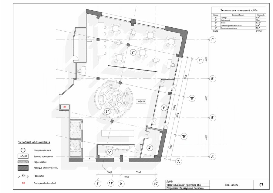
Лобби:
визуализации
Стандарт:

визуализация
визуализация
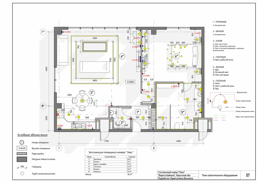
Люкс:
визуализации
визуализация: спальня
Коридор:
визуализация
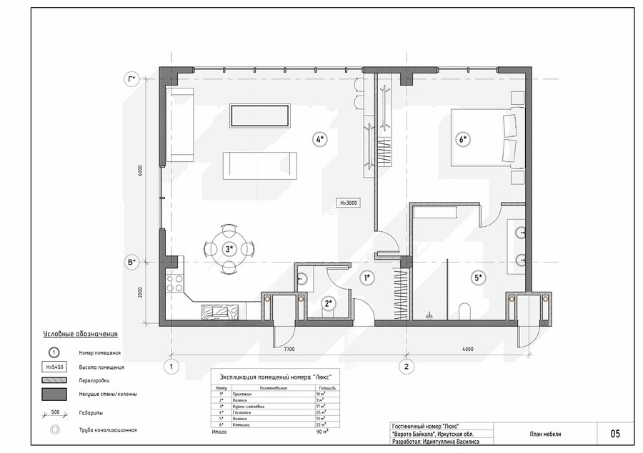
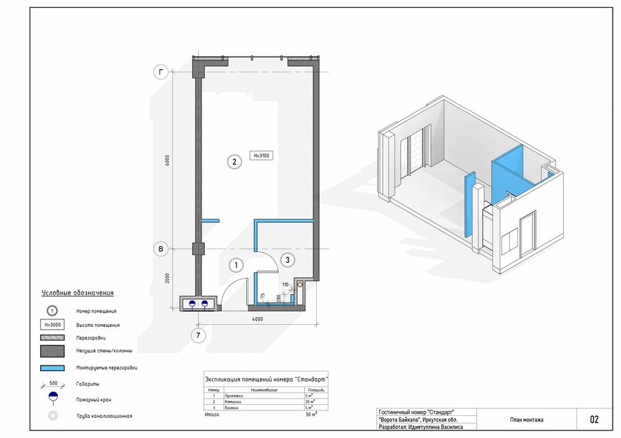
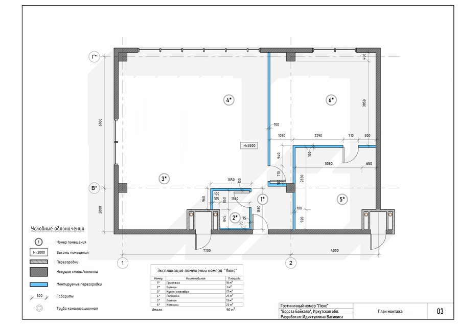
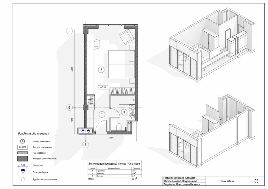
Чертежи: