
Интерьер создавался для молодой пары. Она журналист, он работает в IT сфере. Семья любит проводить время дома, они предпочитают уют и много света. Работают удаленно. Интерьеры предпочитают светлые, с интересными деталями в декоре и аксессуарах, любят винтаж. Одним из основных пожеланий было объединение кухни и смежной комнаты для органbзации просторной кухни-гостиной, от этого мы отталкивались при разработке планировочных решений.

Об объекте
Адрес: г. Москва, Университетский проспект, д. 6к2, кв. 15 Год постройки: 1965
Дом располагается в непосредственной близости от Воробьевых гор — это спокойный, зеленый и красивый район, находится между двумя станциями метро — Университет и Воробьевы горы. Дом был построен на заре эпохи индустриализации, положившей конец «сталинскому ампиру». Это отражается и в облике здания — простой, геометрически четкой форме. Эти же принципы были положены в дизайн-проект объекта, интерьер которого остается геометричным, но, из-за легких фактур и округлых форм, кажется мягким и сбалансированным.
Вдохновением послужили сами заказчики, их желание окружить себя уютом и комфортом. Создать такое пространство, в котором можно не просто жить, но и работать и поддерживать и развивать свои увлечения.
Доска настроения
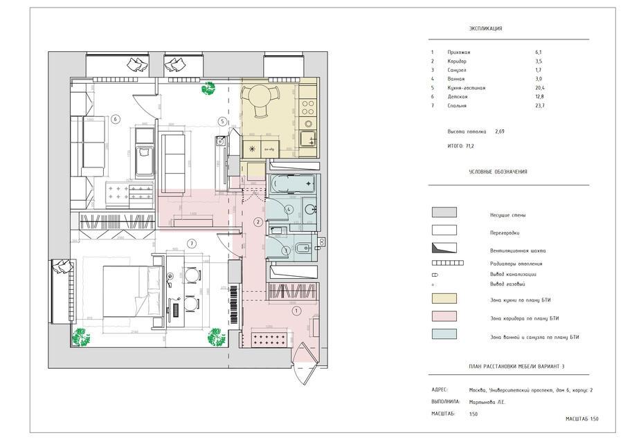
На основе обмерного плана были разработаны три варианта планировочных решений.
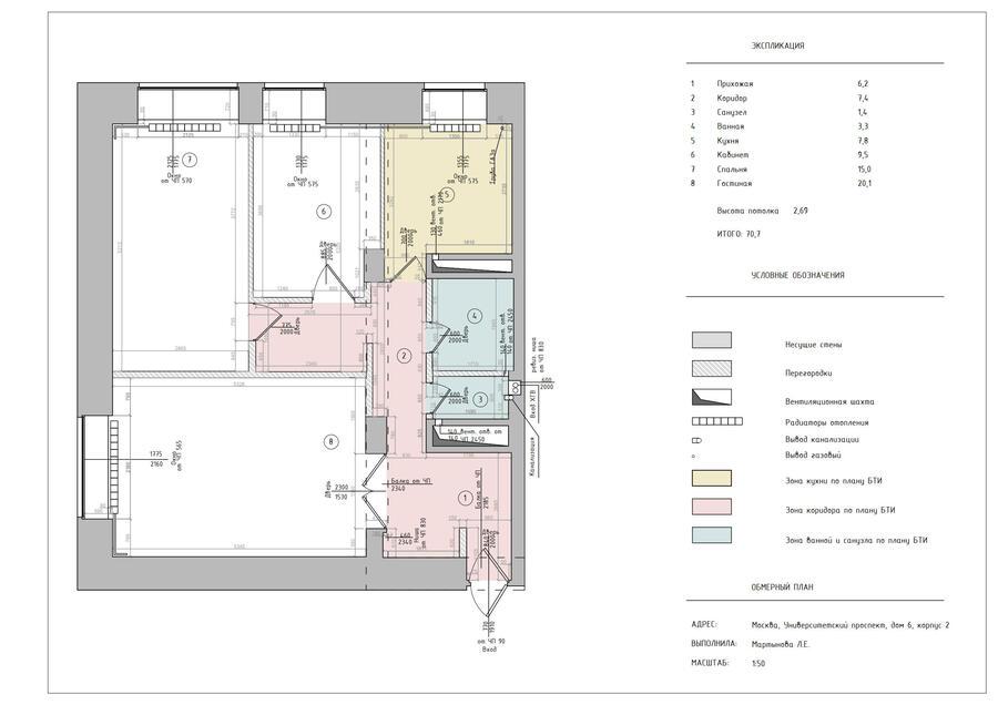
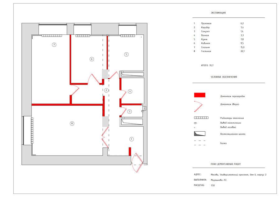
Обмерный план и планировочные решения
Итоговое планировочное решение
Кухня и гостиная объеденены в одно большое и светлое пространство, которое, оставаясь единым, визуально делится на две зоны, благодаря порталам, образованным балкой и разными напольными покрытиями.
Из гостиной можно попасть в будущую детскую, в которой удалось разместить как мебель для новорожденного, так и мебель для ребенка, когда он подрастет.
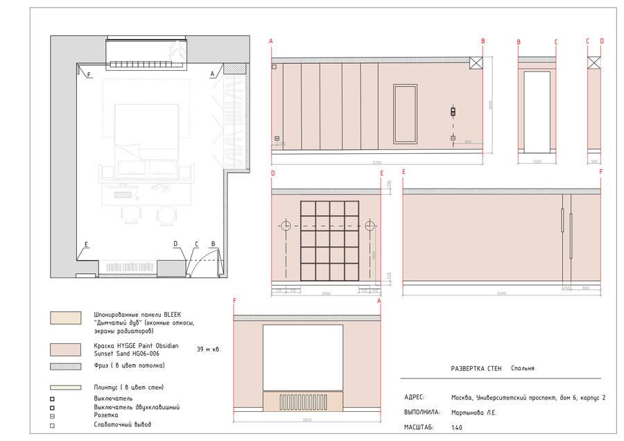
Спальня объединяет в себе две зоны — классическую «мягкую зону» для сна с вместительным гардеробом и рабочую зону с книжным стеллажом и большим столом, за которым могут работать сразу двое.
По запросу заказчиков, санузел оставили раздельным.
Промежуточным этапом проектирования стала разработка коллажей.
Следующим этапом проектирования стала разработка 3D-визуализаций, с помощью которых был уточнен подбор материалов, пропорции элементов интерьера и цветовое решение.
Прихожая — первое, что видит человек, попадая в квартиру, и задает общее настроение интерьеру. Поэтому было принято решение сделать ее яркой, но в то же время сдержанной и лаконичной.
Светлая гостиная с диваном глубокого зеленого цвета и винтажными элементами декора создают чувство покоя и расслабления. Различные сценарии освещения — торшеры, бра, искусственные свечи помогают создать нужное настроение.
Функциональная кухня и круглый стол с удобными мягкими креслами задают тон каждому приему пищи.
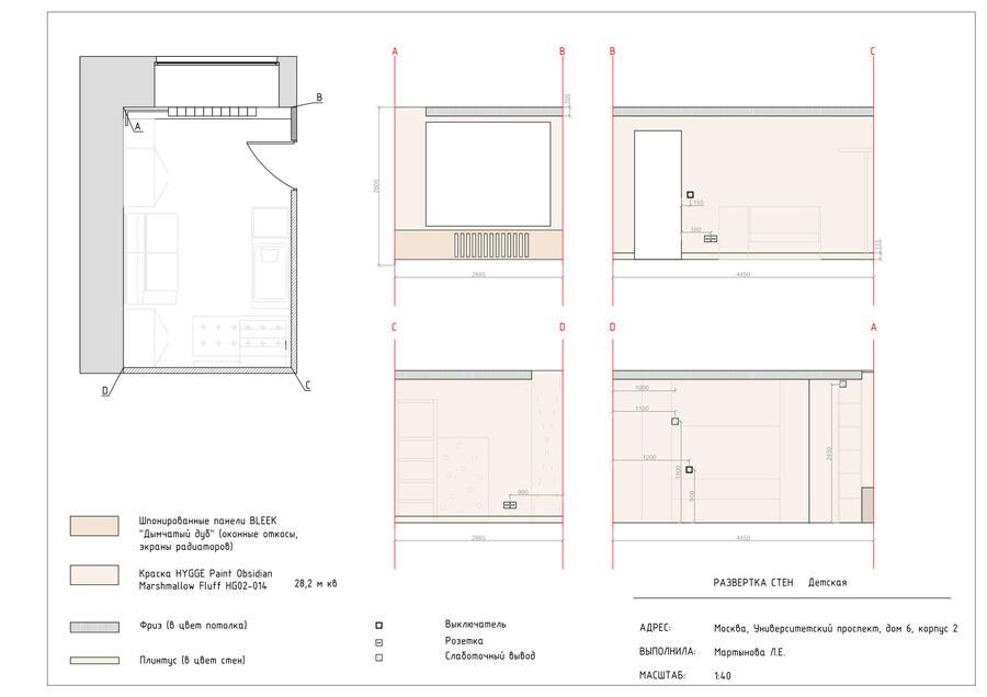
Детская проектируется на будущее и поэтому выполнена в нейтральных тонах и сможет подойти ребенку любого пола. Чтобы в последующем получить свое развитие и трансформацию.
Мягкая, теплая и уютная спальня располагает к отдыху
Цветовое решение ванной комнаты перекликается с дизайном прихожей, а функциональная система хранения плавно сливается с интерьером и делает ванную комнату изящной и лаконичной.
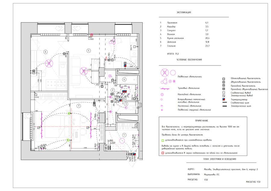
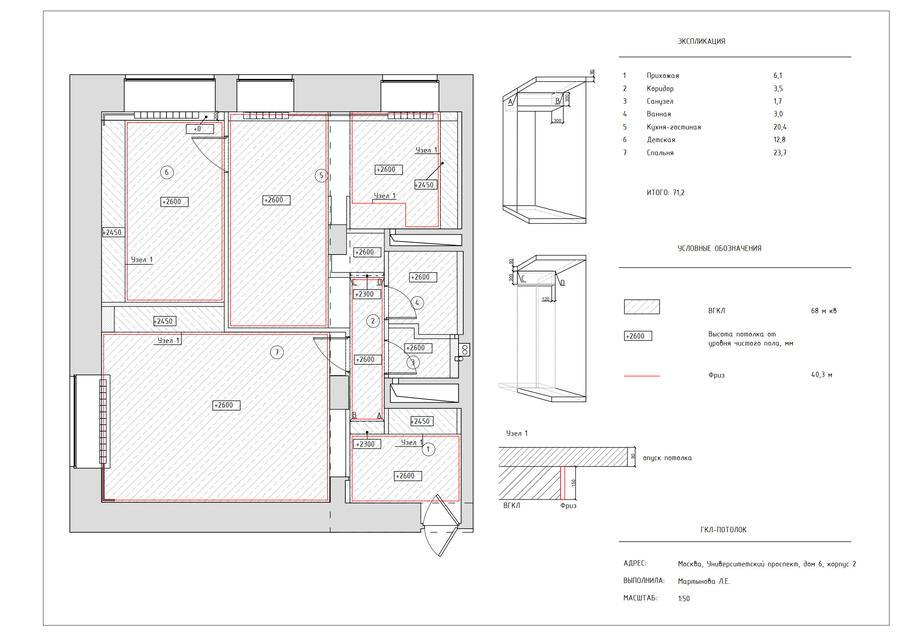
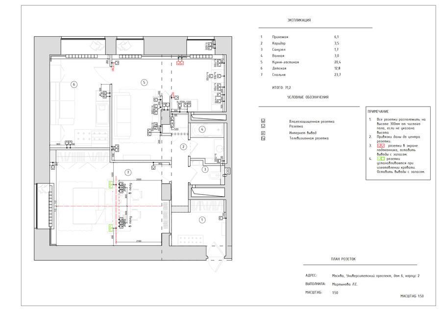
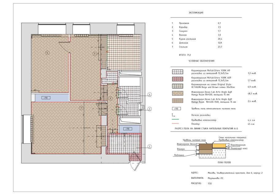
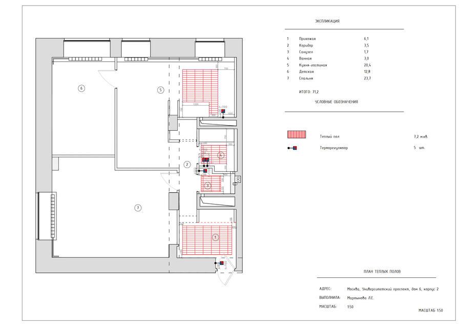
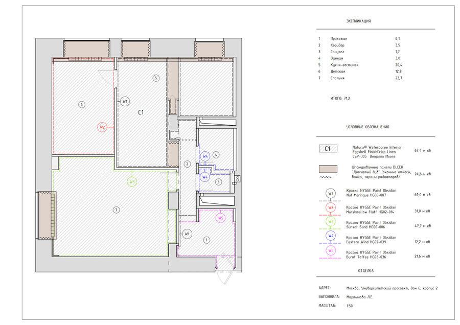
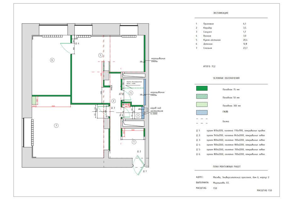
Проект сопровождается комплектом чертежной документации и разверток, а также ведомостью отделочных материалов, мебели и техники.