
КОНЦЕПЦИЯ
Стандартизированное жильё первой половины XX века являлось решением для большого количества вызовов, с которыми сталкивались страны в этот период: нехваткой жилья, необходимостью улучшения санитарных норм и поиском новых форм повседневности. Однако результатом проектирования оказались совершенно разные дома. Германия в конце 1920-х годов развивает концепцию минимального жилья для каждой рабочей семьи. В СССР это же десятилетие становится временем экспериментов с переходными типами жилья и домами-коммунами, где бытовые процессы частично выводятся в общие пространства. В США, напротив, стандартизация получает потребительский характер.
Типовое жилище стало пространством, в котором концентрируются представления эпохи о структуре общества, о повседневных занятиях и о том, каким должен быть человеческий быт. Но каким образом стандартизированное жильё отражало различное понимание человеческого быта и можно ли выявить эти различия через визуальные признаки архитектуры? Являлось ли стандартизированное жильё универсальным или нейтральным явлением или же его форма, структура и пространственная логика служили инструментами для закрепления социальных моделей?
Для того чтобы ответить на эти вопросы, в исследовании рассматривается не только планировочная структура типовых домов, но и способы визуальной репрезентации жилья: чертежи, выставочные панели, рекламные иллюстрации, схемы и архивные фотографии. Эти материалы позволяют увидеть, что стандартизированное жильё работало как своеобразная «оптика» эпохи, через которую можно читать социальные установки и бытовые ожидания.
Принцип рубрикации визуального исследования
Исследование поделено на три раздела, каждый из которых посвящён одному национальному контексту. Внутренняя структура едина: сначала обозначается общий контекст, затем анализируются планировочные решения и рассматриваются схемы, чертежи, иллюстрации.
Принцип отбора визуального материала
Для визуального исследования в качестве материала я использовала планы жилых блоков, исторические фотографии фасадов, внутренние пространственные схемы, архивные изображения и рекламные материалы. Важным критерием отбора стало то, что все визуальные материалы несут в себе информацию о бытовой логике. Кроме того, в исследование включены изображения, которые демонстрируют различия в социальном назначении жилья.
Принцип работы с текстовыми источниками
При изучении темы было проанализировано много материала из различных источников, но в итоговой версии для визуального исследования использовались научные статьи, публикации участников программы Neues Frankfurt и документы CIAM, каталоги Sears Modern Homes и исследования американского индивидуального домостроения.
ГЕРМАНИЯ
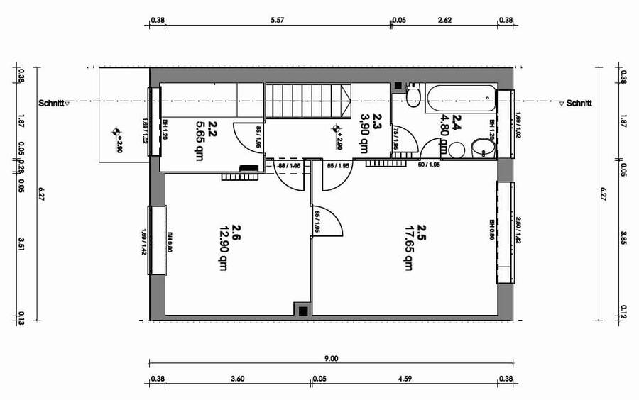
В конце 1920-х годов Германия становится одной из ключевых площадок модернистского жилищного строительства. Решение жилищного кризиса стало возможно во многом благодаря муниципальной программе «Neues Frankfurt» под руководством архитектора Эрнста Мая. Она была направлена на создание доступного, санитарно улучшенного жилья для рабочих и служащих. Характер программы хорошо видно на примере Ernst-May-Haus, построенного в 1927–1928 годах как демонстрационный образец нового образа жизни.


Мей-Хаус, 1927–1928 гг. Фасад со стороны улицы [1]


Мей-Хаус, 1927–1928 гг. Фото: Дэниэла Кристманн


Мей-Хаус, 1927–1928 гг. Первый этаж, комната. Коридор на первом этаже с лестницей и кухней. [1]
Фасад и план этого типового дома демонстрируют стремление к «новой обыденности» — компактной, функциональной и рассчитанной на небольшую семью.
Мей-Хаус, 1927–1928 гг. Вид на улицу и сад. Первый, второй этажи. Разрез.
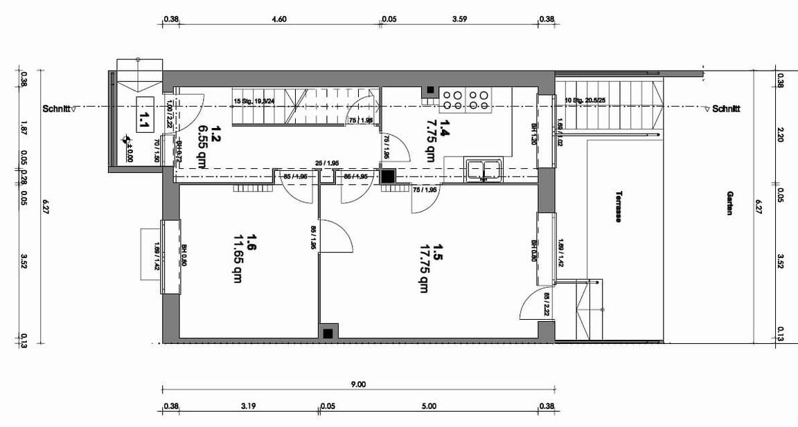
Планировочные решения


Мэй-Хаус 1927–1928 гг. Кухня, сторона раковины, Коллекция кухонь Франкфурта [1]
Центральным элементом немецкой стандартизации становится Франкфуртская кухня (Маргарете Шютте-Лихотцки, 1926), проектированная как рациональный инструмент организации повседневных действий.


Мэй-Хаус 1927–1928 гг. Кухня, вид от входа в окно, Кухня, вид на дверь, гладильная доска. [1]
Пространственная логика предписывает определенный сценарий поведения: минимальные шаги, встроенные элементы, компактная связь рабочих зон. Эта бытовая рационализация переносится и на всю квартиру: небольшие комнаты, чёткое распределение функций, ориентация на свет.
Мэй Э. Схематическое представление разработки современного плана развития «Эрнст». 1930 г. [2]
Схема показывает переход от плотного квартала к разреженной структуре с лучшей инсоляцией и воздухообменом — стандартизация работает на уровне целого района.
Штутгарт. Вайсенхоф.
Вайсенхоф в Штутгарте, построенный в 1927 году для выставки Die Wohnung («Жилище»). Здесь были представлены экспериментальные дома ведущих модернистов Европы: Миса ван дер Роэ, Ле Корбюзье, Гропиуса, Таутов и др.
Ле Корбюзье. Дом в поселке Вейссенгоф. 1927 г. [3]


Город-сад Вайсенхоф в Штутгарте, 1927 год. Мис ван дер Роэ, Март Стэм [4]
Вайсенхоф демонстрирует разные модели стандартизированного жилья внутри единой идеи модернизма: — У Ле Корбюзье — минимальная ячейка и открытая планировка. — У Миса ван дер Роэ — несущая каркасная система и свободное членение пространства. — У Гропиуса — модульность и индустриальность.
Это общая европейская платформа, где стандартизация понимается как универсальный язык. Архитекторы показали, что «новое жилище» должно быть компактным, светлым, лишенным декоративности, основанным на принципах индустриального производства.
Если Neues Frankfurt — локальная муниципальная политика, то Вайсенхоф— международная выставка, где стандартизация представлена как глобальная задача XX века.
Графическая система CIAM
Параллельно с архитектурными экспериментами развитие получает и визуальный язык минимального жилища. На выставке CIAM 1929 «Die Wohnung für das Existenzminimum» все проекты были приведены к единому формату: планы, метрики, разрезы и таблицы оформлялись в стандартизированном виде.


Герд Арнт Жилищное строительство и городское развитие: постоянная выставка Социально-экономического музея 1928-1930, Уолтер Дексель Используйте только газ… Экономит работу, время и деньги 1924 [15]
Геометрия плаката, минимум текста и строгая типографика подчёркивают инженерную природу задачи: жильё представлено как система параметров, а не художественный объект.
Стандартизированное жилье не являлось нейтральной строительной формой. Напротив, его пространственная организация последовательно закрепляла вполне конкретные социальные модели. В основе лежало представление о «современном человеке» как о рациональном, дисциплинированном и физически активном горожанине, ведущем упорядоченный бытовой уклад. Именно эту модель стремились поддержать и архитекторы Neues Frankfurt, и участники выставки Вайсенхоф.


Ганс Лейстиков «Жилище для минимального существования» 1929, Хелен Хаасбауэр-Вальрат «Практическая кухня» 1930 [15]
СССР
Вторая половина 1920-х годов в СССР быстро развивается промышленность, растут города из-за чего появляется проблема нехватки жилья, которая сопровождается идеей преобразования самого уклада быта. Архитектура должна была не только решать бытовые проблемы, но и формировать «нового человека», включённого в коллективные формы жизни. В советских проектах жилище начинает рассматриваться как часть системы, где личное пространство сокращается, а ключевые бытовые функции преднамеренно выносятся в общую зону.
Дом Наркомфина
Общий вид Дома Наркомфина после реставрации, Коридор-галерея с восстановленным остеклением [5]
Дом Наркомфина (1930 г.) создавался как экспериментальная модель «переходного типа» — промежуточного состояния между старым семейным бытом и предполагаемым будущим коллективным укладом.


Четвертый этаж коммунального корпуса, восстановленные окна в коридоре здания [5]
Интерьер ячейки К [5]
Планировка жилых ячеек F и K строится по принципу минимизации личного пространства. Узкое помещение, двухсветная зона, антресольный уровень — всё это визуально подчеркивает функциональный характер частной жизни. Жилая ячейка не предназначена для полноценного быта: в ней нет полноценной кухни, а санитарный блок минимален. Общие же пространства занимают ключевое место: кухня, столовая, прачечная, спортивные и рекреационные помещения.
Коллективный быт в визуальной культуре
Журналы «Современная архитектура» активно публиковали схемы, объясняющие, как новые типы жилья должны влиять на социальное поведение. На этих схемах видно, что коллективные функции — от столовой до детских комнат — рассматриваются как инструмент воспитания общности и рационального распределения труда.
Архив «Современная архитектура» [6]
Плакаты конца 1920-х годов усиливают эту идею: общая столовая изображается как пространство освобождения женщины от «кухонного рабства», а коллективные прачечные — как символ технического прогресса. В визуальном языке плаката легко заметить, что индивидуальная кухня показана как пережиток прошлого, а коллективное пространство — как современный и правильный выбор.
«Работницы и крестьянки все на выборы» [8] «Работница, будь в передовых рядах строителей социализма.» [7] «Долой кухонное рабство! Да наступит новая домашняя жизнь!» [8]
Структура советских стандартизированных домов отражает совершенно иной образ быта, чем немецкие проекты. Взглянув на зонирование пространства можно увидеть, что это жилье — это попытка создать новый образ жизни, противопоставленный буржуазному семейному укладу и тесно связанный с идеей коллективного будущего. Минимизация частной зоны делает проживание не «семейным», а полу общественным: отсутствие индивидуальных кухонь, двухуровневые ячейки, выразительные общие пространства, минимальные площади частных помещений.
США
В США первая половина XX века характеризуется популезацией индивидуального домостроения и развитием автомобильной культуры. Стандартизация жилья приобрела потребительский характер: дом планировался не как часть коллективного проекта или государственного вмешательства, а как товар, который человек может приобрести и «собрать» сам.
Планировочная структура каталожных домов
Обложка каталога Sears Modern Homes 1922 года
В это время компания Sears, Roebuck & Co. запускает программу «Modern Homes», предлагающую домокомплекты через почтовый каталог — комплект деталей, который покупатель мог получить и собрать либо заказать сборку. Эти каталоги содержали сотни моделей домов, с номерами и деталями, включая планы, фасады и спецификации.


Изображение из каталога и план этажа модели Sears Magnolia [10], Sears Magnolia в Бенсоне, Северная Каролина [11]


Sears Modern Home № 119 [12]
Такие дома располагаются на отдельном участке и имеют четкое разграничение функций внутри. Такая планировочная модель характерна для индивидуальной автономии.
Визуальная культура
В каталогах и рекламе Sears использовали слоганы: «Ваш собственный дом», «доступный дом вашей мечты», «готовые материалы». Это подчёркивает, что стандартизация жилья превращает дом в объект потребления, но не теряет социальной значимости.
Built by our customers at a big saving [13]
Стандартизированное жильё в США стало не столько социальной программой, сколько частью массовой культуры и экономики, где стандарт — это средство сделать дом доступным.
Американская модель типового жилья первой половины XX века демонстрирует иной бытовой сценарий по сравнению с европейскими и советскими примерами. Стандартизация здесь — прежде всего инструмент, позволяющий реализовать идеал частной собственности, индивидуальной семьи и доступного жилья как товара.
ЗАКЛЮЧЕНИЕ
Сопоставление Германии, СССР и США позволяет убедительно ответить на вопрос, поставленный в начале работы. Стандартизированное жильё первой половины ХХ века не являлось нейтральной или унифицированной архитектурной формой. В каждой стране оно становилось инструментом фиксации определённого социального порядка:
- в Германии — рационального и структурированного семейного быта; - в СССР — коллективного уклада, ориентированного на перераспределение бытовых функций; — в США — индивидуалистической модели потребления и частного владения.
Эти различия обнаруживаются прежде всего в визуальной форме жилья: в размерах и зонирование помещений, в местах пересечения жителей, в характере фасадов и даже в способе графического представления проектов.
Архитектура здесь работает не только как средство решения жилищной проблемы, но и как язык, который описывает, нормирует и формирует повседневную жизнь. Именно через визуальные признаки — планы, схемы, изображения, фасады — можно прочитать, какой образ человека и какой бытовой сценарий каждая страна считала правильным, желательным и современным.
Калабин Александр Васильевич, Куковякин Алексей Борисович Массовая жилая застройка: проблемы и перспективы // Академический вестник УралНИИпроект РААСН. 2017. № 3 (34). URL: https://cyberleninka.ru/article/n/massovaya-zhilaya-zastroyka-problemy-i-perspektivy (дата обращения: 10.11.2025).
Конышева Е. «Солнце, воздух и дом для всех»? Европейский опыт массового жилищного строительства и его советские вариации в годы первых пятилеток // Quaestio Rossica. 2016. Т. 4.№ 3. — 2016. — Т. 4. — №. 3. — С. 34-54. URL: https://elar.urfu.ru/handle/10995/41246 (дата обращения: 05.11.2025).
Ernst-May-Gesellschaft. Frankfurter Küche // Ernst-May-Gesellschaft [Электронный ресурс].URL: https://ernst-may-gesellschaft.de/mayhaus/frankfurter-kueche (дата обращения: 09.11.2025).
Das neue Frankfurt. 1930. Вып. 2/3 // Universitätsbibliothek Heidelberg. Digitale Bibliothek [Электронный ресурс].URL: https://digi.ub.uni-heidelberg.de/diglit/neue_frankfurt1930/0067/image,info (дата обращения: 09.11.2025).
Mumford E. P. The CIAM discourse on urbanism, 1928-1960. — MIT press, 2002.
О Доме Наркомфина // Narkomfin [онлайн]. URL: https://narkomfin.ru/history#history (дата обращения: 17.11.2025).
Современная архитектура // TEHNE [онлайн]. URL: https://tehne.com/library/sovremennaya-arhitektura-zhurnal-1926-1930 (дата обращения: 17.11.2025).
Ernst-May-Gesellschaft. Musterhaus / Mayhaus // Ernst-May-Gesellschaft [Электронный ресурс]. URL: https://ernst-may-gesellschaft.de/mayhaus/musterhaus (дата обращения: 09.11.2025).
Мэй Э. Схематическое представление разработки современного плана развития «Эрнст». // Das neue Frankfurt. 1930.Вып. 2/3. С. 34. URL: https://digi.ub.uni-heidelberg.de/diglit/neue_frankfurt1930/0067/image,info (дата обращения 09.11.2025).
Weissenhofsiedlung Stuttgart. Изображения объектов посёлка Вайсенхоф // Totalarch: Le Corbusier[Электронный ресурс]. URL: https://corbusier.totalarch.com/weissenhof (дата обращения: 14.11.2025).
Cité de l’Architecture et du Patrimoine. Expositions virtuelles. Archi vivante: Projet 03 // Expositions virtuelles[Электронный ресурс]. URL: https://expositions-virtuelles.citedelarchitecture.fr/EXPO-VIRTUELLE-ARCHI-VIVANTE/06-PROJET-03.html (дата обращения: 09.11.2025).
Дом Наркомфина // Узнай Москву [онлайн]. URL: https://um.mos.ru/houses/dom_narkomfina/ (дата обращения: 17.11.2025).
Современная архитектура // TEHNE [онлайн]. URL: https://tehne.com/library/sovremennaya-arhitektura-zhurnal-1926-1930 (дата обращения: 17.11.2025).
Работница, будь в передовых рядах строителей социализма. // redavantgarde [онлайн]. URL: https://redavantgarde.com/collection/show-collection/1922-worker-be-in-the-front-ranks-of-building-socialism-.html?themeId=55(дата обращения: 17.11.2025).
Долой кухонное рабство! Да наступит новая домашняя жизнь! // exhibitions [онлайн]. URL: https://exhibitions.globalfundforwomen.org/exhibitions/women-power-and-politics/appearance/emancipated?utm_source=chatgpt.com (дата обращения: 17.11.2025).
Обложка каталога Sears Modern Homes 1922 года // Wikipedia [онлайн]. URL: https://en.wikipedia.org/wiki/Sears_Modern_Homes?utm_source=chatgpt.com (дата обращения: 17.11.2025).
Изображение из каталога и план этажа модели Sears Magnolia // Wikipedia [онлайн]. URL: https://en.wikipedia.org/wiki/Sears_Modern_Homes?utm_source=chatgpt.com (дата обращения: 17.11.2025).
Sears Magnolia в Бенсоне, Северная Каролина// Wikipedia [онлайн]. URL: https://en.wikipedia.org/wiki/Sears_Modern_Homes?utm_source=chatgpt.com (дата обращения: 17.11.2025).
Sears Modern Home № 119 // searshomes [онлайн]. URL: https://searshomes.org/index.php/2011/06/15/sears-modern-home-119/ (дата обращения: 17.11.2025).
Built by our customers at a big saving// 99percentinvisible [онлайн]. URL: https://99percentinvisible.org/episode/the-house-that-came-in-the-mail/ (дата обращения: 17.11.2025).
Ганс Лейстиков Die Wohnung für das Existenzminimum (Жилище для минимального существования) 1929 г. // Moma [онлайн]. URL: https://www.moma.org/collection/works/6107 (дата обращения: 17.11.2025).
Installation views // Moma [онлайн]. URL: https://www.moma.org/collection/works/6107? (дата обращения: 17.11.2025).