
Предпроектный анализ адаптации доходного дома под центр волжских ремёсел
Глава I. Введение
Актуальность исследования
Исторический центр Самары обладает высокой архитектурной и культурной ценностью, однако значительная часть застройки находится в состоянии функционального упадка и утраты актуального использования. В этих условиях возрастает необходимость не только сохранения исторических зданий, но и их адаптации под современные общественные функции, способные обеспечить их устойчивое существование в структуре города.
Одним из актуальных направлений такой трансформации является создание Центра волжских ремёсел, обусловленное потребностью в сохранении и актуализации традиционных ремесленных практик Поволжья как значимой части нематериального культурного наследия региона. Несмотря на богатую историческую традицию, в городе отсутствует специализированное пространство, объединяющее функции обучения, демонстрации и популяризации локальных ремёсел. Формирование подобного центра позволяет систематизировать ремесленную деятельность, создать платформу для передачи знаний, поддержки мастеров и вовлечения жителей и туристов в культурный процесс.
Фокус исследования направлен на выявление взаимосвязи между историко-культурным контекстом территории и её пространственной организацией. Развитие волжских ремёсел связано с географическим положением Самары, её ролью в системе водных и торговых путей и доступом к природным ресурсам, что сформировало устойчивые ремесленные традиции и нашло отражение в архитектуре и структуре городской среды.
Цель и задачи исследования
Целью исследования является анализ концепции реновации исторического здания с приспособлением его под Центр волжских ремёсел, ориентированный на сохранение и развитие ремесленных традиций региона.
Для достижения поставленной цели необходимо решить следующие задачи:
➤ проанализировать историко-культурный и градостроительный контекст объекта;
➤ изучить архитектурные и композиционные особенности здания;
➤ определить функциональные и социальные потребности целевой аудитории;
➤ исследовать отечественные и зарубежные аналоги центров ремёсел;
➤ сформировать принципы адаптивной реновации;
➤ продумать функционально-пространственную модель Центра;
➤ обосновать проектную концепцию с позиции устойчивого развития.
Проектная гипотеза
Предполагается, что интеграция Центра волжских ремёсел в структуру исторической застройки позволит создать устойчивое культурно-образовательное пространство, способствующее сохранению нематериального наследия и активизации общественной жизни исторического центра Самары.
Объект и предмет проектирования
Объектом проектирования является доходный дом А. Ф. Нуйчева начала XX века, расположенный в историческом центре города Самары.
Предметом проектирования является архитектурно-пространственная трансформация здания путём его реновации и приспособления под Центр волжских ремёсел как современный культурно-образовательный и общественный комплекс.
Глава II. Дух места
2.1. Местоположение объекта. Историко-географический контекст
Поволжье является крупным историко-культурный регионом России, расположенным вдоль средней и нижней Волги — главной водной артерии страны. Он объединяет Самарскую, Ульяновскую, Саратовскую, Волгоградскую области, Татарстан и Калмыкию, формируя единое пространство торговли и ремёсел.
Самара входит в Среднее Поволжье — территорию от Казани до Волгограда, где издавна пересекались торговые пути и культурные традиции.
Самара находится на левом берегу Волги, в излучине Самарской Луки. Город основан в 1586 году как оборонительное укрепление — Самарский городок, для охраны торгового судоходства на Волге и юго-восточных рубежей государства; с 1851 г. — губернский центр (с 1935 по 1991 гг. — Куйбышев). Географическое положение на водном магистральном пути предопределило торгово-промышленный профиль и многоукладный городской быт.
Строительство бухты, 1906 г.
Уже в XVII веке Самара постепенно выходит за рамки пограничного форпоста: постоянный поток волжских караванов — с хлебом, рыбой, лесом и промышленными товарами — делает её важным посредническим пунктом на речном пути. В «Самарской летописи» отмечается, что осенью по Волге проходило до двух тысяч судов. В период навигации в Самаре особенно активно работали перевалочные службы, склады, рынки и связанные с ними ремёсленные мастерские.
При этом сама ремесленная среда долго оставалась сравнительно небольшой, хотя и весьма разнообразной. По данным середины XVII века, в городе насчитывалось около тридцати ремесленников, и среди них были плотники, бондари, кузнецы, сапожники, серебряники, портные, сыромятники, шапочники и даже иконописцы. Особую роль играли мастера, связанные с рыбным промыслом: изготовители сетей, вершей, снастей и солильщики. Такое распределение профессий напрямую отражало близость реки и потребности волжской торговли.
К XVIII веку ремесло постепенно начинает меняться: если раньше город опирался на мелкие индивидуальные мастерские, то теперь в губернии появляются первые мануфактуры, главным образом в помещичьих усадьбах. Однако в самой Самаре ремёсла по-прежнему остаются обслуживающей отраслью, ориентированной на речную и сухопутную торговлю. К этому времени в городе складывается устойчивая модель экономики, в которой торговля, транспорт и ремесленные производства сосуществуют как единая, взаимосвязанная система.


Рыбаки на Волге, начало XX века.

К концу XVIII века стало ясно, что городская структура Самары требует упорядочивания. Торговля росла, ремесленные слободы расширялись, потоки грузов через пристани увеличивались, а частные каменные дома постепенно вытесняли старую деревянную застройку.
Дорегулярная планировка, сложившаяся стихийно в XVII–XVIII веках, сегодня прослеживается с трудом: её следы заметны лишь в районе Хлебной площади. Когда-то здесь находилась вторая самарская крепость, и именно здесь сохранился единственный морфотип той эпохи — несколько неправильных кварталов и треугольная площадь. Этот фрагмент занимает всего около 0,6% от территории современной планировки и относится к структурам непромышленного назначения.
После издания указа Екатерины II «О сделании всем городам специальных планов» в 1782 году был разработан первый регулярный план Самары. Он означал переход от хаотичной слободской застройки к более рациональной и строгой системе. План вводил жёсткую прямоугольную сетку, ориентированную на Волгу, и задавал основные параметры городской структуры.
«Кварталы имели одинаковый размер — 60 × 120 саженей (125 × 250 м) и представлены малоэтажной усадебной застройкой»
[Громилина Э.А., Самогоров В.А., Филиппов В. Д. Эволюция архитектурно-планировочной структуры Самары с конца XVIII по начало XXI веков // Innovative Project. — 2017. — Т. 2, № 3. — С. 8].
К концу XIX — началу XX века Самара превращается в значительный промышленно-торговый центр Поволжья. В этот период происходит уплотнение застройки, увеличение этажности, прокладка трамвайных линий, формирование набережной. Регулярная планировочная структура получает функциональное насыщение и устойчивые транспортные связи.

Улица Ленинградская является одной из старейших и наиболее значимых улиц исторического центра Самары. Её формирование началось в составе регулярного плана конца XVIII века, и на протяжении своей истории она неоднократно меняла названия — Проломная, Сенная, Хлебная, Москательная, Панская, что отражало её торгово-ремесленный характер. Позднее она именовалась Советской, а после революции — Петроградской (с 20 апреля 1918 года). Современное название Ленинградская было присвоено улице 8 июля 1926 года.
Архитектура улицы в первой половине XIX века была скромной и в основном деревянной: одно- и полутораэтажные дома на каменных фундаментах с тёсанными фасадами, небольшими окнами, простыми наличниками и крылечками. Часто это были «жилые-торговые» постройки: на улицу выходила изба или лавка, а в глубине двора амбары и склады. Старые названия Хлебная и Москательная — прямо указывают на зерновую торговлю: здесь стояли амбарные ряды и лавки, обслуживавшие волжские караваны.


Троицкий базар, 1890 год.
В конце XIX — начале XX века улица стала одним из ключевых купеческих и торговых центров города, застроенным каменными доходными домами и лавками. Старые деревянные дома, характерные для раннего городского периода, постепенно исчезали. После 1870-х годов, с появлением строительных артелей, развитием кирпичных заводов и общим экономическим подъёмом, на улице стали активно строить двух- и трёхэтажные доходные дома. На первых этажах располагались лавки и мастерские, а верхние служили жильём — это был удобный и прибыльный для владельцев формат.
К концу XIX века облик улицы значительно изменился: здесь появляются здания в стиле эклектики, классицизма, а чуть позже — модерна. Фасады становятся богаче и выразительнее: рустованные нижние этажи, лепные карнизы, арочные окна, декоративные наличники, кованые балконы. Первый этаж превращается в сплошную торговую витрину — с большими окнами, вывесками и активным уличным движением. Застройка уплотняется, и улица получает цельный, почти столичный городской вид.
Панская улица (Ленинградская), начало ХХ века.
Видовые точки на ул. Ленинградской
Торговля была крайне разнообразной. Здесь продавали платья, ткани, обувь, меха, шляпки; в аптеках покупали не только лекарства, но и парфюмерию. В доме № 59 работал кондитерский магазин, рядом — мануфактурная лавка. Ближе к Главпочтамту торговали осетром, севрюгой, белугой и икрой.
После революции, когда Петроградская в 1924 году стала Ленинградской, она сохранила свою коммерческую роль. Здесь находились популярные магазины: универмаг «Юность», «Дом обуви», гастроном «Утёс». В 1990-е годы улица вновь изменилась — на ней расцвёл вещевой рынок, который стал типичной картиной того времени.


1. Гастроном «Утес» 2. Универмаг «Юность», 1960-е годы.
Советский период развития Самары характеризовался масштабной реконструкцией городской среды, расширением промышленных зон и формированием микрорайонной застройки. Позднее внимание сосредоточилось на обновлении исторического центра, адаптации планировочной структуры к современным условиям и сохранении культурного наследия.
2.2 Общая справка объекта

1870–1880 гг. На месте здания расположены деревянные постройки / флигели.
1910–1915 гг. Владельцем участка становится самарский мещанин Алексей Федорович Нуйчев, где по проекту архитектора Дмитрия Вернера был построен доходный дом.
1910–1917 гг. Торговые залы первого этажа сдаются Товариществу «Проводник», которые торговали линолиумом и резиновыми изделиями. Надпись была обнаружена после сноса в 2008 года торгового пассажа купца Николая Масленникова. Со временем крупнейшая дореволюционная реклама выцвела, однако едва заметная надпись диктует:
«Т-во Проводникъ / Галоши / Экипажныя и автомобильн. шины / Линолеумъ / Асбестовыя и техническiя издѣлiя»
В композиции также присутствуют изображения подошвы галоши, автомобильного обода и шины, а также герба Российской империи.
Торговый пассаж купца Николая Масленникова на аэрофотосъемке 1972 г.
Глава III. Дух времени
3.1 Градостроительный анализ
Местоположение здания
Архитектура
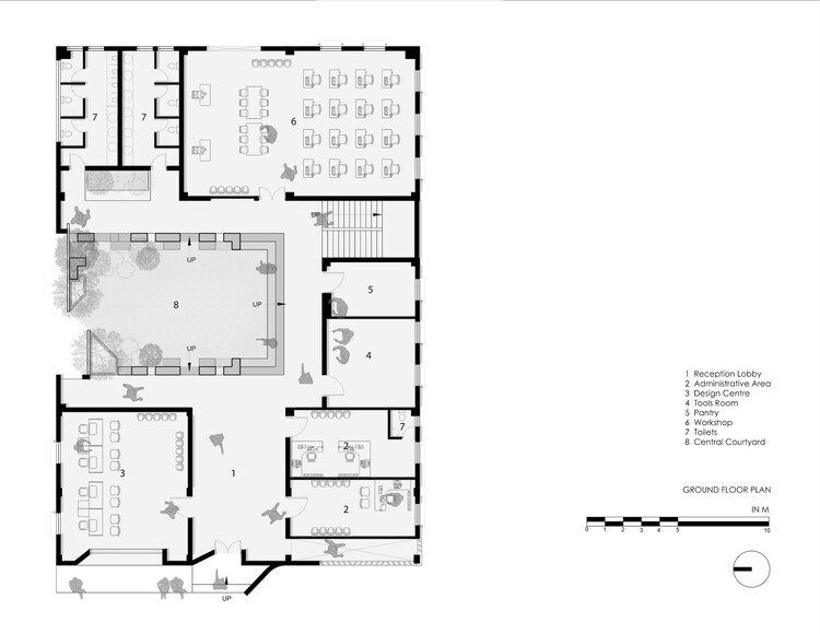
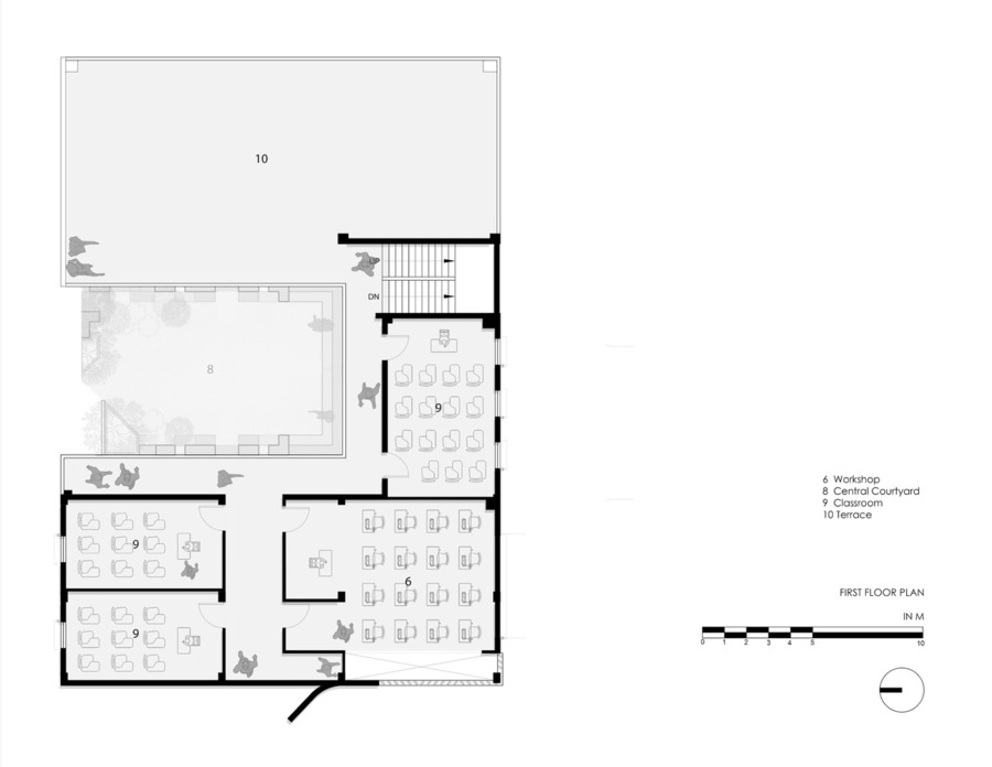
Трехэтажное с подвальным этажом кирпичное здание Г-образной формы в плане, развитое вглубь участка, главным фасадом выходит на ул. Ленинградскую.
Здание состоит из двух блоков: к прямоугольному блоку, расположенному по ул. Ленинградской, со двора примыкает прямоугольное крыло, протяженное на 30 м вглубь усадебного участка, параллельно ул. Чапаевская.
Здание выполнено в стиле поздний модерн с элементами эклектики. Заметны заимствования «египетской» орнаментации, так как использование подобных мотивов характерно для искусства 1900-х годов, когда в российской архитектуре возник интерес к археологическим и мифологическим сюжетам, воспринимаемым через декоративную стилизацию. Фасад облицован белым «кабанчиком», с каменным балконом и карнизом, увенчанным двумя вазонами.
В простенке между окнами размещены гермы — обелиски с головами богини Исиды. [02] Во фризах — барельефы с перьями [04], орлами и двумя звёздами Давида [01], так как Нуйчев был иудейского вероисповедания.
По композиции здание трехэтажное асимметричное, где первый этаж традиционно занимали торговые помещения/магазины, верхние этажи — жилые квартиры.
Дворовые фасады не подвергались оштукатуриванию, решены весьма рационально и лишены декоративных элементов.
1. Фото прилегающего участка 2-4. Фото дворовых фасадов
Площадь: 1175.6 м²
Этажность: 3 + подвал
Прилегающая территория: имеется
Характеристика архитектурно-конструктивных элементов
Конструктивная схема здания основана на системе несущих кирпичных стен из полнотелого кирпича на известково-песчаном растворе. Фундаменты ленточные, кирпичные, устойчивые, без признаков значительных деформаций. Перекрытия преимущественно деревянные по балкам, с частичными поздними заменами. Кровля скатная, с металлическим покрытием.
Однако интерьеры здания в значительной мере подверглись перепланировкам и утрате первоначального декоративного оформления. Большинство исторических элементов — лепнина, карнизы, декоративные панели и отделочные детали либо фрагментарно сохранились, либо полностью утрачены, при этом планировочная структура частично искажена поздними перегородками, современными инженерными коммуникациями и заменой напольных покрытий.
Сохранившиеся фрагменты отделки и лестничные пролёты находятся в удовлетворительном состоянии, однако требуют реставрационного вмешательства.
1,3. Сохранившийся лестничный пролет 2. Подлинный элемент исторического напольного покрытия
Транспортная доступность
Так как рассматриваемый объект расположен в историческом центре Самары, район характеризуется высокой транспортной обеспеченностью и развитой пешеходной инфраструктурой.
Общественный транспорт:
В радиусе 400–800 м от здания проходят основные маршруты городского общественного транспорта — автобусы, трамваи и маршрутные такси с интервалом движения 5–10 минут. Ближайший пересадочный узел — площадь Революции, обеспечивающая связь с основными районами города.
Велосипедная и микромобильная доступность:
В районе функционируют маршруты для передвижения на велосипедах и средствах индивидуальной мобильности (электросамокаты, прокатные велосипеды). Размещение станций проката в центральной части города обеспечивает дополнительную вариативность передвижения, особенно для туристов.
Личный транспорт:
Улично-дорожная сеть центра Самары сформирована в условиях исторической застройки и отличается высокой плотностью, ограниченной пропускной способностью и преобладанием узких улиц. Подъезды осуществляются по основным магистралям и улицам местного значения, однако возможности длительной парковки здесь ограничены.
С 2026 года в историческом центре планируется внедрение системы платных парковок, в рамках которой будет организовано около 500 машино-мест на ключевых участках центральных улиц.
Также на расстоянии 2-3 км от исторического центра располагается Железнодорожный вокзал Самары, являющийся крупнейшим транспортным узлом Приволжского федерального округа и одним из ключевых пунктов межрегионального пассажирского сообщения. Такое местоположение обеспечивает удобный доступ для прибывающих туристов и гостей города.
Речной вокзал, расположен значительно ближе — на Волжской набережной, в пределах центральной части города и в зоне высокой пешеходной активности. Он обслуживает пассажирские теплоходы и круизные маршруты по Волге, связывая Самару с крупнейшими городами речного бассейна. В навигационный период речной вокзал становится значимым источником туристического потока.
Функциональные здания района
Функциональное зонирование является важным инструментом градостроительного планирования, обеспечивающим рациональную организацию городской территории и распределение различных видов деятельности. В структуре современного города выделяются основные функциональные зоны: жилая, общественная, производственная, здравоохранения, рекреационная и озеленения.
Исторические центры городов, как правило, характеризуются смешанным функциональным использованием территории, что обусловлено эволюцией застройки и изменением градостроительных приоритетов.
Застройка улицы в целом носит смешанный характер и отличается многообразием функционального наполнения. Первые этажи зданий преимущественно заняты общественно-торговыми и общественно-социальными функциями, верхние используются под жильё, гостиницы и административные помещения.
Общественно-торговая функция представлена магазинами, предприятиями общественного питания и сферой услуг. Общественно-социальная включает учреждения образования, здравоохранения, спорта, банки, административные и социальные организации. Культурно-туристическую среду формируют объекты наследия, музеи, галереи, арт-пространства и кинотеатры.
Вместе с тем прослеживается выраженная иерархия функций относительно проектируемого объекта. В непосредственной близости к нему концентрируются здания культурного значения и общественно-торговые пространства. По мере удаления от объекта возрастает доля жилых, гостиничных и административных функций.
Архитектура близлежащих зданий
Формирование архитектурного облика улицы Ленинградской проходило преимущественно в период с середины XIX до начала XX века, когда сложился её характерный фронт каменной городской застройки, отражающий экономический подъём и рост городской культуры Самары.
Однако современные морфологические особенности улицы являются результатом более длительного исторического процесса. На протяжении почти двух с половиной столетий её пространство последовательно насыщалось зданиями, принадлежащими различным архитектурным эпохам, — от ранних купеческих усадеб до насыщенной орнаментальной эклектики, пластики модерна и функциональных советских конструкций.
Район собирался «по крупицам», переходя от одного градостроительного этапа к другому: в его среде отчетливо прослеживаются изменения художественных предпочтений, технологических возможностей и социальных установок.
Схема застройки исторического поселения по годам: 1870 г. — н.в
Стилистические особенности
1. Эклектика (вторая половина XIX — начало XX века)
Эклектика составляет значительную часть исторического фронта улицы Ленинградской. Для неё характерно сочетание элементов классицизма, барокко, ренессанса и других исторических стилей, объединённых в декоративно насыщенные фасады.
Характерные признаки:
• симметрия композиции; • развитая лепнина: карнизы, пилястры, замковые камни, наличники; • крупные прямоугольные и арочные оконные проёмы; • подчёркнутый первый этаж (торговые функции).
Примеры:
— Жилой дом с лавкой С. Б. Сивинцева, 1907–1908 гг. (Эклектика с элементами русского кирпичного стиля) — Дом купца Ливерия Покидышева, 1890-е гг. (Эклектика с элементами русского стиля и барочных мотивов)
2. Модерн (рубеж XIX–XX века)
Стиль модерн также представлен на Ленинградской особенно выразительно благодаря активному строительству начала XX века.
Характерные признаки:
• асимметрия фасадов, свободная композиция; растительные и зооморфные мотивы (флоральная лепнина, маскароны); • использование глазурованной плитки, декоративных вставок; • эркеры, округлые формы, витражи; металлические ограждения с «растительными» орнаментами.
Примеры:
— Торговый дом А. Н. Пермяковой, 1901 гг. — Дом Сидорова, 1900–1904 гг.
3. Советский неоклассицизм (1930 –1950-е годы)
Советский неоклассицизм представлен на улице Ленинградской в единичных примерах.
Характерные признаки:
• строгая симметрия фасадов и осевая композиция; • использование ордерных элементов: пилястр, полуколонн, массивных карнизов; • трёхчастное членение фасада с выделением основания и венчающей части; • укрупнённый масштаб деталей, монументальность объёма; • умеренная, но значимая декоративность — геометрические орнаменты, барельефные вставки.
Примеры:
— Промышленный банк, 1946 гг. — Жилой дом, 1913 г. (на сегодняшний момент СамГМУ)
4. Конструктивизм (конец 1920-х — 1930-е годы)
Конструктивизм в зданиях так же прослеживается весьма единично, однако его отдельные здания отражают период раннего советского архитектурного авангарда, ориентированного на функциональность, рациональность и отказ от декоративности.
Характерные признаки:
• строго функциональная композиция, отсутствие декоративных элементов; • плоскостная трактовка фасадов, подчёркнутая геометричность объёмов; • использование железобетона, кирпича, минималистичных штукатурных поверхностей;
Примеры:
— Общежитие ОГПУ, 1929–1931 гг.
Современная постсоветская застройка (1990-е — настоящее время) редко, но также встречается на пешеходной улице. Новые здания зачастую стремятся стилизоваться под историческую среду, используя карнизы, рустовку и кирпичную фактуру, но одновременно вводят и современные элементы — стеклянные витражи, композитные фасады и увеличенную высотность (4–7 этажей).
*На схеме представлены лишь здания, являющиеся объектами культурного наследия регионального значения. Их выбор был обусловлен представлением различных архитектурных стилей.
Высотная характеристика
Высотный облик улицы формировался в соответствии с типологией купеческого города конца XIX века, где 2–3-этажные здания доминировали в линейной застройке главных улиц. Большинство исторических домов на Ленинградской имеют 2 или 3 этажа, реже — 1 этаж с мансардой (характерно для деревянных или старейших каменных зданий).
Советский период привнёс более высокую — 4–5-этажную — застройку, однако расположение этих зданий не нарушает масштаба улицы благодаря сохранению периметральной композиции. В современной застройке встречаются здания 6–7 этажей, но их присутствие ограничено и не оказывает доминирующего влияния на исторический силуэт.
ул. Ленинградская. 2024 г.
Наличие зданий подобной функции
Основные творческие кластеры города локализованы преимущественно в историческом центре Самары, в пределах радиуса 1 км от проектируемого объекта. В рамках анализа были выделены пять наиболее крупных, популярных и схожих пространств, обладающих наибольшей значимостью в структуре городской креативной среды.
Анализ данных объектов также позволяет отметить, что все они сформированы в результате преобразования зданий исторического или промышленного фонда.
1. Дом 77 — историческое здание, которое прежде служило резиденцией купца Антона Шихобалова. Сейчас здесь размещены: центр культуры «Нулевая комната», галерея Gallery 419, студии танцев и керамики, дополнительно открыт летний двор с кинотеатром и сценой.
2. Станкозавод — один из самых масштабных креативных кластеров Самары, расположенный на территории бывшего промышленного предприятия XIX века. Сейчас здание преобразовано под офисы, творческие студии, шоу-румы, гастропабы и площадки для крупных мероприятий: лекций, конференций, концертов. Летом на крыше Станкозавода проходят события с панорамным видом на город и реку Волгу.
3. 8 студий — здание бывшей обувной фабрики конца XIX века. Здесь создано несколько входов со двора, чтобы гости могли свободно заходить в мастерские, покупать подарки, посещать кафе. Сохранилась атмосфера дворовой жизни старой Самары.
4. Есенин Flats — творческая резиденция, расположенная в особняке конца XIX века. Здесь сохранились лепнина, голландская печь и другие элементы исторической отделки. На втором этаже обустроены студии, лавка букиниста, фотозоны и мастерские.
5. Аrtist — здание с богатой историей: до революции — гостиница, затем — швейная фабрика, потом — меховая, позже — офисы. Сейчас преобразовано в культурно-досуговое пространство: летние кафе с зонтиками, инсталляции, неоновые вывески, гастробары, кино и камерные концерты.
1. Дом 77 2. Станкозавод 3. Artist
Существующие креативные кластеры Самары характеризуются в основном преобладанием событийных и выставочных зон. Производственные и ремесленные пространства занимают меньшую часть, либо вовсе отсутствуют. Основной функциональной доминантой данных объектов являются ивент-площадки, зоны отдыха и коммерческие пространства, формирующие модель культурного потребления, ориентированную на зрелищность и досуг.
График функционального зонирования кластеров
3.2 Социальные запросы и идеология
Социально-демографический портрет
Население Самары на начало 2025 года составляет примерно 1,15 млн человек.
Возрастная структура характеризуется преобладанием взрослого населения 30–60 лет и существенной долей граждан старше 60 лет, что формирует повышенный спрос на культурные и социально-ориентированные городские сервисы.
Объект располагается в Самарском районе.
Самарский район, расположенный в историческом центре города, является одним из наименее населённых районов города — здесь проживает около 31 тыс. человек.
Низкая численность обусловлена тем, что значительная часть территории занята административными, деловыми, культурными и туристическими объектами, а доля плотной жилой застройки невелика, что обеспечивает высокий уровень внешнего пешеходного и функционального трафика.
Образ жизни и интересы ключевых групп
Департамент экономического развития, инвестиций и торговли Администрации городского округа Самара 18 декабря 2024 года в рамках подготовки Стратегии социально-экономического развития Самары до 2036 года провел онлайн-опрос жителей. В обсуждении городских проблем и приоритетов развития приняли участие более 12,5 тыс. человек. Наибольшую активность проявили замужние женщины среднего возраста с высшим образованием, проживающие в Кировском и Промышленном районах.
В целом большинство респондентов отмечают удовлетворённость качеством жизни в городе.
В дополнение, по данным недавнего исследования в сентябре 2025 года сервиса SuperJob, Самара стала лидером среди крупнейших городов России по уровню удовлетворённости жизнью. Горожане оценили своё ощущение счастья в среднем на 6,75 балла из 10 — выше, чем в Москве (5,81) и Санкт-Петербурге (5,85). Средний показатель по стране — 6,18 балла. Эксперты и сами жители выделяют несколько ключевых факторов:
— Баланс доходов и затрат: несмотря на более низкие зарплаты, чем в столицах, их рост и снижение безработицы создают ощущение стабильности.
— Городская среда: набережная Волги, парки и доступ к природе помогают снижать стресс. «После работы выйти на набережную — это расслабление», — делится местная жительница Ирина.
— Реалистичные ожидания: в отличие от столиц, где высокие запросы часто не оправдываются, самарцы ценят то, что имеют.
— Социальная стабильность: наличие семьи, детей и работы усиливает чувство удовлетворенности.
В качестве положительных сторон жизни в городе жители Самары выделили:
В ходе проведения опроса также был отмечен достаточно высокий уровень гражданской активности в городе: почти 65% опрошенных на постоянной основе принимают участие в различных социальных мероприятиях города.
При этом приоритетными направлениями развития города на период до 2036 года, по мнению жителей, должны стать:
Социологическое исследование Н. А. Масталерж «Формирование концепции общественного пространства как структурного элемента городской среды», проведённое среди жителей Самары в возрасте 18–45 лет, было направлено на выявление пространств социальной и культурной активности, формирующих структуру городского общения.
Анализ выявил, что наибольшая концентрация культурно-досуговой активности выявлена в центральной зоне, где сосредоточены театры, кафе, музеи, набережная и ключевые «места встреч». Серединная зона сохраняет очаги активности преимущественно за счёт трансформации бывших промышленных территорий в торгово-развлекательные центры, а также парками и зелёными зонами.
Также особое место в исследовании Масталерж занимает феномен «мест встреч», среди которых наибольшую значимость имеют набережная, площадь Куйбышева, площадь Славы, а также парки — Струковский сад, парк им. Гагарина и Загородный парк, находящиеся в ключевых зонах.
Эти пространства устойчиво воспринимаются горожанами как центры притяжения и ключевые точки социальной активности.
Данные выводы находят концептуальное продолжение в исследовании, проведённое Л. Давыдкиной «Исследование образа города Самары студентов разных профессиональных групп» посвящённом изучению образа города Самары в сознании жителей различных профессиональных групп. Автор рассматривает образ города как систему, включающую два ключевых компонента:
◼ когнитивную карту — представление о расположении городских объектов
◼ семантический слой — значимые для человека смыслы и эмоции, связанные с определёнными территориями.
Несмотря на индивидуальный характер восприятия, выявляются групповые ментальные структуры, отражающие коллективное понимание городской среды. В ходе исследования, охватившего 328 респондентов, были зафиксированы принципиальные различия между профессиональным восприятием архитекторов и обыденным восприятием горожан.
Архитекторы структурируют город через функционально-пространственные признаки, выделяя шесть укрупнённых психологических районов, тогда как обыватели формируют более детализированную карту из четырнадцати районов, организованных вокруг визуальных ориентиров и эмоционально значимых объектов.
1. Результаты среди архитекторов 2. Результаты среди горожан
Результаты исследования, представленного Е. А. Рыжковой в работе «Почему я здесь живу? Исторический центр Самары глазами резидента», подтверждают выявленные ранее закономерности психологического районирования городской среды. Анализ интервью с резидентами исторического центра демонстрирует, что эта часть города воспринимается не только как место проживания, но и как символически нагруженное пространство, в котором сосредоточены ключевые элементы городской идентичности. Жители описывают центр через категории «дома», укоренённости, личной истории и эмоциональной привязанности, что соотносится с концепцией «семантического слоя» образа города.
В качестве методологической основы использовалась пространственная триада А. Лефевра, и при её применении к исследуемому контексту отчётливо проявляются все три её компонента.
Важным выводом исследования является наличие выраженного различия между восприятием центральной территории её резидентами и жителями других районов. Это согласуется с ранее отмеченным различием между образами города у «обывателей» и представителей профессиональных групп.
Кроме того, исследование Рыжковой подтверждает высокую «кластерную силу» исторического центра: пространственная концентрация культурных объектов, общественных пространств, туристической активности и повседневных практик создаёт устойчивое ядро городской жизни, а также поддерживает культурный капитал и локальную идентичность.
Социально-туристическая активность
Согласно данным администрации города и Министерства туризма Самарской области, ежегодный туристический поток превышает 4 миллиона человек, включая как внутренние, так и международные визиты. Наибольшая интенсивность турпотока фиксируется в весенне-летний сезон, с мая по сентябрь, когда наступает активное функционирование рекреационной зоны набережной Волги, проведение городских фестивалей, выставок, гастрономических событий и ремесленных ярмарок.
Также по результатам региональных источников около 80-85% посетителей Самары составляют внутренние туристы — жители России, преимущественно из регионов Приволжского округа, Москвы и Санкт-Петербурга; оставшиеся 15-20% — иностранные туристы, прибывающие преимущественно в составе речных круизов по Волге или культурно-познавательных туров.
Основными направлениями движения являются улицы от Венцека до Льва Толстого, ведущие к Волжской набережной, а также ул. Куйбышева и Фрунзе. Эти улицы охватывают наибольшее количество архитектурных памятников, музеев, театров, художественных галерей и общественных пространств.
По данным региональных органов туризма, ежедневный пешеходный поток по Ленинградской в летний сезон достигает 15–20 тысяч человек.
3.3 Экономика
Актуальность
Историческая часть Самары представляет значительную культурную и архитектурную ценность, однако в последние десятилетия она остро нуждается в реновации. Устаревшая инфраструктура, большое количество неиспользуемых городских пустот, недостаток общественных пространств ведут к постепенной утрате качества городской среды. Сохранение исторической застройки недостаточно, требуется комплексное обновление, которое позволит адаптировать центр к современным потребностям жителей и туристов города.
Попытки системно подойти к решению этой проблемы предпринимались ещё в 2015 году. Тогда Институт города представил два смежных проекта, разработанных Институтом Города и Высшей Школой Урбанистики, посвящённых развитию исторической среды c концепцией СПР ИС (Стратегии пространственного развития исторической среды).
[01] Первый проект «Общественные пространства и объекты» был сосредоточен на понимании исторического центра как пространства, где необходимо поддерживать естественное, ненасильственное развитие среды, сохраняя её характер и одновременно устраняя утратившие функцию элементы. В рамках этого подхода подчёркивалось наличие множества «городских пустот» — территорий внутри исторического центра, которые могли бы стать качественными общественными пространствами, но оставались неосвоенными.
[02] Второй проект «Концепция развития исторического центра как результат коллективного междисциплинарного проектирования в рамках Социально-экономической стратегии_2025» был посвящён непосредственно системе общественных пространств в историческом центре. В нём рассматривалась необходимость содержательной и архитектурной реновации таких объектов, включая наполнение их культурными функциями и развитие событийной активности. Оба проекта сформировали стратегическое видение, однако результаты данных проектов отсутствуют.
Тема реновации исторического центра Самары получила продолжение в исследованиях. В 2020 году вышла статья «Methods of Renovation of Open Public Spaces of the Historical Center of Samara» (Д. Б. Веретенников, С. О. Новикова), где были рассмотрены методы обновления открытых общественных пространств старого центра. Авторы подчёркивают необходимость комплексного подхода — от архитектурных решений и модернизации инфраструктуры до улучшения правового регулирования и вовлечения жителей.
В настоящем времени региональная власть усилила нормативно-программное обеспечение. Постановление правительства Самарской области № 221 от 23 апреля 2025 года утверждает региональную программу «Культурные люди» на 2025–2029 годы, направленную на модернизацию культурной инфраструктуры, создание разнообразных культурных пространств и повышение возможностей самореализации граждан.


Одновременно аналитические материалы муниципального уровня указывают на интеграцию задач преобразования городской среды, управления культурно-досуговыми пространствами и стратегического муниципального планирования (сборник «Вестник Самарского муниципального института управления», 2024).
Глава IV. Прототипы
Историческая эволюция общества от аграрной модели к индустриальной и постиндустриальной цивилизации всегда сопрягалась с изменениями архитектуры, отражающей культурные, технологические и социальные трансформации.
В XXI веке архитектурная мысль, опирающаяся на параметрику, цифровое производство и нелинейные формообразующие модели, формирует новые подходы к проектированию образовательных пространств, включая центры профессионального обучения. Эти учреждения становятся важнейшими элементами культурно-образовательной инфраструктуры, объединяя дисциплины, поддерживая ремесленные традиции и стимулируя развитие местных экономик. Их архитектурная организация не только формирует качества образовательного процесса, но и обеспечивает условия для взаимодействия, творчества, международного сотрудничества и интеграции в профессиональные сети. Однако большинство действующих центров характеризуются статичностью, монотонностью и функциональной устарелостью, что препятствует внедрению инноваций.
На основе анализа международных прототипов центров ремёсел, в частности примеры из Европы, Африки и Азии, было выявлено четыре ключевых принципа, определяющих подходы к их архитектурному формированию. Выделение этих принципов имеет практическую значимость для дальнейшего применения и проектирования.
[01] Архитектурное переосмысление
Современные социально-технологические изменения требуют обновления архитектуры центров профессионального обучения, переосмысляющих роль ремёсел в городской и культурной среде. Многие из них расположены в зданиях, нуждающихся в реновации, поэтому особенно важны архитектурные решения, создающие адаптивные и культурно значимые образовательные пространства.
Трансформация профессиональной школы Nimeto в Утрехте, выполненная Maarten van Kesteren Architecten, представляет собой глубокое обновление существующего комплекса, включающего здания разных периодов. Архитекторы сознательно отказались от сноса, выбрав стратегию «трансформировать, а не заменять», что позволило сохранить конструктивную основу и значительно снизить экологический след. Ключевые вмешательства включили создание трёх атриумов путём удаления частей перекрытий, что обеспечило поступление дневного света и улучшило визуальные связи внутри здания, а также объединение разрозненных корпусов с помощью колоннады и воздушного моста. Бывшая парковка преобразована в озеленённый общественный двор.
Внутренние пространства переосмыслены в сторону гибкости: длинные коридоры превращены в открытые зоны встреч и совместной работы, а нейтральная материальная палитра подчёркивает творческий характер учебного процесса. Использование минимальных ресурсов, включение ранее неиспользуемых уровней и тщательная работа с существующей инфраструктурой сделали проект примером устойчивой реконструкции.
С педагогической точки зрения Nimeto теперь представляет собой открытую среду, поддерживающую взаимодействие, коллективное обучение и практику творческих профессий.
Центр CNAD — Centro Nacional de Arte, Artesanato e Design, созданный бюро Ramos Castellano Arquitectos в городе Минделу на острове Сан-Висенте (Кабо-Верде) основан на интеграции исторического здания XIX века и нового архитектурного объёма.
Одним из ключевых элементов архитектурного образа становится фасад, выполненный из более чем двух с половиной тысяч вручную окрашенных металлических крышек от бочек. Этот материал выбран не случайно: бочки и их крышки в культурной памяти Кабо-Верде связаны с мореплаванием, торговлей, миграцией и широкими сетями диаспоры. Также он служит «дышащей» оболочкой, регулирующей свет и вентиляцию.
Интерьер объединяет выставочные залы, библиотеку, мастерские, художественные резиденции, общественные пространства и кафе, создавая многофункциональную платформу, где обучение, производство и демонстрация неразрывно связаны.
(02) Формирование креативного образовательного пространства
Центры профессионального обучения традиционно опираются на мастерские как ключевые пространства формирования практических навыков. Однако на сегодняшний день они необходимы быть многофункциональными и включать разнообразные зоны для обучения, взаимодействия и творчества.
Centre for the Applied Arts, Рутин (Великобритания) Комплекс объединяет выставочные галереи, студии резидентных художников, образовательные помещения и общественные зоны, формируя единую среду для демонстрации и производства ремесленных практик. Здание, спроектированное Sergison Bates Architects и открытое в 2008 году, получило профессиональное признание за чувствительную работу с контекстом и за функциональную архитектуру: его структура организована вокруг внутреннего двора, обеспечивающего связь между основными пространствами и создающего открытую, социально ориентированную атмосферу.
Центр поддерживает широкий спектр ремесленных дисциплин — от керамики и металла до текстиля и стекла, и сочетает выставочную программу с образовательными инициативами, включая мастер-классы, лекции и семейные занятия. Наличие магазина авторских изделий и студий, в которых мастера работают на месте, способствует укреплению связей между художниками и публикой.
Common Facilitation Center (CFC), разработанный студией Node Urban Lab и завершённый в 2022 году в индийском городе Агра, представляет собой компактный, но многофункциональный центр производства кожи и изделий из кожи. Его создание связано с необходимостью повышения качества продукции, профессионализации ремесленного сектора и формирования среды для обучения, тестирования и продвижения изделий локальных производителей.
Архитектура центра основана на использовании локальных материалов и ремесленных традиций. Ключевым элементом стал «переплетённый» кирпичный фасад, вдохновлённый шнуровкой кожаных изделий. Он одновременно символизирует связь здания с обувным ремеслом и обеспечивает естественную вентиляцию и затенение, создавая комфортный микроклимат и снижая потребность в энергозатратном охлаждении.


Внутренние пространства центра организованы в три функциональных зоны — публичный, полуобщественный и профессиональный.
Публичная зона включает рецепцию и пространство первичного взаимодействия;
полуобщественный блок формируется вокруг многофункционального внутреннего двора, который служит пространством для встреч, выставок и общественных мероприятий;
приватный сегмент включает мастерские, лаборатории, рабочие помещения и террасу, используемую для демонстрации продукции и неформального общения.


(03) Цифровые технологии в проектировании
Современная педагогика, технологический прогресс и переход к проектно-ориентированному обучению требуют от профцентров новой пространственной логики. Мастерские превращаются в многофункциональные лаборатории, где теория, практика и цифровые инструменты работают вместе. Такие пространства поддерживают форматы STEM/STEAM (Science, Technology, Engineering, Arts, Mathematics). Одновременно с этим усиливается необходимость проектировать подобные центры с использованием современных устойчивых материалов и конструкций.
M.Y.Lab Wood Workshop — учебно-производственная мастерская по работе с деревом, созданная Continuation Studio при реконструкции бывшего мебельного склада в районе Чанънин в Шанхае. Проект 2017 года площадью около 300 м² преобразует индустриальное помещение в двухуровневое пространство для обучения, практики и демонстрации ремесла. Его планировочная концепция основана на разделении производственной зоны и зоны наблюдения при визуальной открытости. Ключевым приёмом стала «погружённая» рабочая зона с пониженным уровнем пола, создающая эффект арены и усиливающая сосредоточенность, а также двускатная фанерная надстройка, формирующая ритмичную, «плавающую» верхнюю конструкцию.
Материально-пространственная структура мастерской сочетает чёрный металл, деревянные панели, белые поверхности и терраццо-пол. Внутри размещены два чёрных металлических блока — лестничный и чайную. Несмотря на обновление, пространство сохраняет индустриальный характер: высокие потолки, открытая кирпичная кладка и видимые коммуникации.


Функционально мастерская организована как пространство обучения деревообработке, где учащиеся работают с оборудованием, осваивают технологии и участвуют в мастер-классах, а наблюдатели размещаются отдельно — на втором уровне. Галерея-мост над рабочей зоной позволяет демонстрировать готовые изделия и проводить презентации, а верхний свет подчёркивает высоту и вертикальность пространства.
Техническое оснащение включает основные деревообрабатывающие станки (ленточную и торцовочную пилы, фуговальный станок, рейсмус, фрезерный стол, шлифовальные станки), систему аспирации, 8–12 верстаков и набор ручного электро- и столярного инструмента. Хранение обеспечивается стеллажами, вертикальными модулями и перфорированными панелями. Меры безопасности включают фильтрацию воздуха, огнетушители, защитные экраны и локальные вытяжки, а публичные зоны оборудованы перилами, навигацией и направленным освещением.
Theodor Herzl Center, спроектированный бюро A. Lerman Architects под руководством Асафа Лермана и расположенный в городе Херцлия (Израиль), представляет собой современный культурно-образовательный комплекс, в котором архитектурные решения направлены на формирование открытой, инклюзивной и многофункциональной среды. В условиях плотной жилой застройки проект выполняет важную урбанистическую задачу: он нарушает типичную для района логику изолированных частных вилл, создавая общественное пространство, открытое для взаимодействия и интеграции различных социальных и творческих групп. Архитектура центра формируется вокруг большого внутреннего двора, объединяющим элементом всех функциональных зон.
Концептуальная цель здания — создание современной и долговечной среды, основанной на эстетике функциональности. Использование монолитного бетона, структурного стекла и металла формирует строгий, лаконичный образ, соответствующий идее прозрачности и честности конструктивных решений.
Программная насыщенность комплекса отражает современное понимание культурных учреждений. В здании размещены консерватория, студии танца, художественные мастерские, керамические лаборатории, галерея, библиотека, пространство для пожилых людей и общественное кафе. Вариативность программ формирует разнообразные сценарии использования, адаптирующаяся под потребности разных возрастных и профессиональных групп.
(04) Взаимосвязь человека, концепции и идентичности места
Проектирование образовательных центров безусловно требует опираться на локальную идентичность, историю и социальный контекст, создавая среды, отражающие дух места и усиливающие связь человека с ним.
Ramses Wissa Wassef Art Centre в деревне Харанья под Каиром — это центр, где архитектура, ремесло и обучение образуют единую творческую экосистему. Основанный в начале 1950-х годов Рамсесом Виссой Вассэфом, он был задуман как место свободного художественного развития, где дети и молодые мастера создают тканые работы без шаблонов, опираясь на интуицию и непосредственный опыт.
Архитектура комплекса тесно связана с египетскими строительными традициями и климатом: здания выполнены из сырцового кирпича и имеют сводчатые и купольные формы, обеспечивающие естественную вентиляцию и комфортную температуру. Эти решения отсылают к нубийским, коптским и исламским прототипам, переосмысленным современным образом. Пространства мастерских, залов и жилых блоков организованы так, чтобы сам ремесленный процесс оставался открытым и видимым.
Функциональная структура центра включает мастерские по ткачеству, батику и керамике, производственные зоны, выставочные помещения и места продажи, создавая полный цикл «обучение — создание — показ — распространение». Работы мастеров регулярно экспонируются как в самом центре, так и на международных выставках.
Единство архитектуры и образовательной философии центра было признано международным сообществом: в 1983 году Ramses Wissa Wassef Art Centre получил премию Aga Khan Award for Architecture как пример пространства, успешно объединяющего культурные, учебные и социальные функции.
Avadh Shilpgram, спроектированный бюро Archohm в Лакхнау, представляет собой крупный культурно-ремесленный комплекс, объединяющий торговлю, производство и демонстрацию ремёсел региона Авадх.
Расположенный на восьми гектарах, он организован вокруг эллиптической схемы, обеспечивающей плавное движение посетителей и создающей атмосферу традиционного индийского базара. Архитектура опирается на локальные формальные мотивы — арки, колоннады, ажурные панели — интерпретируя их в современном ключе и обеспечивая комфортный микроклимат за счёт естественной вентиляции и освещения. Материалы, такие как аграский песчаник и стальной каркас, подчёркивают связь с местной строительной традицией.
Программа комплекса включает около двухсот ремесленных магазинов, мастерские, выставочные пространства, амфитеатр и общественные зоны, формируя среду, где ремесленники, посетители и покупатели взаимодействуют напрямую.
Выводы
Анализ функциональной структуры прототипов ремесленных центров выявляет значительное разнообразие пространственных моделей. Диаграмма отражает соотношение образовательных, производственных, выставочных, общественных зон и внутренних дворов, позволяя определить доминирующие типологические направления.
Производственная функция преобладает в M.Y.Lab Wood Workshop и Common Facilitation Center, где центры ориентированы на непосредственное изготовление продукции и функционируют как современные ремесленные мастерские. Напротив, Nimeto Craft School и Centre for the Applied Arts демонстрируют образовательную направленность, формируя пространство обучения через практику.
В Avadh Shilpgram, Ramses Wissa Wassef Center и CNAD ключевую роль играют внутренние дворы, выступающие композиционным ядром и обеспечивающие рекреацию, общественное взаимодействие и пространственную ориентацию. Theodor Herzl Center и CNAD отличаются развитой выставочной и общественной функцией, ориентированной на культурное просвещение и взаимодействие с широкой аудиторией.
Глава V. Выводы и техническое задание на проектирование
Проведённый предпроектный анализ обеспечил всестороннее исследование объекта, исторического развития городской среды, современных социокультурных тенденций, а также отечественного и международного опыта реновации исторических зданий.
Ниже представлены обобщённые выводы по каждой главе аналитического исследования.
5.1 Выводы по результатам предпроектного исследования
Глава II. Дух места
• Доходный дом А. Ф. Нуйчева представляет архитектурную и историко-культурную ценность как характерный объект застройки начала XX века и важный элемент формирования визуального облика улицы.
• Здание связано с торгово-ремесленным развитием Самары, а его первоначальная функция логично соотносится с концепцией Центра волжских ремёсел, основанной на принципах открытости и публичности.
• Историко-культурный контекст города и сложившиеся ремесленные традиции подтверждают целесообразность размещения Центра волжских ремёсел в данном историческом объекте, связанном с торгово-ремесленной средой.
Глава III. Дух времени
• Анализ современной функциональной структуры центра Самары выявил дефицит специализированных пространств для практической реализации ремесленных процессов. Существующие креативные кластеры преимущественно ориентированы на досугово-событийную модель и не обеспечивают полноценного цикла «обучение — производство — демонстрация».
• Социально-культурный анализ показал высокий уровень вовлечённости населения в культурную жизнь города и устойчивый интерес к локальной идентичности, традициям и аутентичным практикам. Это формирует потенциальный спрос на создание центра, объединяющего образовательную, выставочную и производственную функции.
Глава IV. Прототипы
Анализ международного и отечественного опыта преобразования ремесленных и культурно-образовательных центров показал, что современные пространства подобного типа ориентированы на интеграцию обучения, производства, демонстрации и общественного взаимодействия в единую архитектурно-функциональную систему.
Выявлены ключевые принципы успешных прототипов:
• архитектурное переосмысление существующих зданий с сохранением их исторической структуры;
• формирование гибкой многофункциональной среды, поддерживающей коллективное творчество;
• использование локальных материалов и ремесленных традиций как основы архитектурной идентичности;
• внедрение цифровых и технологических решений в образовательный процесс;
• подчёркнутая открытость и визуальная доступность ремесленного процесса.
5.2 Техническое задание на проектирование
Общие сведения
Объект: Доходный дом А. Ф. Нуйчева начала ХХ века.
Местоположение: г. Самара, исторический центр, ул. Ленинградская
Функция: Центр волжских ремёсел — культурно-образовательное общественное пространство
Цель проекта: Реновация исторического здания с сохранением его архитектурной идентичности и приспособлением под современный многофункциональный центр, направленный на сохранение, развитие и популяризацию традиционных ремёсел Поволжья
Концептуальные требования
Проект должен основываться на принципах адаптивной реновации и бережного отношения к исторической среде и предусматривать:
➤ сохранение исторического облика здания;
➤ интеграцию новой функции без нарушения его аутентичности;
➤ формирование открытого общественного пространства;
➤ гибкость и трансформируемость функциональной структуры;
➤ доступность для всех категорий пользователей.
Функциональная структура Центра
Центр ремёсел должен предусматривать следующие укрупнённые функциональные зоны:
• общественно-выставочную;
• образовательную;
• производственную (ремесленные мастерские);
• административно-служебную;
• техническую и вспомогательную.
Функции распределяются по этажам с учётом их интенсивности и требований к условиям эксплуатации, включая использование подвального уровня под производственные и технические помещения.
Архитектурно-планировочные и инженерные требования
Проектные решения должны обеспечивать:
➤ сохранение объёмно-пространственной структуры здания;
➤ рациональное функциональное зонирование;
➤ разделение общественных и служебных потоков;
➤ интеграцию современных инженерных систем (вентиляция, климат-контроль, пожарная безопасность);
Требования к интерьеру и стилистике:
➤ использование натуральных материалов (дерево, камень, металл, текстиль);
➤ применение фактур, отсылающих к традиционным ремёслам Поволжья;
➤ использование ремесленных изделий в качестве декоративных и экспозиционных элементов;
➤ использование продуманного архитектурного освещения для акцентирования фактур, экспонатов и зон функционального зонирования.
Требования к среде и благоустройству
Предусмотреть формирование общественно активного пространства, способствующего взаимодействию посетителей с культурной средой, включая:
➤ организацию зон отдыха;
➤ возможность проведения мероприятий и выставок;
➤ интеграцию дворового пространства в общую концепцию Центра.
Библиография
1. Арт-кластеры в бывших промзонах Самары и другие проекты Института города // Портал «Другой город» (URL: https://drugoigorod.ru/spr_culture/) Просмотрено: 25.10.2025.
2. Артемов А. Крупным планом. Улица Ленинградская: тучерезы, купеческие дома и квартал речников // Портал «Другой город» (URL: https://drugoigorod.ru/leningradskaya_streets/) Просмотрено: 02.11.2025.
3. В Самарском регионе в 2025 году планируется создать 11 креативных мини-кластеров в учреждениях культуры // Портал sgubern.ru (URL: https://sgubern.ru/news/22675/) Просмотрено: 02.11.2025.
4. Вестник Самарского муниципального института управления. № 1. 2024. С. 1–110.
5. Давыдкина Л. Исследование образа города Самары студентов разных профессиональных групп // Современные исследования социальных проблем. № 1(09). 2012. С. 1–18.
6. Институт города о развитии общественных пространств Самары // Портал «Другой город» (URL: https://drugoigorod.ru/public_spaces/) Просмотрено: 28.10.2025.
7. Концепция исторического поселения «Самара» // PPT-Online (URL: https://ppt-online.org/1308484) Просмотрено: 18.10.2025.
8. kraeham (Храмов А.) Подробная справка по жилому дому А. Ф. Нуйчева // LiveJournal. Запись от 4 августа 2012. (URL: https://kraeham.livejournal.com/65552.html) Просмотрено: 02.10.2025.
9. Масталерж Н. Формирование концепции общественного пространства как структурного элемента городской среды // Архитектон: известия вузов. № 43. 2013. С. 61–73.
10. Новикова Е. В поисках единого городского стиля // Портал «Другой город» (URL: https://drugoigorod.ru/design-code/) Просмотрено: 13.10.2025.
11. Подготовлены промежуточные результаты опроса мнения населения по вопросам социально-экономического развития городского округа Самара // Региональный информационный портал (URL: https://xn----7sbbaaonz2b7aicghc5s.xn--p1ai/34474) Просмотрено: 25.10.2025.
12. Рыжкова Е. Почему я здесь живу? Исторический центр Самары глазами резидента // Социальные новации и социальные науки. № 3. 2024. С. 108–123.
13. Самара — город счастливых людей: исследование показало, что делает жителей довольными // TV Samara. Новостной портал (URL: https://tvsamara.ru/news/samara-gorod-schastlivykh-lyudei-issledovanie-pokazalo-chto-delaet-zhitelei-dovolnymi/) Просмотрено: 26.10.2025.
14. Сколько лет Самаре // Kontiki Maps (URL: https://kontikimaps.ru/how-old/samara) Просмотрено: 07.11.2025.
15. Улица Ленинградская в деталях: дореволюционная реклама, рыцарь в доспехах, муралы и арт-дворик // Komu na Volge (URL: https://komunavolge.ru/guides/architecture/ulitsa-leningradskaya-v-detalyah-dorevolyutsionnaya-reklama-rytsar-v-dospehah-muraly-i-art-dvorik.html) Просмотрено: 10.11.2025.
Иностранные источники
Archohm Studio. Avadh Shilpgram // ArchDaily. (URL: https://www.archdaily.com/793889/avadh-shilpgram-archohm) Просмотрено: 25.10.2025.
Centro de Formación Profesional // Archnet (URL: https://www.archnet.org/sites/212) Просмотрено: 25.10.2025.
Centro Nacional de Arte, Artesanato e Design / Ramos Castellano Arquitectos // ArchDaily. (URL: https://www.archdaily.com/993254/centro-nacional-arte-artesanato-e-design-cnad-ramos-castellano-arquitectos) Просмотрено: 25.10.2025.
Centre for the Applied Arts / Sergison Bates Architects // Divisare (URL: https://divisare.com/projects/261449-sergison-bates-architects-david-grandorge-ioana-marinescu-centre-for-the-applied-arts) Просмотрено: 25.10.2025.
Common Facilitation Center (CFC) / Node Urban Lab // ArchDaily. (URL: https://www.archdaily.com/1020105/common-facilitation-center-cfc-node-urban-lab) Просмотрено: 25.10.2025.
MYLAB Wood Workshop / Continuation Studio // ArchDaily. (URL: https://www.archdaily.com/883905/mylab-wood-workshop-continuation-studio) Просмотрено: 25.10.2025.
Nimeto: Transformation of a Craft School / Maarten van Kesteren Architecten // ArchDaily. (URL: https://www.archdaily.com/1013808/nimeto-transformation-of-a-craft-school-maarten-van-kesteren-architecten) Просмотрено: 25.10.2025.
Ola A. Vocational Training Centers and Their Development Through Contemporary Design Trends // International Design Journal. Vol. 12. No. 1. 2022. P. 367–380.
Theodor Herzl Center / Asaf Lerman // ArchDaily. (URL: https://www.archdaily.com/951173/theodor-herzl-center-asaf-lerman) Просмотрено: 25.10.2025.
Источники изображений
1. humus (Пост «Самара. Часть 7») // LiveJournal. Запись от 9 февраля 2013. (URL: https://humus.livejournal.com/3035726.html) Просмотрено: 02.11.2025.
2. kraeham (Храмов А.) Подробная справка по жилому дому А. Ф. Нуйчева // LiveJournal. Запись от 4 августа 2012. (URL: https://kraeham.livejournal.com/65552.html) Просмотрено: 03.11.2025.
3. zavodfoto (Пост «История промышленности России в фотографиях: Самара промышленная») // LiveJournal. Запись от 14 мая 2017. (URL: https://zavodfoto.livejournal.com/5778711.html) Просмотрено: 30.10.2025.
4. Куйбышев. Ленинградская улица // Pastvu. (URL: https://pastvu.com/p/1604857) Просмотрено: 27.10.2025.
5. Яндекс-карта (Ленинградская улица, Самара, Самарская область) // Retromap. (URL: https://retromap.ru/0120090_z15_53.186609,50.091218&w=pv&leftcore=0&leftback=100) Просмотрено: 25.10.2025.
Англоязычные источники
6. Archohm Studio. Avadh Shilpgram // ArchDaily. (URL: https://www.archdaily.com/793889/avadh-shilpgram-archohm) Просмотрено: 30.10.2025.
7. Centro de Formación Profesional // Archnet (URL: https://www.archnet.org/sites/212) Просмотрено: 25.10.2025.
8. Centro Nacional de Arte, Artesanato e Design / Ramos Castellano Arquitectos // ArchDaily. (URL: https://www.archdaily.com/993254/centro-nacional-arte-artesanato-e-design-cnad-ramos-castellano-arquitectos) Просмотрено: 26.10.2025.
9. Centre for the Applied Arts / Sergison Bates Architects // Divisare (URL: https://divisare.com/projects/261449-sergison-bates-architects-david-grandorge-ioana-marinescu-centre-for-the-applied-arts) Просмотрено: 01.11.2025.
10. Common Facilitation Center (CFC) / Node Urban Lab // ArchDaily. (URL: https://www.archdaily.com/1020105/common-facilitation-center-cfc-node-urban-lab) Просмотрено: 05.11.2025.
11. MYLAB Wood Workshop / Continuation Studio // ArchDaily. (URL: https://www.archdaily.com/883905/mylab-wood-workshop-continuation-studio) Просмотрено: 25.10.2025.
12. Nimeto: Transformation of a Craft School / Maarten van Kesteren Architecten // ArchDaily. (URL: https://www.archdaily.com/1013808/nimeto-transformation-of-a-craft-school-maarten-van-kesteren-architecten) Просмотрено: 15.10.2025.
13. Theodor Herzl Center / Asaf Lerman // ArchDaily. (URL: https://www.archdaily.com/951173/theodor-herzl-center-asaf-lerman) Просмотрено: 17.10.2025.