Original size 2280x3200

Видовая квартира с элементами русского стиля

PROTECT STATUS: not protected
The project is taking part in the competition

Заказчиками проекта является пара 70-и лет. Он — физик, занимается наукой, принимает пациентов дома, имеет библиотеку профессиональной литературы. Она — домохозяйка, увлекается вязанием и садоводством.

Оба любят русский балет, театр и принимать гостей. Хозяева обожают гжель, и их драгоценной коллекции нужно особое место в пространстве. Им по душе простой интерьер с элементами русского стиля.

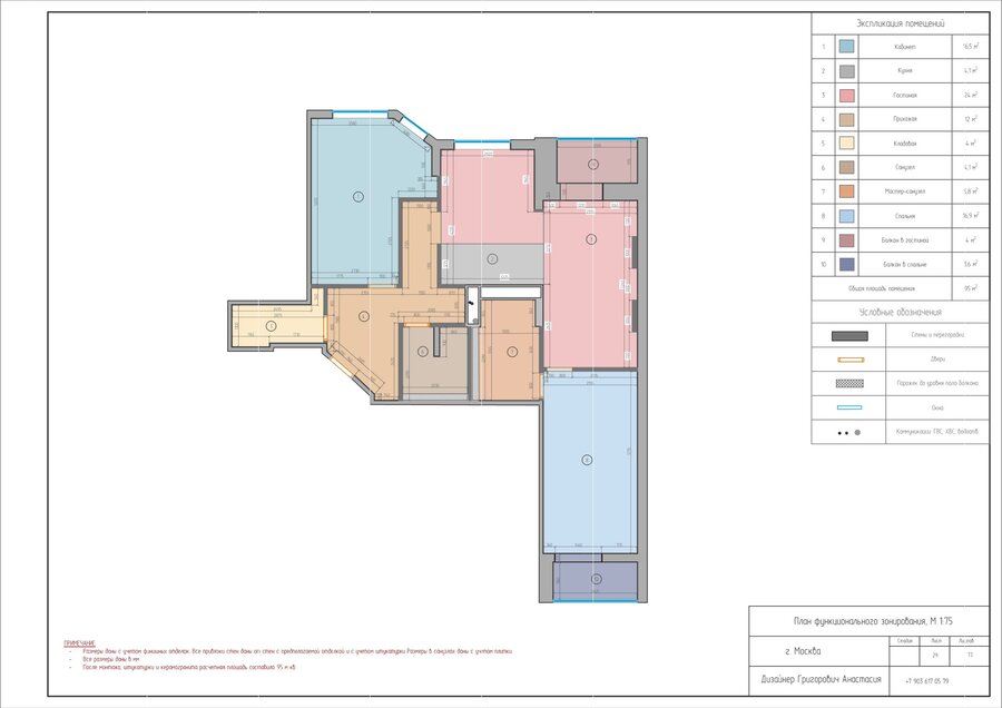
Эта квартира должна стать уютным и функциональным пространством для жизни, отдыха, работы и хобби. Из большинства окон квартиры, площадью 95 кв м, открывается великолепный вид на лес и водохранилище. Объект приобретен на вторичном рынке.

post

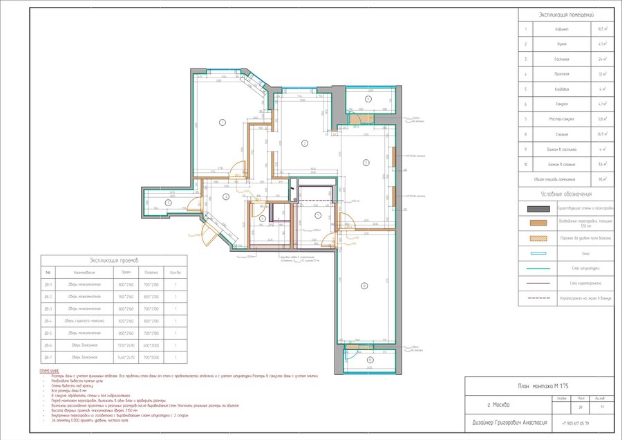
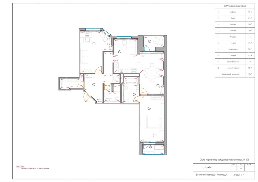
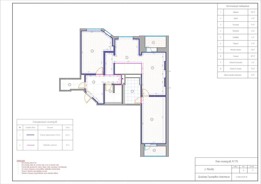
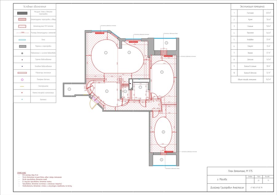
В текущей планировке обращают на себя внимание: коридор, ведущий в жилые комнаты, разноуровневые потолки, слегка изогнуные стены, объединенная кухня и гостиная, расположенные рядом с главным входом. Хозяева отмечают две основные проблемы текущей планировки, которые они хотели бы точно исправить:

  1. длинный коридор, ведущий в жилые комнаты;

  2. расположение входной двери по ходу движения в жилые зоны и ее видимость из кухни и гостиной.

post

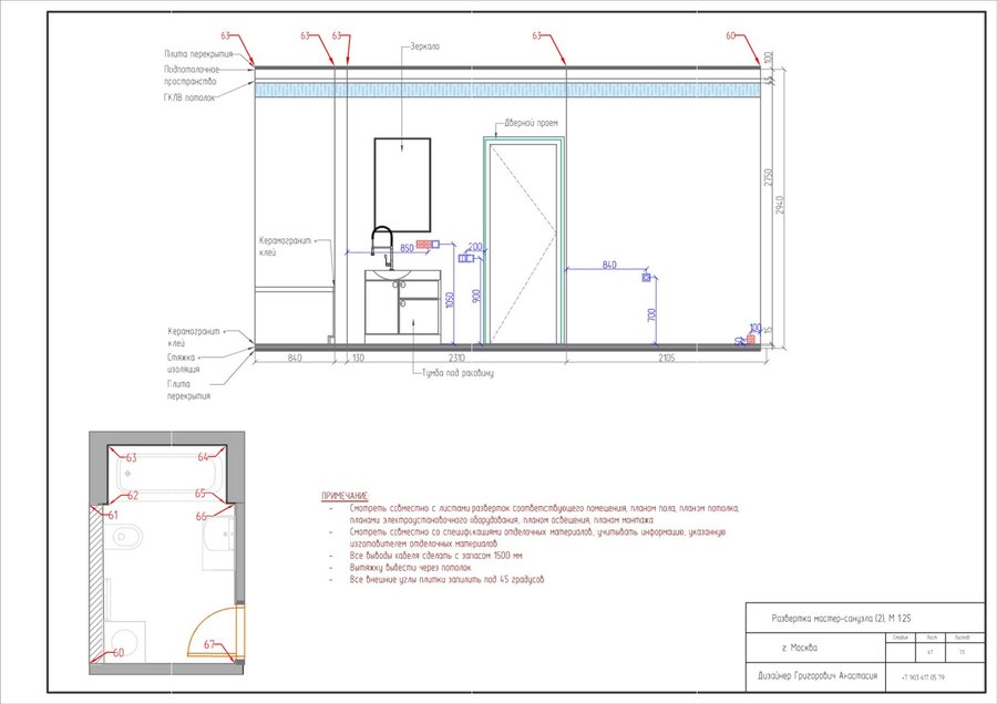
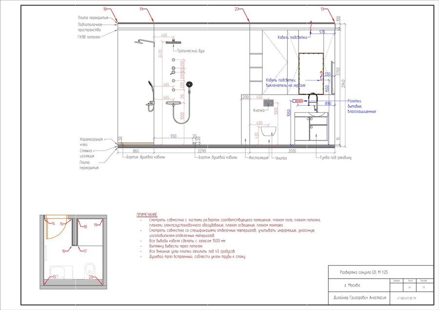
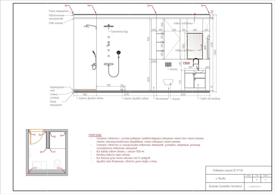
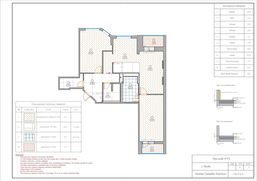
В планировочном решении кабинет хозяина располагается рядом со входом, чтобы люди, входящие в квартиру, попадали туда без захода в жилую зону. В прихожей, для удобства, расположен вход в санузел. Входная дверь не видна из жилой зоны гостиной и кухни. Окна кабинета, гостиной и кухни располагаются на видовой стороне, а в спальне хозяйки это необязательно. Для нее оборудована мастер-спальня с балконом для растений и санузлом, вход в которую располагается за скрытой дверью из зоны гостиной.

0

Референсы, мудборд и текстурная доска отражают элементы, фактуры, темы и цвета, характеризующие предпочтения хозяев относительно будущего интерьера.

Original size 3508x2480

Прихожая сочетает цветовую палитру и стиль всей квартиры. Здесь есть деревянные панели с русским узором, обои «Дерево жизни», яркие бардовые акценты и этническая картина.

Original size 3508x2480
Original size 3508x2480
Original size 3508x2480

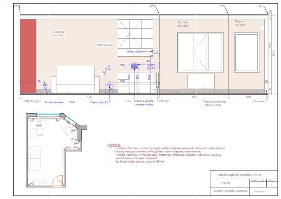
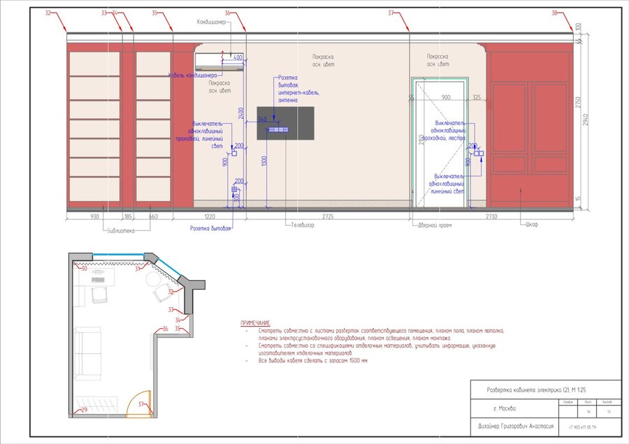
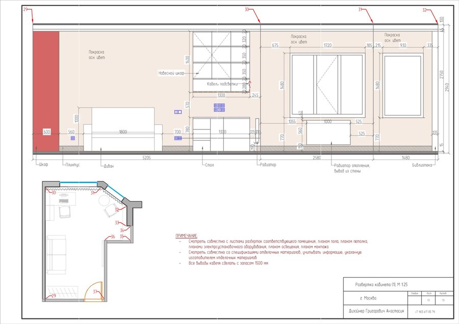
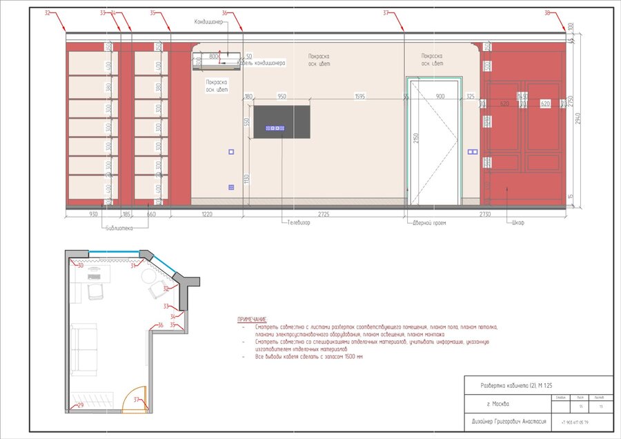
В кабинете напротив двух видовых окон располагается библиотека и рабочая зона. Внимание притягивает шкаф, дверцы которого украшены тканевыми вставками с животными.

Original size 3508x2480
Original size 3508x2480
Original size 3508x2480
Original size 3508x2480

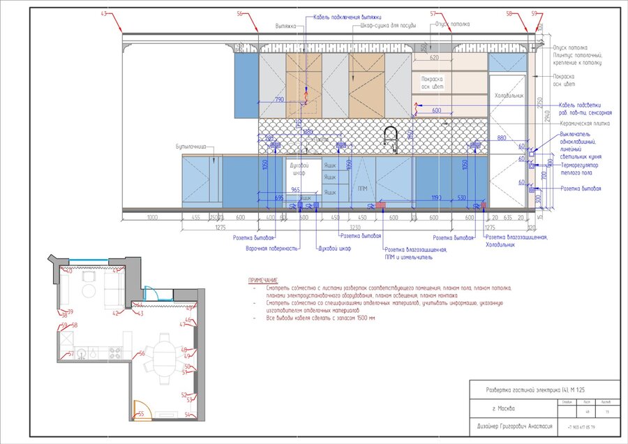
Гостиная, объединенная с кухней, является сердцем квартиры. Здесь есть где отдохнуть, собраться компанией, приготовить еду. При входе находится витрина с ценными экспонатами гжели ручной работы.

Original size 3508x2480

В зоне отдыха могут располагаться 2-3-4 человека и наслаждаться видами из окна. Здесь располагается мягкий диван и контрастирующее кресло. Ковер поддерживает узор гжели и серо-голубой цвет кухни.

Original size 3508x2480
Original size 3508x2480

Столовая группа, являющаяся центральным элементом этой зоны, выделяется на фоне светлых стен и витрин. Украшением являются люстры макраме, а этнический характер подчеркивают картина и глиняные бра.

Original size 3508x2480

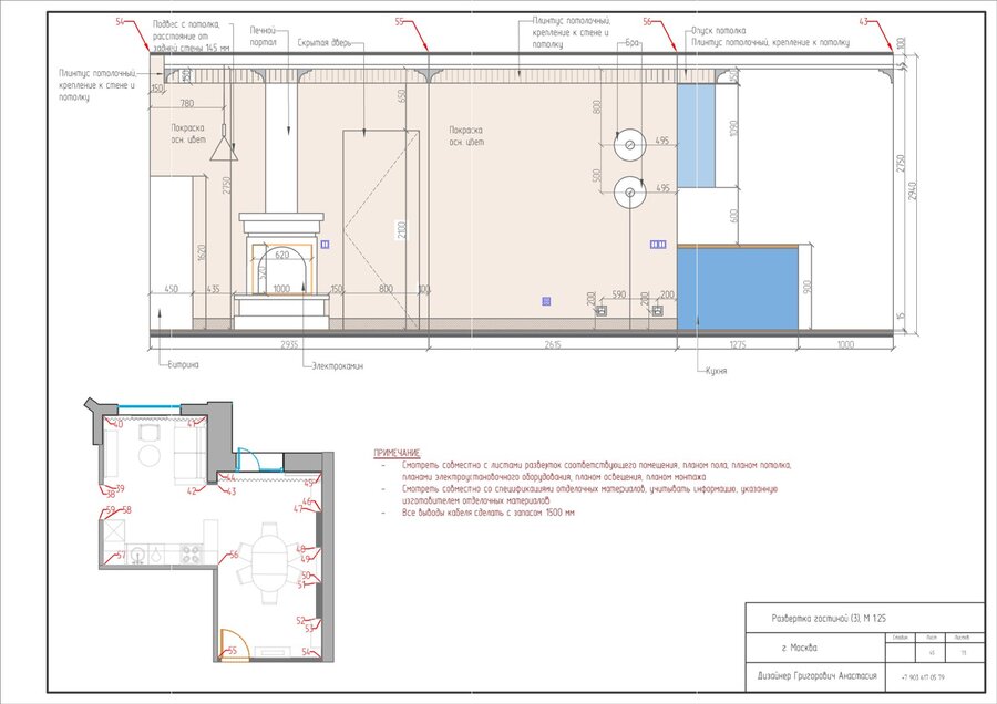
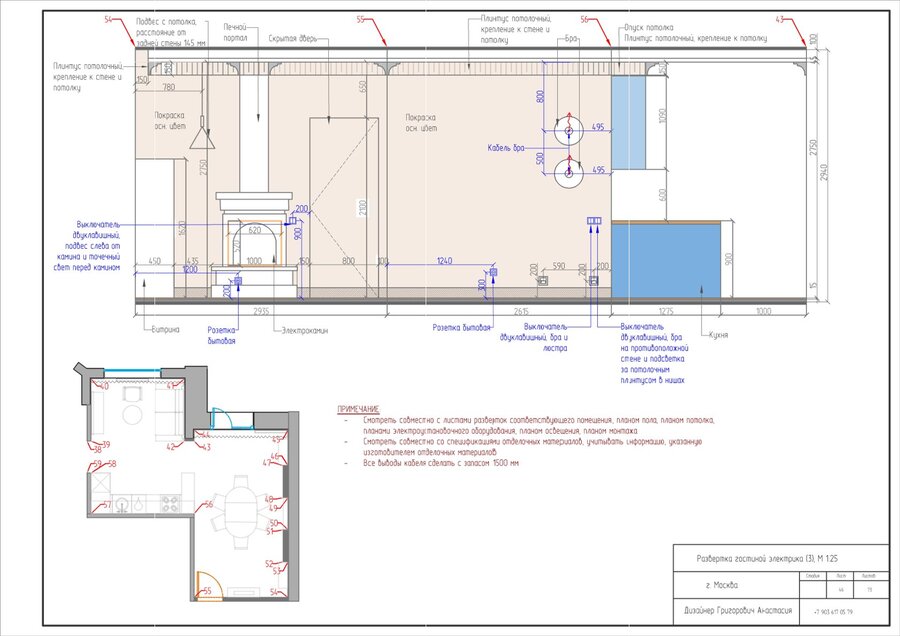
Украшением помещения также является печь, чей портал обрамлен изящным узором под гжель. Это хоть и не классическая дровяная русская печью, но добавляющая уют красивая имитация с электрокамином.

Original size 3508x2480

Обои на стене, выполнены по мотивам декораций к балету Дягилева, а изголовье кровати напоминает форму кокошника. Голубой карниз по периметру спальни и опуски потолка визуально сокращают помещение.

Original size 3508x2480
0
0
0
0
We use cookies to improve the operation of the website and to enhance its usability. More detailed information on the use of cookies can be fo...
Show more