
Бен Николсон — выдающийся британский художник-абстракционист XX века, известный своими уникальными рельефными работами и живописью. Его рельефы стали неотъемлемой частью стиля художника. Мне захотелось воплотить в проекте процесс создания рельефов, а именно — срезание их скальпелем до маленьких размеров.
«Я заинтересован в том, чтобы найти Святой Грааль-минимум средств для выражения самых сложных идей» — Бен Николсон.
Концепция

В самом начале будут массивные рельефы, а к концу они будут уменьшаться. Идея пришла благодаря технике выполнения работ. Николсон, экспериментируя, соскребал бритвой краску и дерево, из-за чего рельефы становились меньше. Он красил рельефы поверхности приглушенными оттенками, а затем одержимо соскребал краску бритвами.
Темы
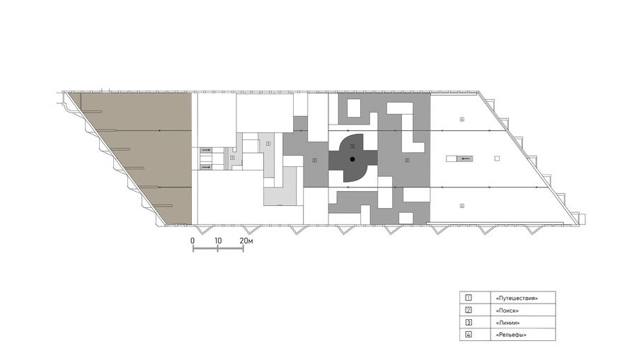
1. «Пейзажи» 2. «Поиск» 3. «Линии» 4. «Рельефы»

«Пейзажи» Тема посвящена первым работам автора. Бен Николсон часто путешествовал и всегда брал с собой краски, чтобы запечатлеть пейзажи разных городов и стран.

«Поиск» В данном зале представлены основные работы Бена Николсона. Художник писал похожие картины на протяжении всей жизни, разрабатывая новые методы нанесения краски и находя новые формы.

«Линии» Линии — отличительная деталь Бена Николсона. В представленном зале мы увидим дерево (которое изображал Николсон в линейных работах), от которого исходят тонкие линии, перетекающие в работы.

«Рельефы» Главная и конечная тема — рельефы. Объёмные работы Николсона оставались всегда популярными благодаря своей уникальности, поэтому они продавались дороже, чем пейзажи.
План выставки
Аксонометрия и взрыв-схема
Визуализация