
«Обрамленная палитра» — проект, вдохновленный личностью
Уютный дом для семьи из трех человек. В основу концепции легла картина — целый мир красок и форм в обрамлении деревянной геометричной рамы, на первый взгляд простой, но необходимой формы.
Дом заказчиков это холст, отражающий насыщенную палитру внутреннего мира его обитателей: живость и нежность заказчицы, твердость и надежность заказчика.

Доска настроения

Текстурная доска

Цветовое решение


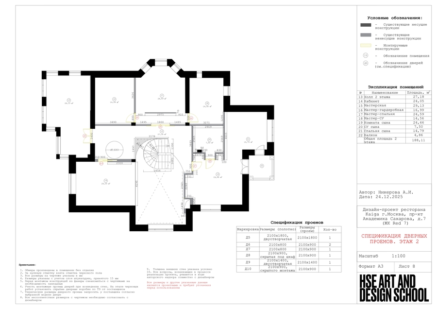
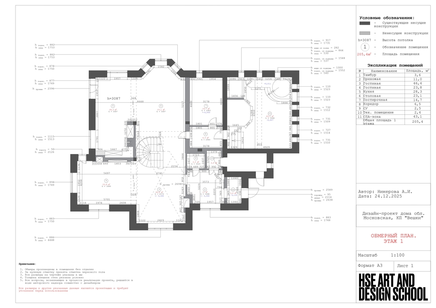
Планировочное решение. Этаж 1 Планировочное решение. Этаж 2
Визуализации
Мастерская заказчицы
Мастерская заказчицы
Гостиная
Столовая-гостиная
Каминная зона
ТВ-зона
ТВ-зона
ТВ-зона
Столовая
Столовая
Кухня-столовая
Кухня
Техническая документация