
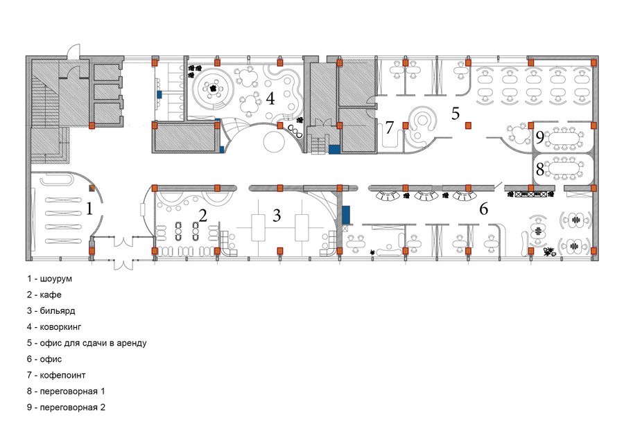
Данный проект заключается в создании удобного и функционального пространства для различных целей, таких как офис, коворкинг для студентов и работников, шоурум и площадки для различных форм провождения досуга.
Концепция
Концепция пространства вдохновлена модерном середины прошлого века, яркие цвета, округлые формы, большое количество деталей, чистые линии: мебель и архитектура имеют четкие, гладкие линии без лишних украшений. формы органичны. Натуральные материалы: Используются такие материалы, как дерево (особенно орех и ясень), кожа, текстиль и металл. Часто встречаются элементы из стекла и пластика


Референсы

Коллаж

Проекции стойки ресепшн
Визуализация