
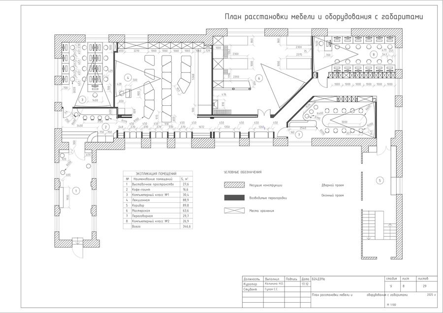
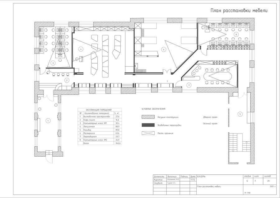
Проект представляет собой альбом чертежей для интерьера учебного кластера по адресу ул, Малая Пионерская, 12, этаж 4. В альбоме присутствуют чертежи и спецификация мебели и оборудования, а также визуализации проекта.
Обмерный план

Демонтаж и возведение перегородок

Функциональное зонирование
Расстановка мебели в новом интерьере
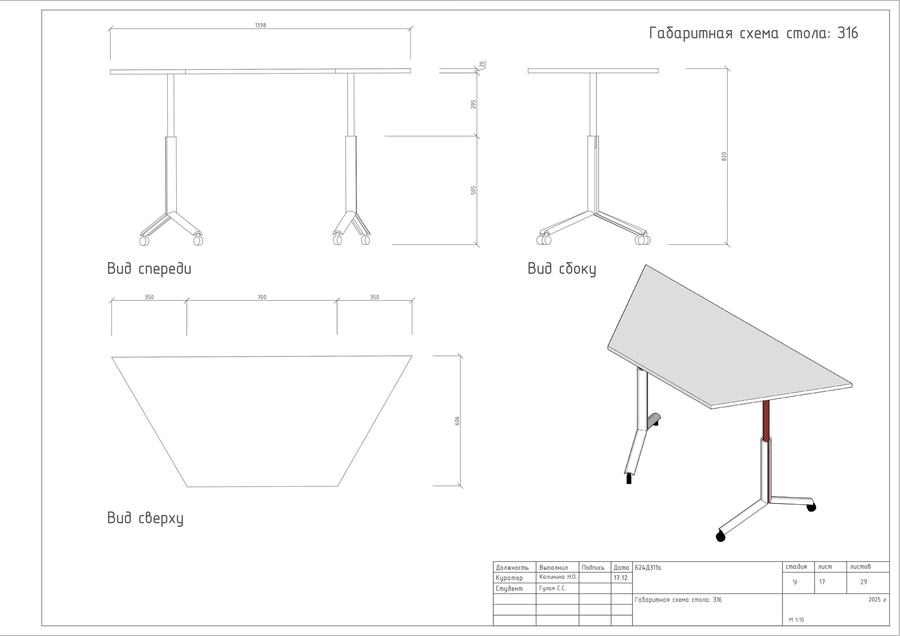
Габариты мебели
Габариты стационарной мебели
Визуализации