
ИДЕЯ
Камерное женское пространство как среда психологического комфорта и восстановления. Пространственная логика Переход от публичных зон к приватным через снижение визуальных и акустических стимулов. Форма Мягкие, обтекаемые линии, пластичные перегородки, отсутствие жёстких углов. Цвет Приглушённые природные оттенки — тёплые нейтральные и мягкие зелёные. Материалы Натуральные, тактильные: дерево, текстиль, матовые поверхности. Свет Многоуровневый, рассеянный, адаптируемый под разные сценарии. Результат Интерьер как спокойный фон для психологических практик и формирования женского комьюнити
СИТУАЦИОННЫЙ ПЛАН

Басманный район — один из старейших районов Москвы, исторически связанный с ремеслом, образованием и наукой. С XVIII века территория застраивалась общественными и учебными зданиями. В XX веке здесь размещались научные институты, сформировавшие интеллектуальный характер района. Сегодня Басманный активно трансформируется: кампусы НИУ ВШЭ, креативные пространства и культурные площадки формируют молодёжную среду, сохраняя историческую идентичность территории
АНАЛИТИКА И ТЗ
Целевая аудитория (2025–2026) Молодые женщины 20–35 лет — студентки, фрилансерки, креативные специалисты, дизайнеры, психологи, начинающие предпринимательницы. Психопрофиль: ценности — поддержка, безопасность, самоидентификация, эстетика, баланс; интересы — психология, чтение, стиль, уют; мотиваторы — усталость от шума, поиск «своего круга», потребность в гармонии. Потенциал локации: 10–15 тыс. активных женщин 20–35 лет в радиусе 1 км; до 5–6 тыс. студентов и молодых специалистов в дневном потоке; высокая готовность платить за атмосферу, soft-сервисы и комьюнити. Тренды рынка (Москва, ЦАО, 2025): 1. Нишевые комьюнити — камерные клубы с идентичностью; 2. Гибридность — днём работа, вечером события; 3. Эмоциональные сервисы — йога, арт-терапия, sound healing; 4. Атмосфера уюта и доверия — важнее масштаба. Позиционирование: Незанятая ниша — «женский клуб нового поколения»: интеллектуальный, эмоциональный, визуальный. Дизайн: Нео-бохо / минимализм, натуральные материалы, мягкий свет, signature scent. Технические условия: H потолка — 4150 мм Ригели — 3700 мм Несущие конструкции и эвакуации—неизменяемы Допустима частичная перепланировка
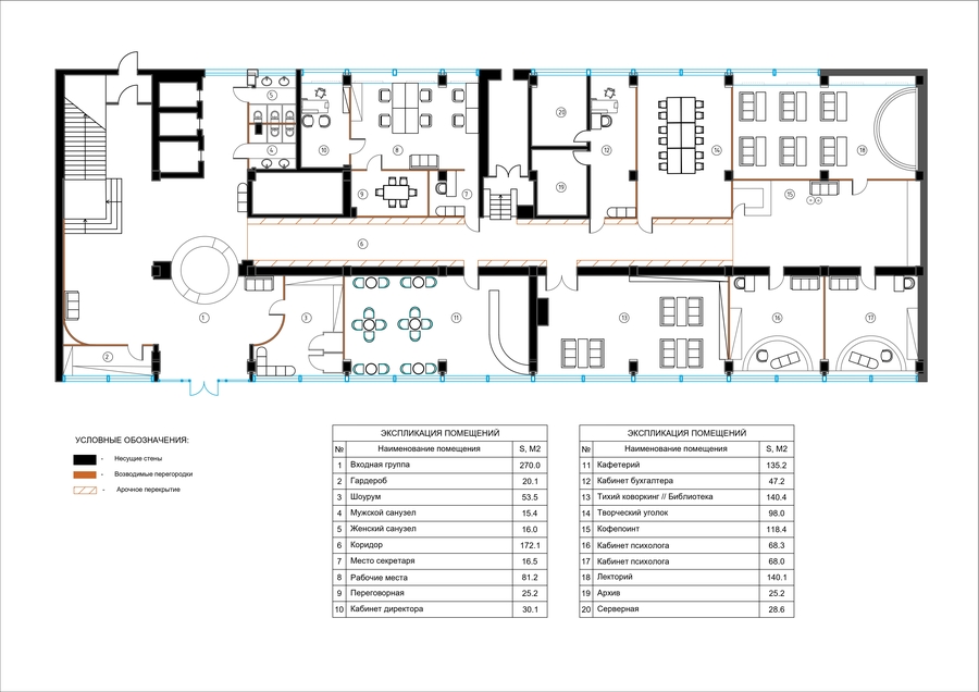
ИСХОДНЫЙ ПЛАН // ПЛАНИРОВОЧНОЕ РЕШЕНИЕ
Аксонометрия
ВИЗУАЛИЗАЦИИ
Входная группа
Входная группа


Входная группа // Санузел
Коридор


Место секретаря // Переговорная
Рабочие места // Офис
Кабинет психолога
Лекторий
СТОЙКА РЕСЕПШН