
Данный дизайн-проект был специально создан для учебного кластера, который занимается изучением направления «Дизайн среды и интерьера» в Школе Дизайна НИУ ВШЭ по адресу г. Москва, ул. Пионерская 12. Важной концептуальной составляющей дизайна является использование нежных пастельных цветов и природных материалов, которые способствуют повышению концентрации студентов во время учебы, ощущению спокойствия и безопасности, а также создают расслабляющую атмосферу, в которой хочется как продуктивно работать, так и проводить свой внеучебный досуг.

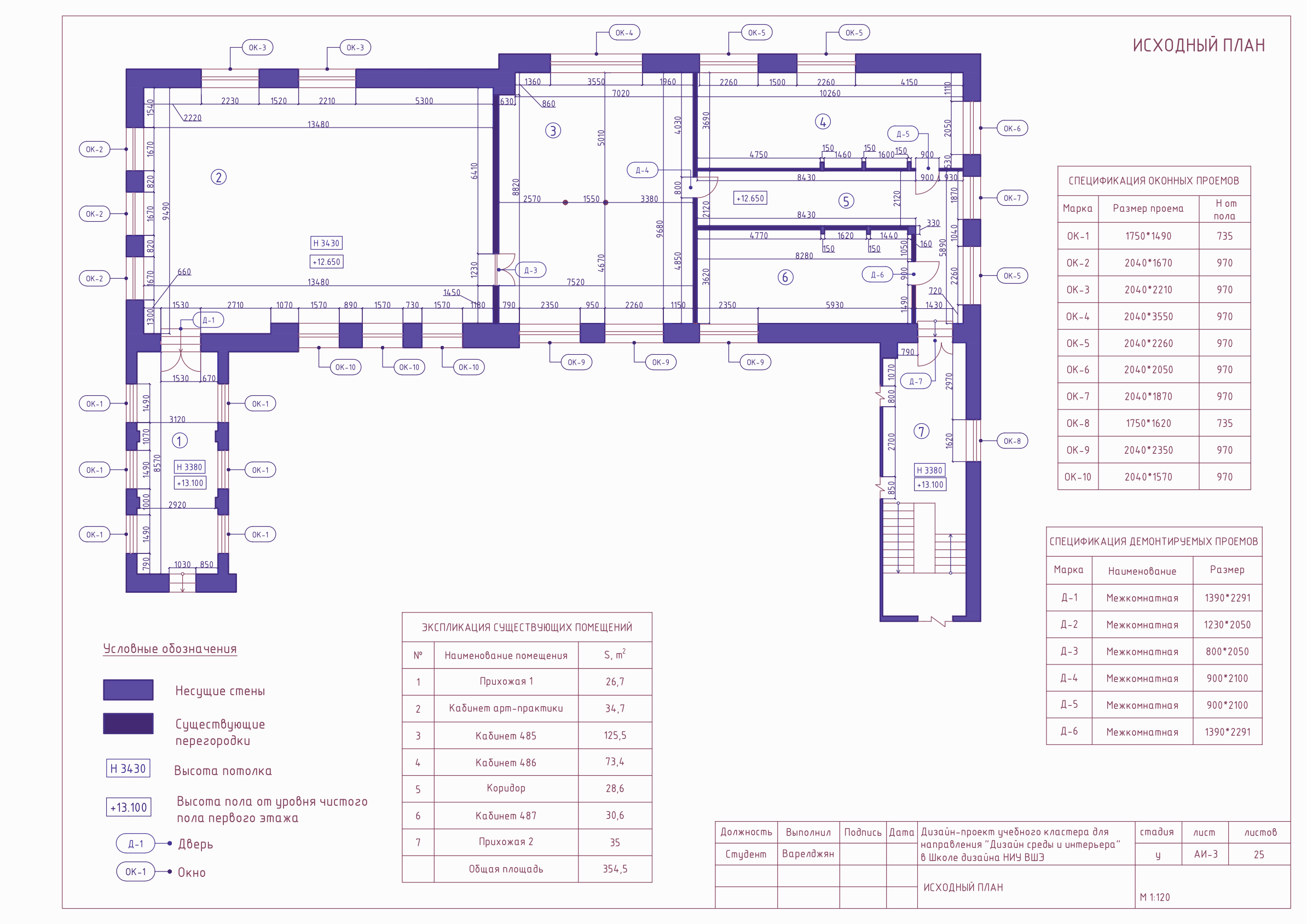
Общая площадь помещения — 354,5 м² Вместимость кластера — 50 Общее число студентов бакалавриата — 277 Общее число преподавателей — 14 Среднее количество людей — 50 Количество кабинетов — 2



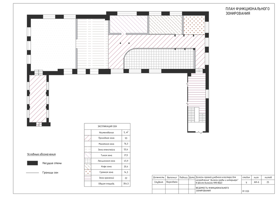
В пакет чертежей входят планировки исходного и нового пространства, спецификации мебели и оборудования и чертежи заказной мебели с визуализациями.


Габаритные и детальные размеры моделируемой мебели для кластера


мебель на заказ
— Высота и наклон макетного стола регулируются, что позволяет работать за ним и сидя, и стоя. Засчет большой рабочей поверхности за столом может работать сразу несколько людей. — Стол рассчитан на 22 рабочих места с разеткойю. — Учительское место отделено перегородкой. — Ножка стула показана справа от основного чертежа.


мебель на заказ
— предусмотрена разетка с быстрой зарядкой USB type A+C, Werkel — по бокам и спереди находятся шумоподавляющие панели


мебель на заказ
— Амфитеатр состоит из трехх ступеней, на которых предусмотрены мягкие сидушки. — С обеих сторон находятся лестницы для комфортного подъема и спуска и платформы. — Полки крепятся к стене, а так же опираются о ножки на полу. — Форма выполнена из гнутого дерева.


мебель на заказ
— На платформе предусмотрены мягкие сидушки в кол-ве 8 штук. — Посередине есть углубление для емкости с землей для зеленой зоны.







