
EVRIKA — коворкинг в Португалии, располагающийся в центре города в многофункциональном масштабном бизнес-центре, являющимся точкой притяжения молодых профессионалов
Небольшое пространство коворкинга спроектировано для людей, не работающих в крупных компаниях, но желающие погрузиться в рабочую атмосферу для работы над проектами.
Здесь можно продуктивно поработать, протестировать макеты в зоне печати, выпить чашку кофе и пообщаться с единомышленниками на террасе.

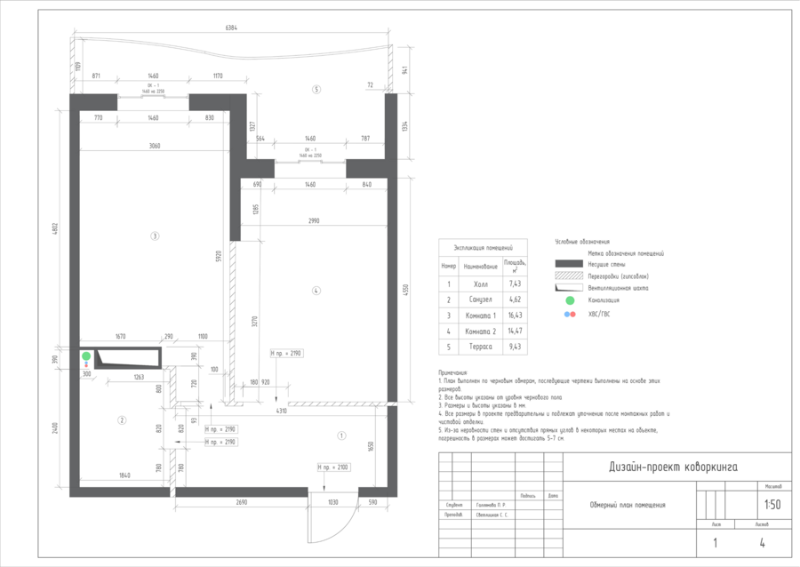
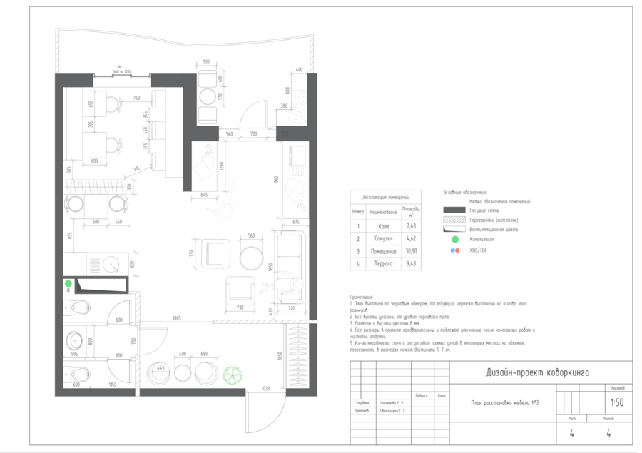
Функциональное зонирование, обмерный план, план расстановки мебели
Стиль коворкинга подразумевает много воздуха, природных фактур, что помогает сосредоточиться, но также яркие детали, создающие обстановку для творческой работы
Мудборд, референсы
Доска материалов
Коллаж рабочей зоны
Коллаж принтер-зоны
Коллаж санузла
Коллаж обеденной зоны