
Проект представляет собой трехэтажную парковку для велосипедов и самокатов при бизнес-центре в рамках участия в конкурсе компании Мангазея.

Идеей было создать велопарковку, которая максимально пропускает свет и при этом включает в себя большое количество велосипедов.



Разрез 1-1
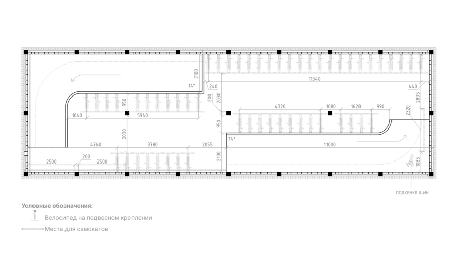
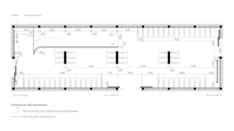
Парковка включает в себя три этажа, проход между которыми осуществляется по пандусам. Внутри есть зоны паркинга для велосипедов, в том числе и долговременного, самокатов, а также необходимое оборудование для оплаты, мойки и подкачки. Общая вместимость составила 198 велосипедов.
Планировки 1, 2, 3 этажей
Планы потолков 1, 2, 3 этажей с расположением осветительного оборудования
Планы полов 1, 2, 3 этажей


Макет