
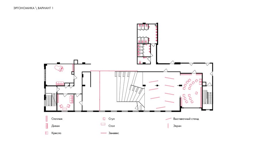
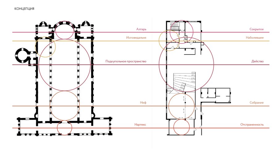
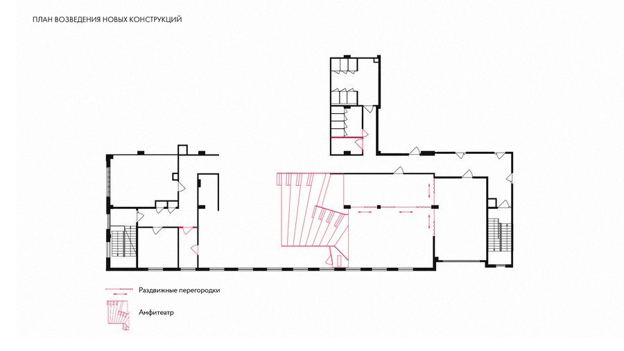
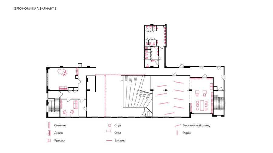
Концепция общественного пространства в конструктивистском здании бывшего канатного цеха. В основе лежит понятие перформативности, объединяющее в основе театрально искусства и религиозных обрядов. В качестве смысловой основы для планировки выбрано зонирование раннехристианского храма.
