
В проекте представлены учебные чертежи, выполненные в течение второго модуля в программе AutoCAD


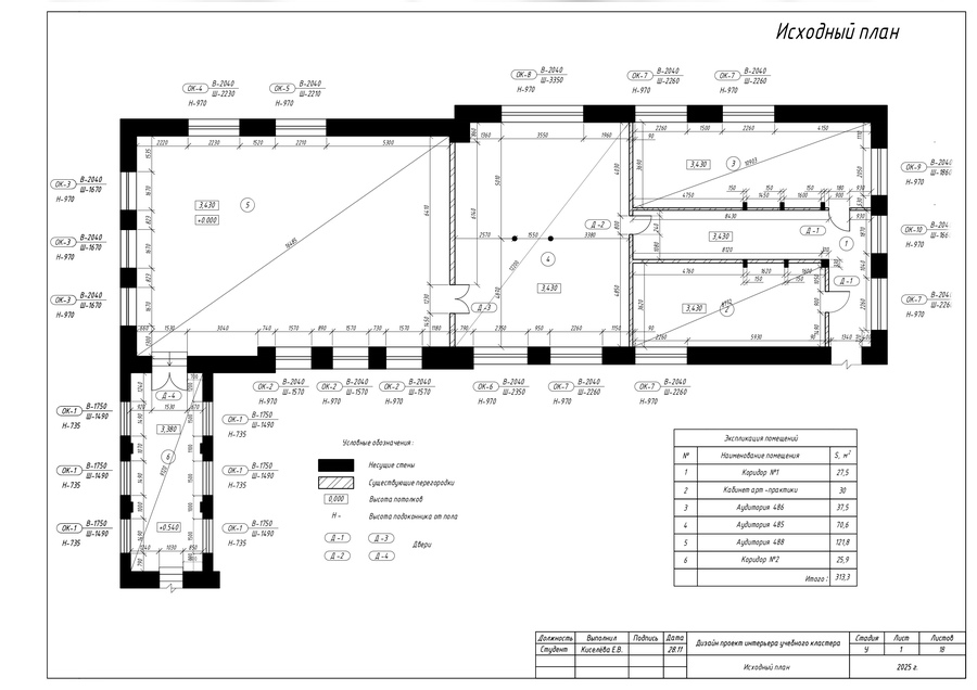
Исходный и демонтажный планы
Разрабатывался дизайн интерьера креативного пространства, которое находится в здании московского корпуса НИУ ВШЭ, в котором могли бы учиться студенты направления дизайн среды
В качестве итоговой работы выполнен ряд чертежей, таких как план учебного пространства, план перегородок по собственному дизайн-проекту кластера, план расстановки мебели и оборудования, а также чертежи мебели


Общая площадь проектируемого пространства: 327.1 кд. м
Целевая аудитория: студенты, преподаватели и сотрудники образовательных программ, обучающихся в корпусе
Чертежи мебели
Визуализации