
Учебный кластер «ПРОСВЕТ» разработан для студентов-дизайнеров среды и интерьеров. Он представляет собой мобильное пространство, легко трансформируемое под различные сценарии.

Был создан макет проектируемого помещения, в котором сохранены главные принципы дизайна кластера: светлые тона, прозрачность и много света в пространстве.
Кадры помещения мастерской
План монтажа


Кадр лектория // Рекреационной // Преподавательской
План мебели
Кадр лакокрасочной
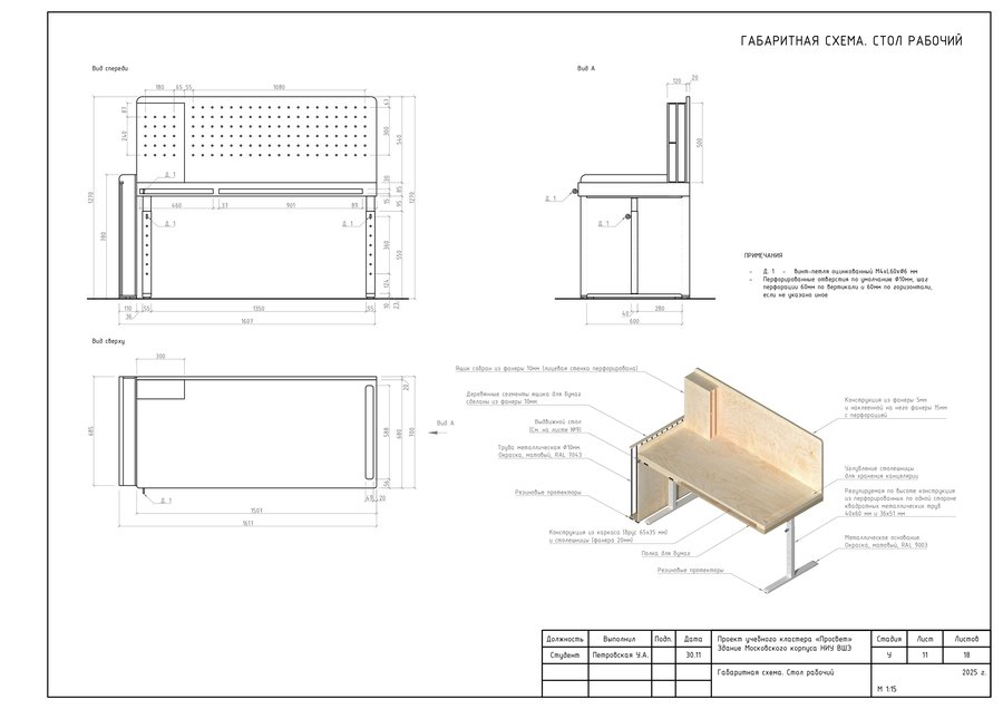
Также были созданы чертежи предметов рабочей мебели, специально разработанных для этого проекта.
Рабочий стул
Предлагаем ознакомиться с оригинальным проектом кластера и рассмотреть макет поближе по ссылке:
Ссылка на проект учебного кластера «ПРОСВЕТ»