
Дизайн-проект интерьера для квартиры был создан в программе Revit. В него входит полный комплект чертежей, которые необходимы для реализации задуманного решения.
Альбом чертежей содержит: - Обмерный план - План демонтажа - План возведения перегородок - План расстановки мебели - План сантехнического оборудования - План напольных покрытий / плинтусов - План отделки стен - План потолков - План расстановки осветительного и электрооборудования - Разрезы, зд схемы и перспективные виды
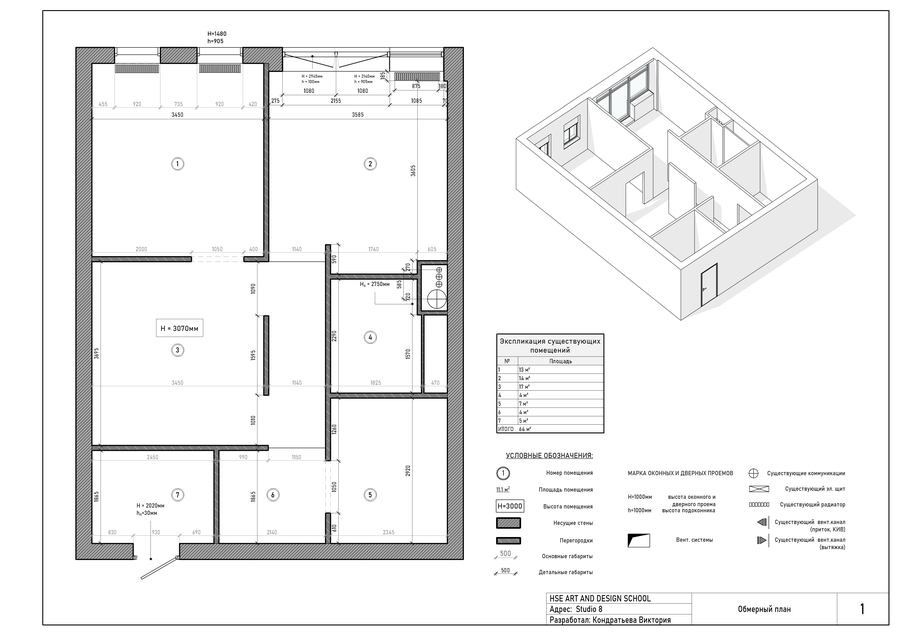
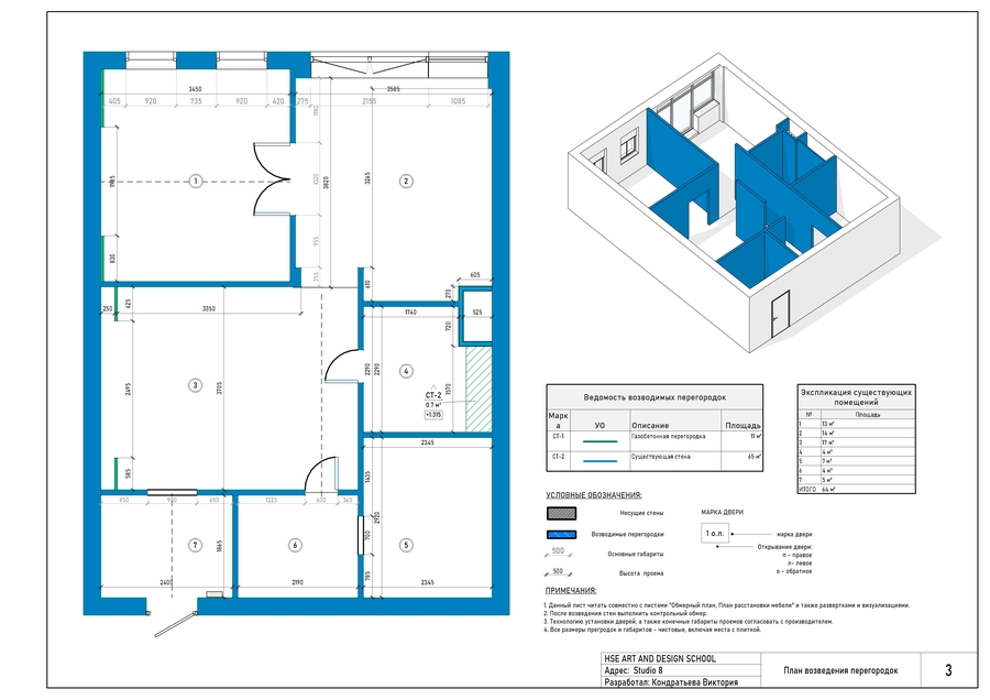
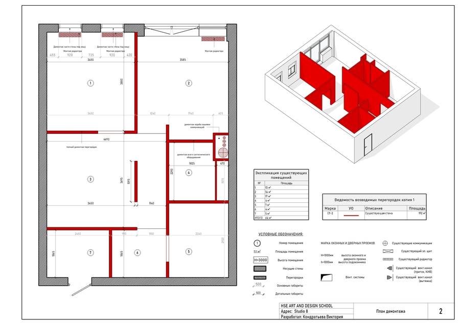
Исходный план/ План демонтажа/ План возведения перегородок
Обмерный план / План демонтажа / План возведения перегородок
Планировочное решение и расстановка мебели

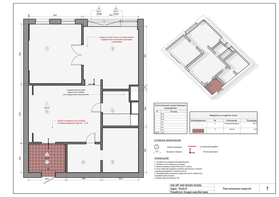
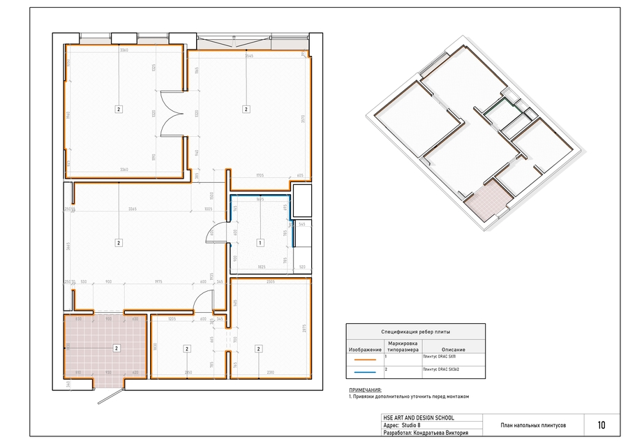
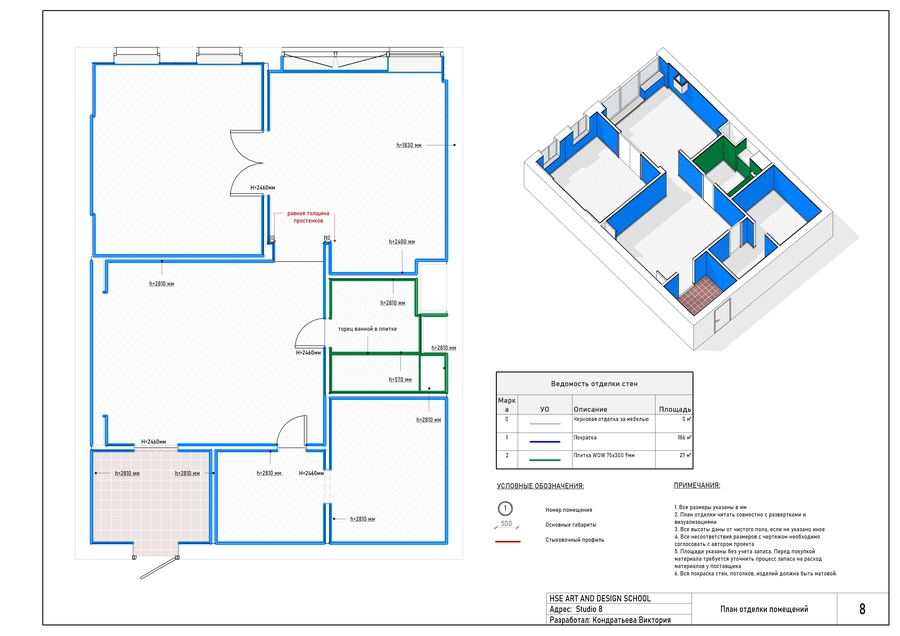
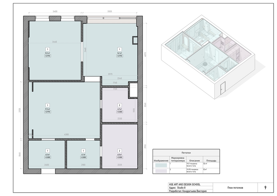
План потолков/плинтусов/полов/отделки стен
План потолков/ План напольных покрытий/ План плинтусов/ План отделки стен
Планы подключения электрооборудования
Планы расстановки и подключения осветительного оборудования
Развертки санузла/спальни/кухни
3д схемы комнат
Перспективные виды
Альбом чертежей: https://www.calameo.com/read/007902514a9824f659640